Newly renovated bungalow with garden, garage and Wren kitchen in sought-after village cul-de-sac.
Detached three-bedroom bungalow, single-storey living
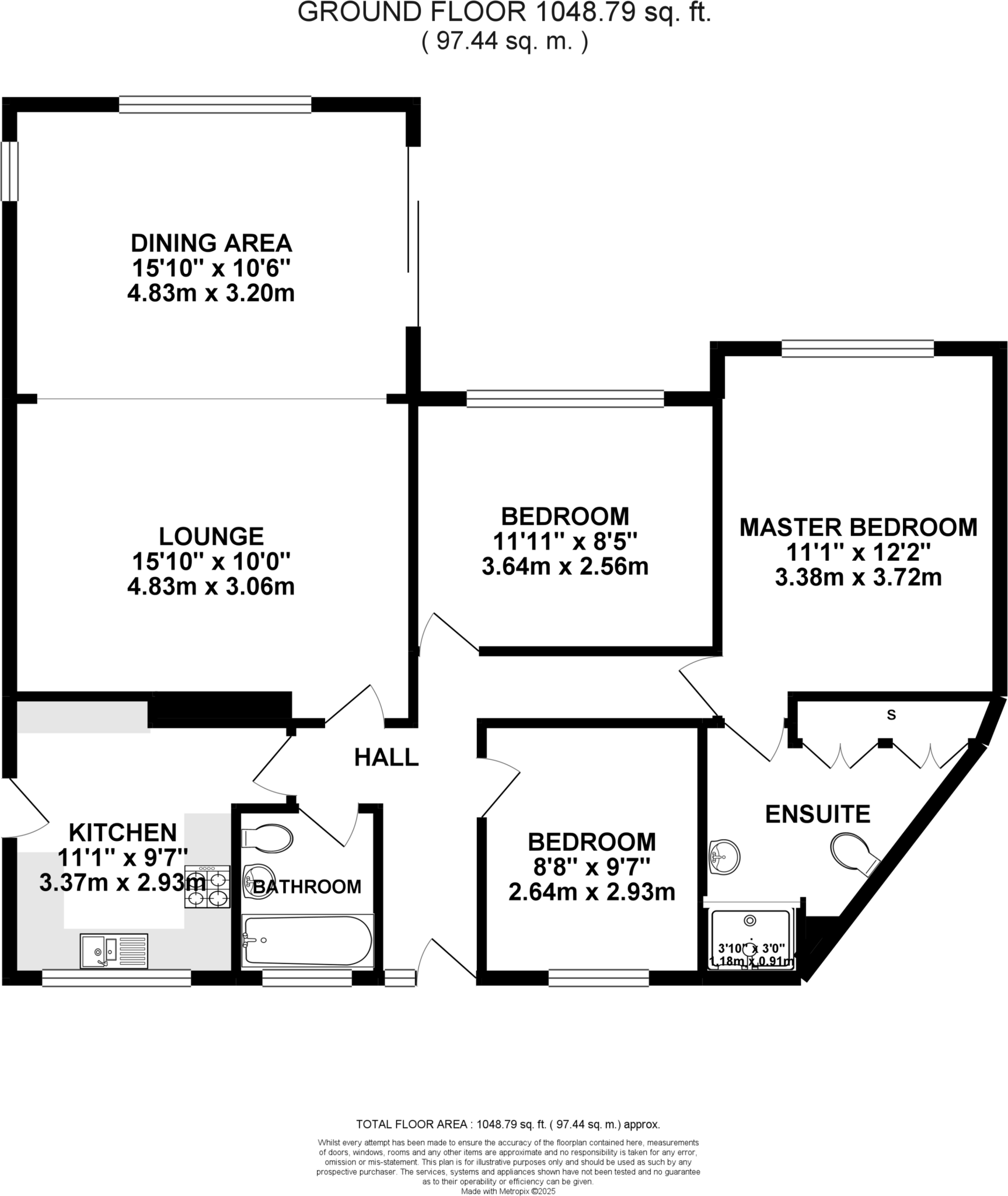
This immaculately presented three-bedroom detached bungalow in a sought-after cul-de-sac offers comfortable single-level living with contemporary finishes. A brand-new Wren kitchen and a bright open-plan living/dining room with a woodburner create an inviting, sociable heart to the home, with sliding doors that open onto a sun-soaked terrace and well-maintained rear garden.
All three bedrooms are generous doubles, and the principal bedroom includes a modern en suite. The property has been newly renovated throughout and is ready to move into, appealing to downsizers, families seeking a single-storey layout, or anyone who values low-maintenance, stylish accommodation.
Practical considerations are clear and straightforward: heating is by an oil-fired boiler and radiators (not a community supply), the external walls are cavity as built with no added insulation assumed, and broadband speeds in the area are slow. The bungalow dates from the late 1960s–1970s and includes a single garage and ample driveway parking.
Located in an affluent village setting close to highly rated primary and secondary schools, low local crime, and countryside amenities, the home balances modern convenience with village life. Buyers should consider ongoing fuel costs for oil heating and potential improvement works to wall insulation and connectivity if higher energy efficiency or faster internet is required.
3 bedroom bungalow for sale in Cherrywood, Alpington, Norwich, Norfolk, NR14 — £425,000 • 3 bed • 2 bath • 1810 ft²
2 bedroom detached bungalow for sale in St. Marys Close, Alpington, Norwich, NR14 — £250,000 • 2 bed • 1 bath • 665 ft²
3 bedroom detached bungalow for sale in Green Lane, Hales, Norwich, NR14 — £300,000 • 3 bed • 1 bath • 992 ft²
3 bedroom detached bungalow for sale in Topcliffe Avenue, Salhouse, Norwich, NR13 — £425,000 • 3 bed • 2 bath • 1156 ft²
2 bedroom bungalow for sale in St. Marys Close, Flixton, Bungay, Suffolk, NR35 — £325,000 • 2 bed • 2 bath • 935 ft²
3 bedroom semi-detached bungalow for sale in Mill Close, Thurton, Norwich, NR14 — £300,000 • 3 bed • 2 bath • 1274 ft²


































































