AB31 4QP - Residential development for sale in Lumphanan, Banchory, AB…

View on Property Piper

Residential development for sale in Lumphanan, Banchory, AB31

Summary - TULLOCH, BANCHORY, LUMPHANAN AB31 4QP

1 bed 1 bath Residential Development

**Key Features:**
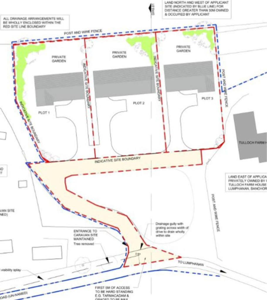
- Traditional steading complex with planning permission for three detached houses
- Expansive yard area of approximately 2,550 square meters
- Stunning panoramic views over farmlands and hills
- Located in the peaceful rural setting of Royal Deeside
- Nearby village amenities in Lumphanan and larger towns of Aboyne and Banchory
- Excellent mobile signal; private water and electricity connections available
- Requires demolition of existing buildings before development begins

**Summary:**
Discover Tulloch Steading, a remarkable opportunity for developers and families looking for spacious, tranquil living in the heart of Royal Deeside. Encompassing a generous plot of approximately 2,550 square meters, this traditional steading complex comes with planning permission for the construction of three detached homes. Nestled in a picturesque rural setting, you will enjoy uninterrupted panoramic views over lush farmland and rolling hills, perfect for crafting your dream residence or investment project.

While the existing structures are no longer in use and will require demolition, the expansive yard area provides endless possibilities for modern developments. With everyday facilities just a short drive away in Lumphanan and the larger towns of Aboyne and Banchory, this location offers a harmonious blend of rural peace and convenient access to essential amenities. Don't miss the chance to secure a unique development opportunity in this idyllic setting—embrace the future potential that Tulloch Steading holds today!

Property Details

Brochure Descriptions

Image Descriptions

Textual Property Features

Detected Visual Features

Nearest Bars And Restaurants

,,,,}

Nearest General Shops

,,}

Nearest Grocery shops

,,}

Nearest Supermarkets

,,}

Nearest Religious buildings

,,}

Nearest Medical buildings

,,,}

Nearest Airports

}

Nearest Leisure Facilities

,,,,}

Nearest Tourist attractions

,,}

Nearest Train stations

,,,,}

Nearest Bus stations and stops

,,,,}

Nearest Hotels

,,}

Tags

Local Market Stats

Similar Properties

Meta

High Res Images

Compatible Images

Low res Images

Thumbnails

Raw Images