WN6 0FD - 4 bedroom detached house for sale in Moss Green Close, Stan…

View on Property Piper

4 bedroom detached house for sale in Moss Green Close, Standish, WN6

Summary - Moss Green Close, Standish WN6 0FD

4 bed 2 bath Detached

**Standout Features:**
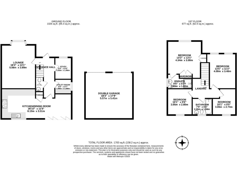
- Modern detached property completed in 2019
- Spacious living area of 1703 sq. ft. with four double bedrooms
- Stunning open-plan kitchen/dining area with bi-folding doors to the garden
- Detached double garage with electric door and additional driveway parking
- Located in a quiet cul-de-sac near protected woodland
- Chain-free sale and excellent mobile/broadband connectivity
- Proximity to schools rated 'Outstanding' by Ofsted

Experience contemporary family living in this exceptional detached home situated in the desirable Moss Green Close, Standish. Spanning an impressive 1703 sq. ft., this recently constructed abode features four spacious double bedrooms, ensuring ample room for family enjoyment. The heart of the home is a stunning open-plan kitchen and dining space, brilliantly illuminated by bi-folding doors that open onto a private garden, perfect for entertaining or play. A separate lounge provides added comfort, while the main bedroom showcases serene views and an en-suite shower room.

This property combines modern convenience with charm, situated in a safe, low-crime area. Families will appreciate the nearby outstanding schools and vibrant community atmosphere. Additionally, the property includes a double garage and private driveway parking, catering to all your needs. Early viewings are highly encouraged, as this delightful family home offers the perfect blend of comfort and security—an opportunity not to be missed in a sought-after cul-de-sac setting!

Property Details

Brochure Descriptions

Image Descriptions

Floorplan Description

Rooms

Textual Property Features

Detected Visual Features

EPC Details

Nearby Schools

Nearest Bars And Restaurants

,,,,}

Nearest General Shops

,,}

Nearest Grocery shops

,,}

Nearest Supermarkets

,,}

Nearest Religious buildings

,,}

Nearest Medical buildings

,,,}

Nearest Airports

,}

Nearest Leisure Facilities

,,,,}

Nearest Tourist attractions

,,}

Nearest Train stations

,,,,}

Nearest Bus stations and stops

,,,,}

Nearest Hotels

,,}

Tags

Local Market Stats

AirBnB Data

Similar Properties

Meta

High Res Images

Compatible Images

Low res Images

Thumbnails

Raw Images

High Res Floorplan Images

Compatible Floorplan Images

Low res Floorplan Images

FloorplanImages Thumbnail

Raw Floorplan Images