GU1 1ET - 10 bed large period hmo in Stoke Road, GU1 1ET

View on Property Piper

10 bedroom semi-detached house for sale in Stoke Road, Guildford, GU1

Summary - 121 STOKE ROAD GUILDFORD GU1 1ET

10 bed 7 bath Semi-Detached

Turnkey 10‑bed HMO near Guildford station — strong rental demand.
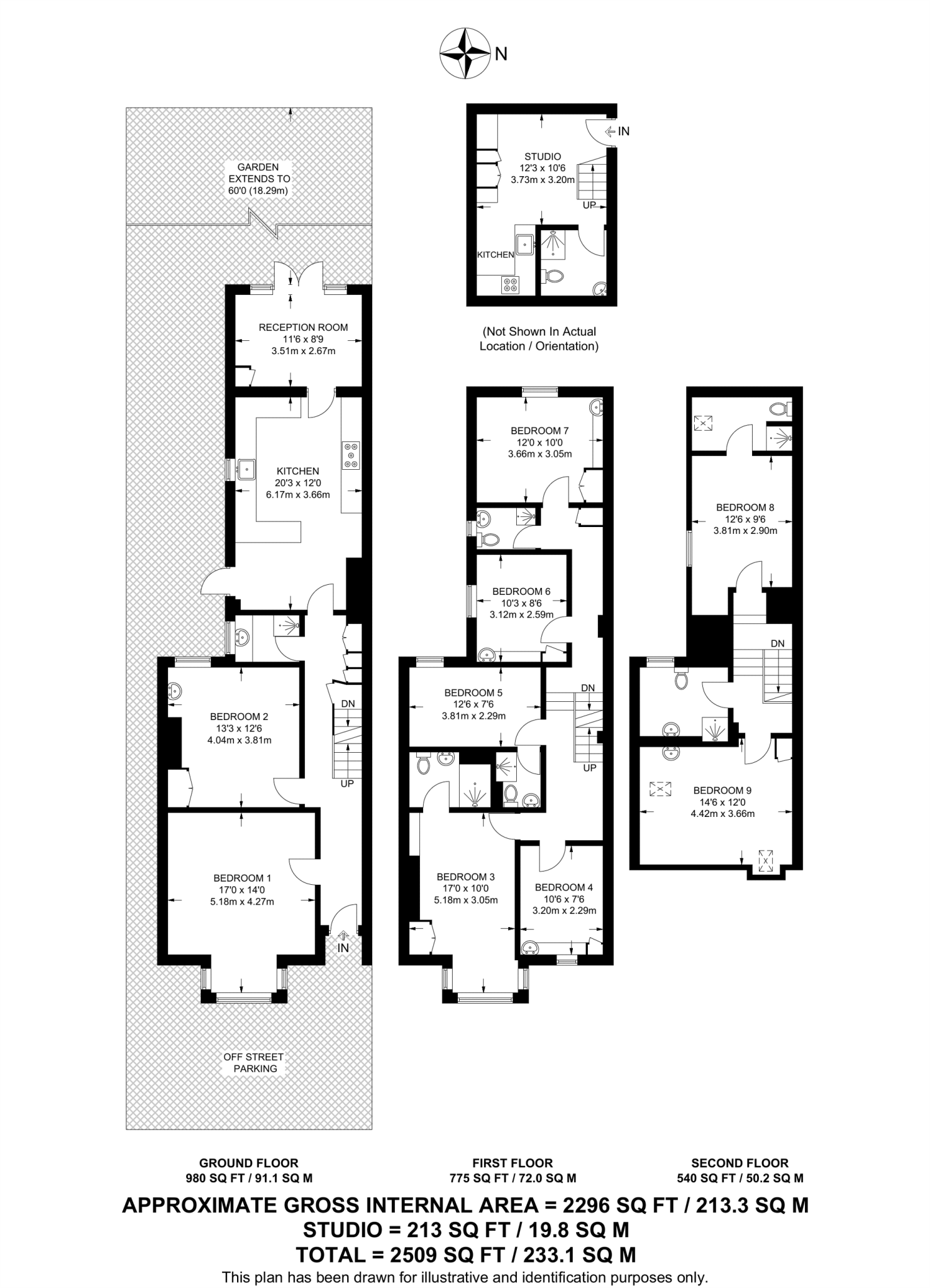
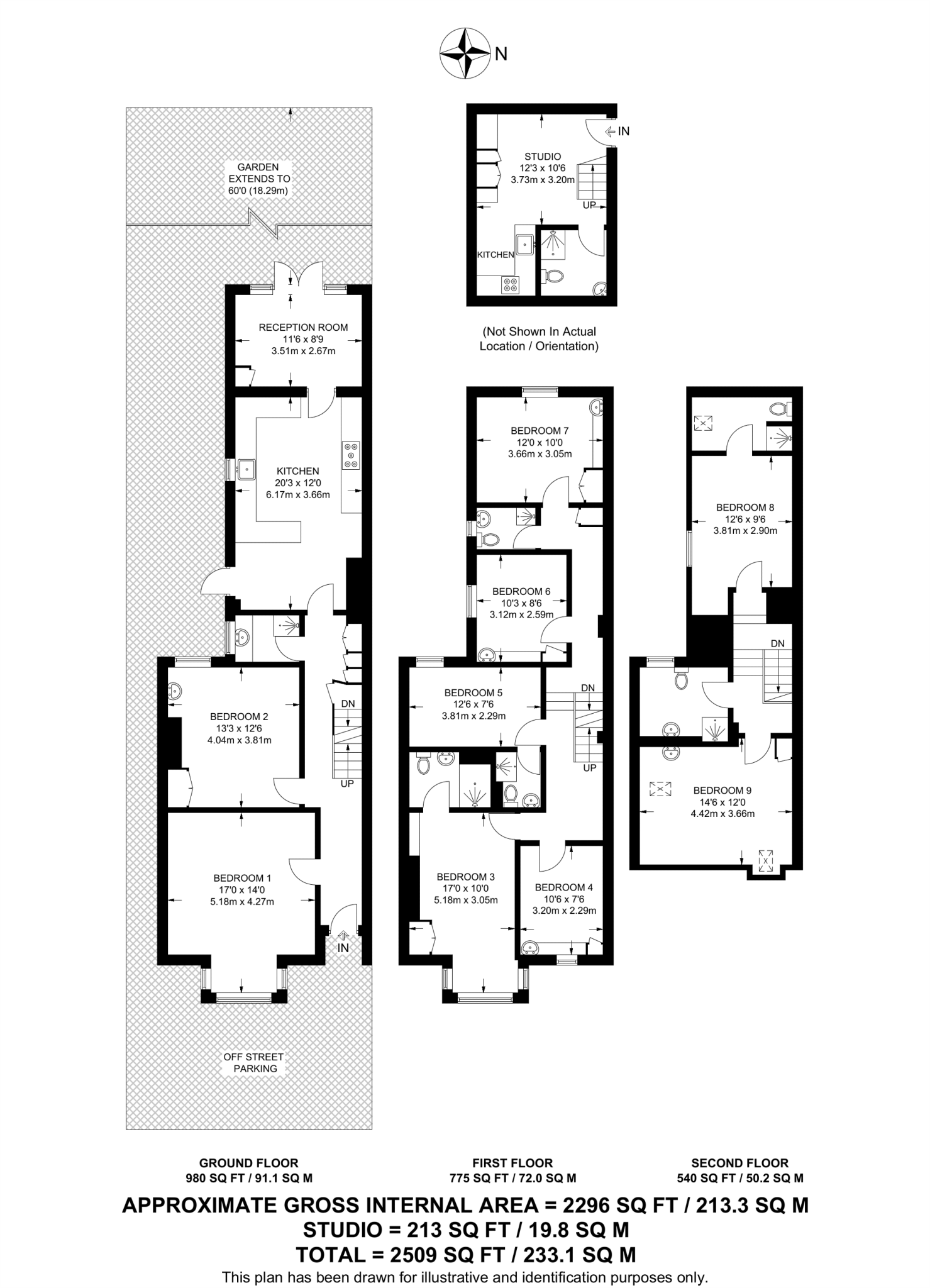
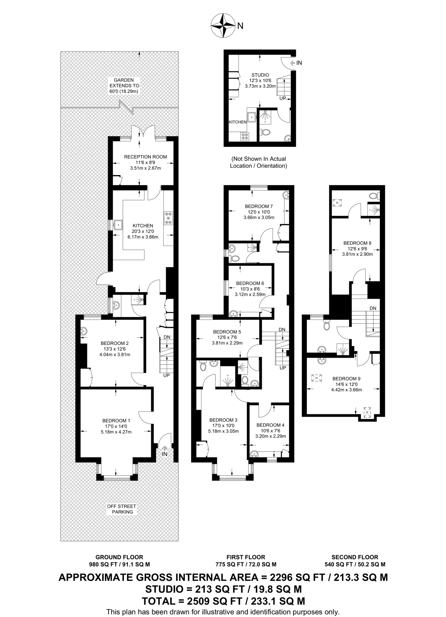
10 furnished bedrooms plus separate studio apartment
A substantial, recently refurbished 10‑bed HMO with a separate studio apartment in central Guildford. The property combines period character with modern living: most bedrooms have en‑suite facilities, there’s a large 20' eat‑in kitchen, a sitting room opening to a private garden, and off‑street parking. Its location places residents within easy walking distance of the town centre and station, which supports strong rental demand.

This freehold semi‑detached house has been let as an HMO for years and is offered furnished, making it attractive to investors seeking an operational income stream. Accommodation totals approximately 2,509 sq ft across multiple floors, and the studio provides additional flexible rental potential or owner accommodation.

Notable cautions are straightforward: the property is in a high crime area and was constructed before 1900 with solid brick walls that likely lack cavity insulation. Double glazing is present but the installation date is unknown. Buyers should allow for ongoing maintenance typical of older houses and check current HMO licensing, compliance and safety certification before purchase.

Overall, the house presents a ready‑to‑run HMO asset in a well‑connected, affluent city location with strong tenant appeal (students and professionals). It will suit investors wanting an income‑generating property with scope for rent optimisation, subject to routine upkeep and regulatory checks.

Property Details

Image Descriptions

Floorplan Description

Rooms

Textual Property Features

Target Audience

AI Tags

Detected Visual Features

EPC Details

Nearby Schools

Nearest Bars And Restaurants

,,,,}

Nearest General Shops

,,}

Nearest Grocery shops

,,}

Nearest Supermarkets

,,}

Nearest Religious buildings

,,}

Nearest Medical buildings

,,,}

Nearest Airports

,}

Nearest Leisure Facilities

,,,,}

Nearest Tourist attractions

,,}

Nearest Train stations

,,,,}

Nearest Bus stations and stops

,,,,}

Nearest Hotels

,,}

Tags

Local Market Stats

AirBnB Data

Similar Properties

Meta

High Res Images

Compatible Images

Low res Images

Thumbnails

Raw Images

High Res Floorplan Images

Compatible Floorplan Images

Low res Floorplan Images

FloorplanImages Thumbnail

Raw Floorplan Images