Quiet cul-de-sac in Abermule with upgraded kitchen and insulated conservatory roof.
Four bedrooms plus en-suite to principal bedroom
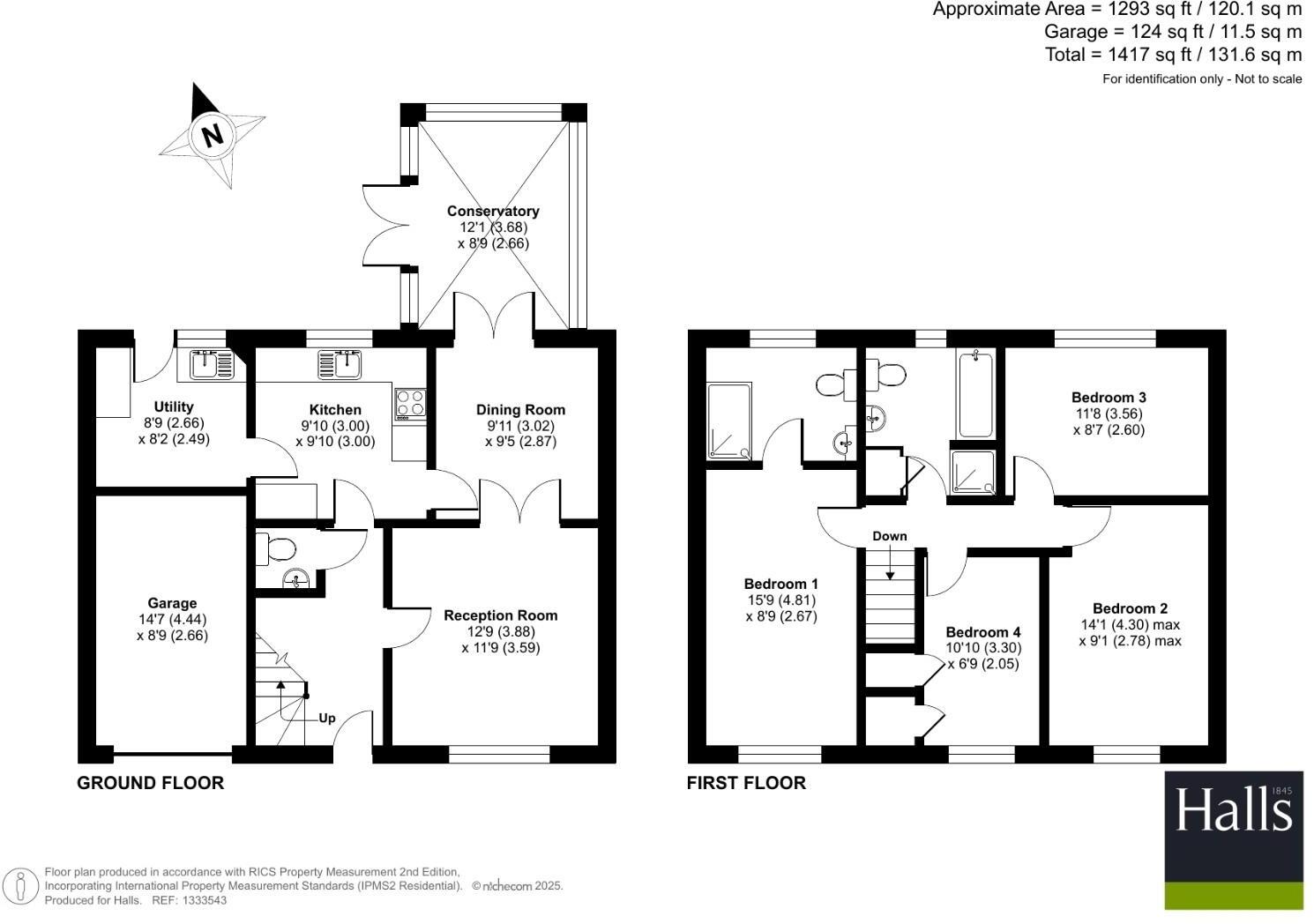
Set at the end of a quiet cul-de-sac in Abermule, this four-bedroom detached house offers comfortable family living with recent upgrades throughout. The entrance hall leads to a lounge and dining room that open into an insulated conservatory, creating a flexible ground-floor layout suited to family life and entertaining. The kitchen has been refitted with oak-fronted units and quality NEFF appliances; a separate utility room adds practical boot-room space.
Upstairs the principal bedroom benefits from a large en-suite shower room; three further bedrooms and a four-piece family bathroom complete the sleeping accommodation. Double glazing was installed post-2002 and a new oil tank has been fitted. Externally there is a single garage, gravel driveway for several cars and a low-maintenance rear garden with a paved patio off the conservatory.
Practical points to note: heating is oil-fired via a boiler and radiators, and the property sits in Council Tax band E (above average). The wider area is classified as remoter rural community with pockets of local deprivation, which may affect services and resale considerations. Broadband and mobile signal are strong, which supports home working and streaming.
This home will suit families seeking a well-presented, mid-market detached house in a peaceful village setting, or investors looking for a straightforward buy-to-let in a rural location. A viewing is recommended to appreciate the standard of finish, the conservatory upgrade and the overall situation within the cul-de-sac.
4 bedroom detached house for sale in Dol Las, Abermule, Montgomery, Powys, SY15 — £310,000 • 4 bed • 1 bath • 1356 ft²
4 bedroom house for sale in Dol Y Felin, Abermule, Montgomery, SY15 — £285,000 • 4 bed • 2 bath • 1107 ft²
4 bedroom detached house for sale in Dol Y Felin, Abermule, Montgomery, Powys, SY15 — £375,000 • 4 bed • 2 bath • 1755 ft²
3 bedroom end of terrace house for sale in Dol Y Felin, Abermule, Montgomery, Powys, SY15 — £255,000 • 3 bed • 1 bath • 1167 ft²
5 bedroom detached house for sale in Abermule, Montgomery, Powys, SY15 — £445,000 • 5 bed • 1 bath • 2067 ft²
4 bedroom detached house for sale in Brynfa Avenue, Welshpool, Powys, SY21 — £330,000 • 4 bed • 2 bath • 1421 ft²






















































































































