**Standout Features:**
- 1-bedroom, 1-bathroom flat in a secure retirement community
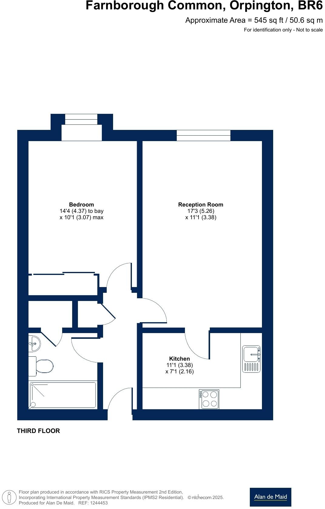
- Total area of approximately 545 square feet
- Conveniently located on the third floor with lift access
- Well-maintained communal garden space
- Chain-free sale, allowing for quick possession
- Proximity to local shops and Princess Royal Hospital
- High education demographic in affluent area
**Notable Concerns:**
- Requires modernization in the kitchen
- Broadband speeds may be slow
- High local crime rate
**Summary:**
Discover the perfect starter home or investment opportunity in this charming 1-bedroom flat located in the serene Summerland's Lodge retirement community. Spanning 545 square feet, the residence features a spacious reception room ideal for relaxing or entertaining, a compact kitchen awaiting a modern touch, and a well-sized bedroom. With lift access and a large communal reception area, this third-floor unit offers convenience and comfort in a beautiful setting, surrounded by lush greenery and well-kept communal gardens.
Ideal for first-time buyers or those looking to downsize, this property provides an exceptional chance to join a community in the affluent BR6 postcode. Its prime location boasts easy access to local shops, public transportation, and esteemed schools, making it particularly attractive for families or retirees. Although the property requires some updating, it holds significant potential to create a cozy retreat. Act swiftly, as this chain-free opportunity could be snapped up quickly!
1 bedroom flat for sale in Farnborough Common, Orpington, BR6 — £200,000 • 1 bed • 1 bath • 645 ft²
1 bedroom flat for sale in Farnborough Common, Orpington, BR6 — £175,000 • 1 bed • 1 bath • 539 ft²
1 bedroom flat for sale in Farnborough Common, Orpington, BR6 — £180,000 • 1 bed • 1 bath • 542 ft²
1 bedroom flat for sale in Farnborough Common, Orpington, BR6 — £218,000 • 1 bed • 1 bath • 561 ft²
1 bedroom retirement property for sale in Farnborough Common, Orpington, BR6 — £170,000 • 1 bed • 1 bath • 542 ft²
1 bedroom flat for sale in Farnborough Common, Orpington, BR6 — £200,000 • 1 bed • 1 bath • 541 ft²






























