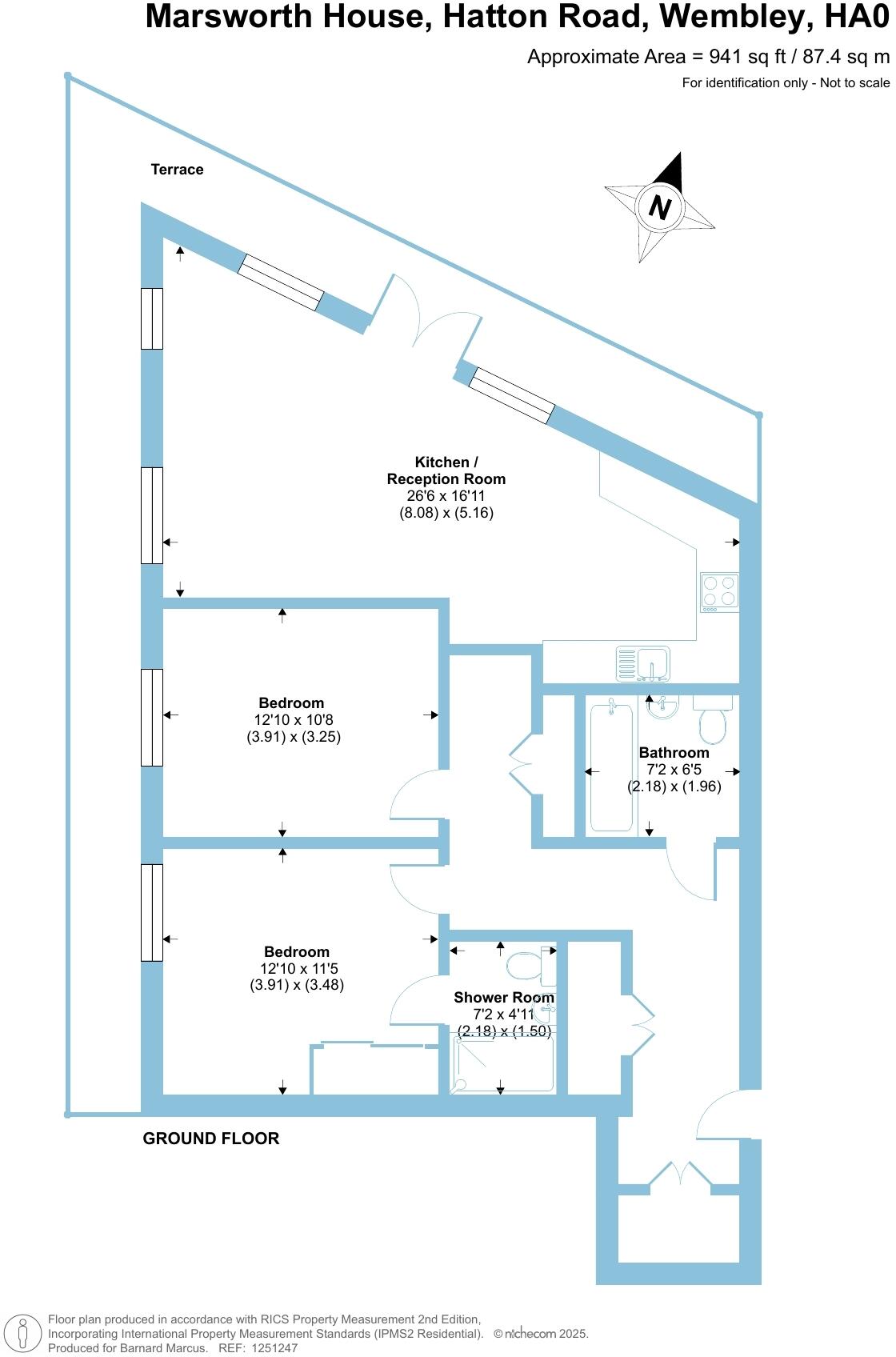
Large two-bedroom flat with private terrace, secure parking and no onward chain..
Two double bedrooms and two modern bathrooms
Circa 1,000 sq ft living space — unusually spacious for Wembley
Private wrap-around terrace c.100 sq ft with canal and garden views
Secure underground parking and onsite bike storage
Vacant and chain-free — immediate move or let potential
Leasehold with c.114 years remaining; service charge ~£3,000 pa
Ground rent approx. £300 pa; heating via community scheme
Located near transport hubs, shopping and several good schools
This ground-floor apartment in Marsworth House offers generous, flexible living across circa 1,000 sq ft — ideal for families or buyers wanting space near central transport links. The home has two double bedrooms, two bathrooms and a large 26' reception/dining room that opens onto an impressive wrap-around terrace overlooking communal gardens and the Grand Union Canal.
Practical benefits include secure underground parking, onsite bike storage, lifts, intercom entry and three hallway storage cupboards. The flat is vacant and chain-free, so it suits buyers seeking a quick move or an investment purchase with immediate let or occupancy potential.
Buyers should note this is a leasehold property with c.114 years remaining, a service charge of about £3,000 pa and a ground rent around £300 pa. Heating is provided via a community scheme — check service arrangements and costs as part of due diligence.
The location gives reliable transport links to Central London, Westfield and local shopping, plus several well-rated primary and secondary schools within reach. The property is in a diverse, densely populated area with average crime levels and fast broadband, offering practical urban living with a private outdoor space rarely found at ground-floor level.
2 bedroom flat for sale in Hatton Road, Wembley, HA0 — £450,000 • 2 bed • 2 bath • 926 ft²
2 bedroom flat for sale in Hatton Road, WEMBLEY, HA0 — £425,000 • 2 bed • 2 bath • 704 ft²
2 bedroom flat for sale in Hatton Road, Wembley, HA0 — £425,000 • 2 bed • 2 bath • 830 ft²
2 bedroom apartment for sale in Hatton Road, Wembley, HA0 — £450,000 • 2 bed • 2 bath • 940 ft²
1 bedroom flat for sale in Hatton Road, Wembley, HA0 — £275,000 • 1 bed • 1 bath • 550 ft²
2 bedroom apartment for sale in Marsworth House, Wembley, HA0 — £400,000 • 2 bed • 2 bath • 804 ft²






































































