Established family-run business with event space and garden potential.
Substantial 1826 Georgian freehold building
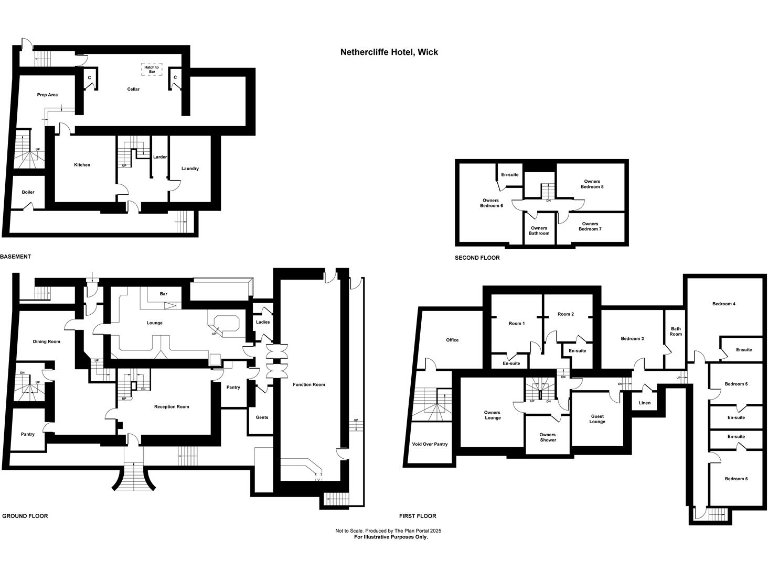
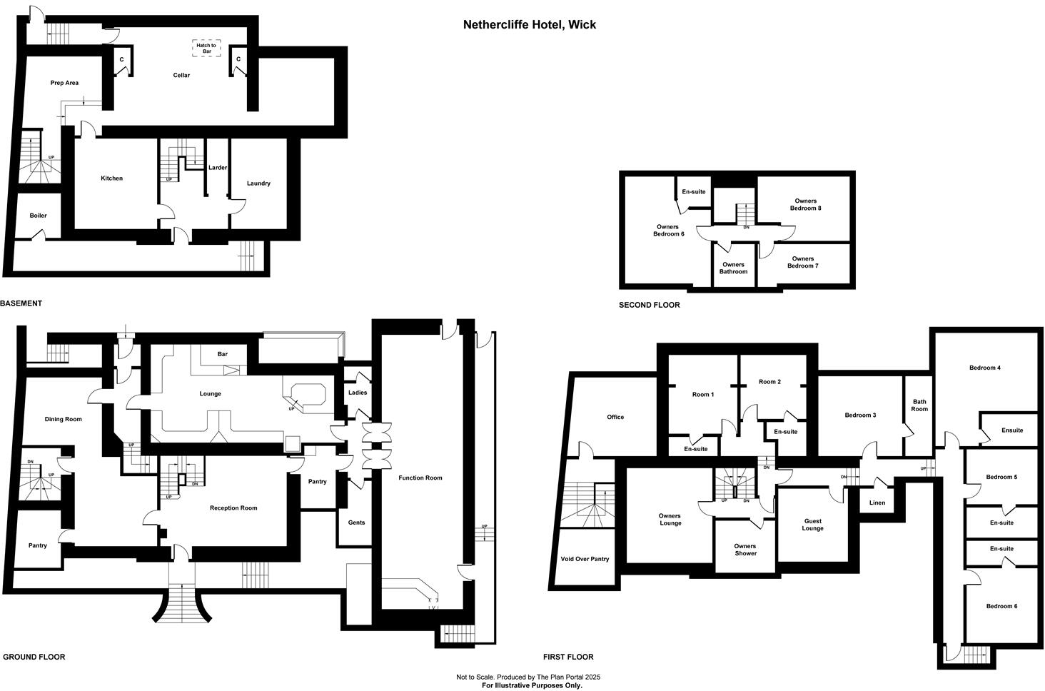
The Nethercliffe Hotel is a substantial Georgian freehold on Wick’s High Street, built in 1826 and trading profitably for over 60 years. The property combines six ensuite letting rooms, an exceptionally large three‑bed owners’ apartment across the top floor, and a traditional function suite with a separate bar — a flexible layout that suits continuing hospitality use or conversion for larger events.
Public areas are characterful and practical: a welcoming lounge bar, a 30‑cover dining room and a long function room that seats about 70. The south‑facing garden, greenhouse, kitchen garden and BBQ hut are useful added revenue and guest‑experience features, especially in summer. The commercial basement kitchen, cellar with direct street access for deliveries, laundry and prep areas support efficient day‑to‑day trading.
This is a proven family business with steady year‑round custom from tourists on the North Coast 500, business travellers and local trade. There is clear potential to increase turnover by reconfiguring letting accommodation, developing weddings/events, or expanding external garden events. Excellent mobile signal and on‑site off‑street parking aid operations in a remote area with good transport links nearby.
Buyers should note material considerations: the hotel sits in a very deprived area which can affect staffing and local spending; broadband is average; and the owners’ accommodation effectively has a single primary bathing facility. As with many historic stone buildings, ongoing maintenance and sympathetic repairs will be required to preserve architectural features and building fabric. Overall, the Nethercliffe offers a rare freehold opportunity for an owner‑operator seeking an established, characterful Highland hotel with scope to grow revenue.
Hotel for sale in Queens Hotel , Highland, KW1 — £425,000 • 1 bed • 1 bath
Hotel for sale in Mackays Hotel, Union Street, Wick, KW1 5ED, KW1 — £1,200,000 • 1 bed • 1 bath
Guest house for sale in Wickers World , Cafe, B&B Rooms and Owners Accommodation, Highland, KW1 — £510,000 • 1 bed • 1 bath
High street retail property for sale in Hugo Fishing Tackle (Vacant Retail Unit), Highland, KW1 — £99,000 • 1 bed • 1 bath • 1001 ft²
Hotel for sale in Holborn Hotel, Thurso, Highland, KW14 — £475,000 • 1 bed • 1 bath
Studio apartment for sale in Wickers World ,Cafe, B&B Rooms and Owners Accommodation, Highland, KW1 — £510,000 • 1 bed • 1 bath


























































































































































