**Standout Features:**
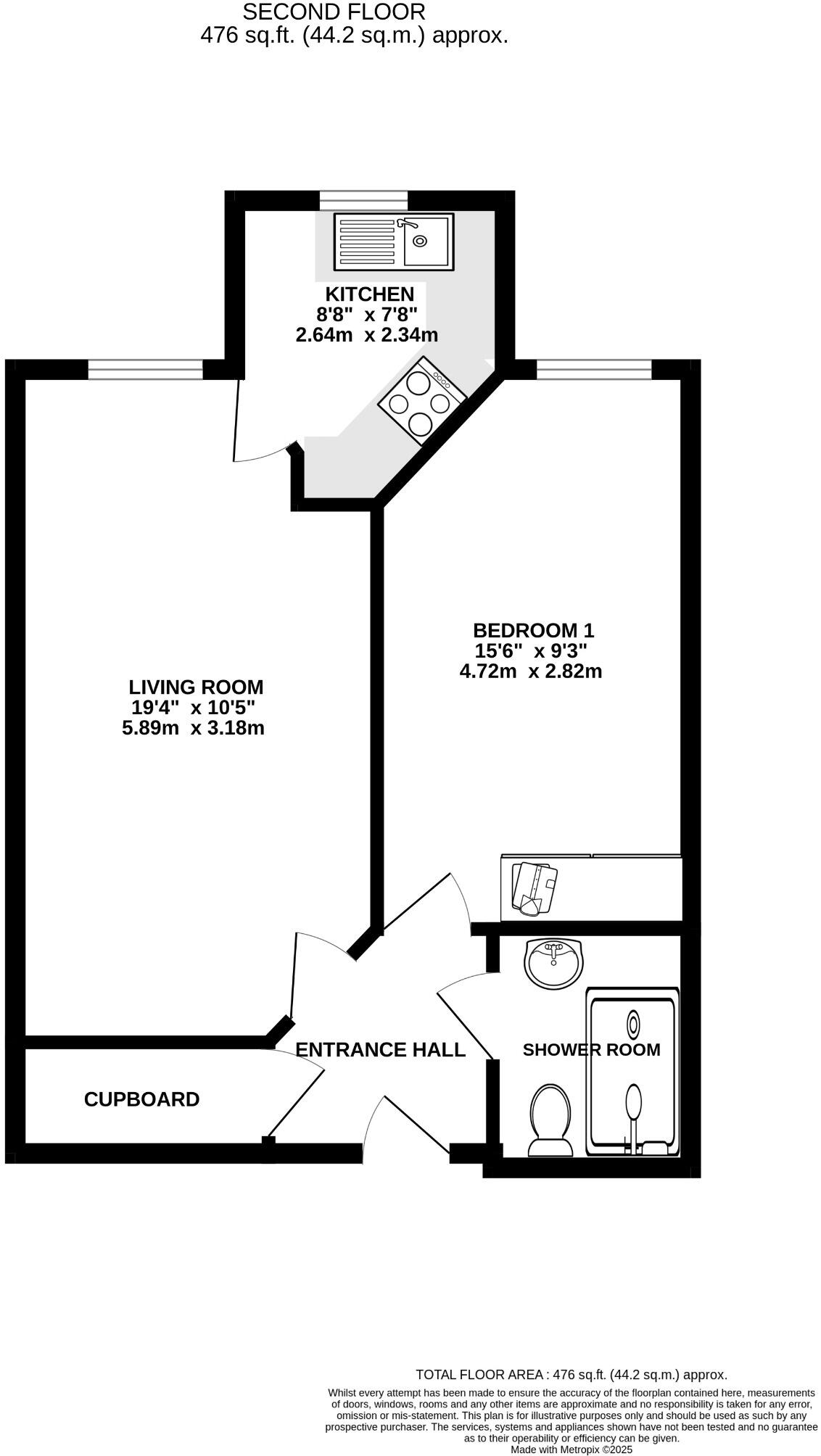
- Second floor retirement apartment with no forward chain
- One bedroom with built-in wardrobes
- Spacious living room and separate kitchen
- Modern bathroom with shower cubicle
- Access to communal gardens, laundry, and lounge
- Non-allocated off-street parking
- EPC Rating: C
- 103 years remaining on lease
- 24-hour emergency care line and on-site house manager
**Concerns:**
- General condition: Minor wear in the living room, slow broadband speeds
- Crime: Above average in the area
This charming second-floor retirement apartment offers a rare opportunity to join a welcoming community in a popular development tailored for the over 60s. With a well-appointed living space featuring a cozy living room, separate kitchen, and a comfortable bedroom with built-in wardrobes, this property prioritizes comfort and functionality. The apartment comes with essential amenities, including double glazing and electric heating, ensuring a cozy atmosphere year-round.
Outside, residents can enjoy beautifully maintained communal gardens, a laundry room, and a lounge that fosters social connections. With no forward chain and a secure entrance, this opportunity is perfect for first-time buyers seeking a tranquil lifestyle balanced with convenience. While the area has an above-average crime rate and the broadband speed is slow, the fantastic community amenities and nearby schools with excellent ratings provide a comforting feel for those ready to plant their roots.
With a competitive price of £97,500 and an impressive average-sized layout of 476 square feet, this apartment is not only an affordable choice but also a smart investment in your future. Don’t miss out on this opportunity, contact us to secure your viewing today!
1 bedroom retirement property for sale in Acacia Lodge, Fareham, PO16 — £85,000 • 1 bed • 1 bath • 343 ft²
1 bedroom flat for sale in Trinity Street, Fareham, PO16 — £130,000 • 1 bed • 1 bath • 539 ft²
1 bedroom retirement property for sale in Acacia Lodge, Fareham, PO16 — £115,000 • 1 bed • 1 bath • 553 ft²
1 bedroom apartment for sale in Homefayre House, Western Road, Fareham, PO16 — £69,950 • 1 bed • 1 bath • 413 ft²
1 bedroom ground floor flat for sale in Homefayre House, Western Road, Fareham, PO16 — £150,000 • 1 bed • 1 bath • 407 ft²
1 bedroom apartment for sale in Homefayre House, Fareham, PO16 — £60,000 • 1 bed • 1 bath • 441 ft²






































