Large, character-rich family home near promenade and schools.
Sea and promenade within short walking distance
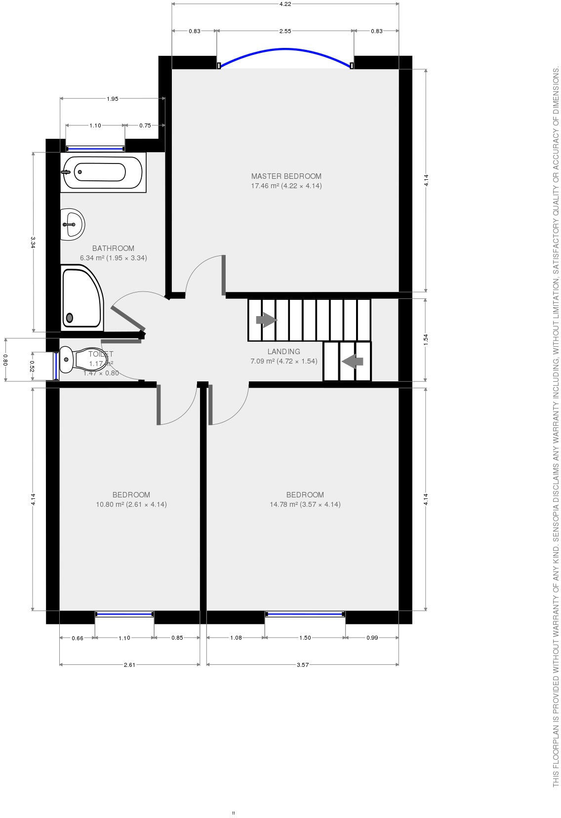
Three double bedrooms with period features throughout
Two large reception rooms plus conservatory-style space
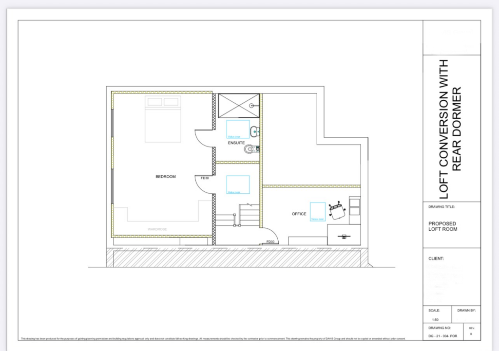
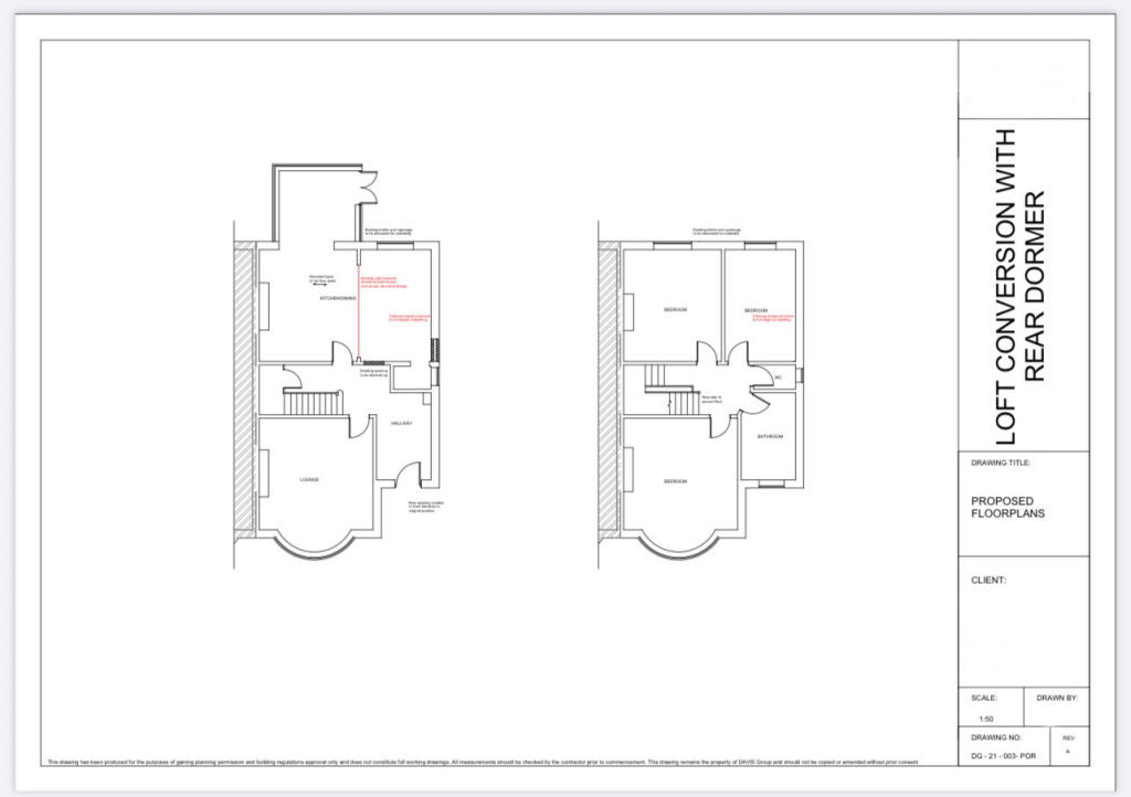
Planning permission in place for loft conversion (rear dormer)
Large low-maintenance rear garden with brick outbuilding
Driveway for two cars and newly rebuilt front boundary wall
Single family bathroom only; one bathroom may be limiting
EPC D — some energy or heating improvements may be needed
This handsome Victorian semi delivers spacious family living in a sought-after Fleetwood location, a short walk from the promenade, schools and local amenities. The house retains period character—coved ceilings, picture rails, bay windows and original floor tiles—while many rooms have been modernised and decorated to a high standard.
Accommodation includes three double bedrooms, two generous reception rooms, a modern kitchen/breakfast area with utility space, and a striking bath-and-shower room. The extensive, low-maintenance rear garden, Indian stone driveway for two cars and a useful brick outbuilding (office/gym potential) add flexible family appeal.
Practical advantages include full double glazing, gas central heating, off-street parking and planning permission already in place for a loft conversion with a rear dormer. That permission represents clear scope to add significant further space and value.
Notable points to consider: the property currently has a single family bathroom and an EPC rating of D, so energy upgrades may be desirable. The loft conversion is permitted but not yet implemented. Overall, this is a large, partly newly renovated Victorian home offering excellent family potential in a popular coastal neighbourhood.
3 bedroom semi-detached house for sale in Fleetwood Road, Fleetwood, FY7 — £210,000 • 3 bed • 1 bath • 1050 ft²
3 bedroom semi-detached house for sale in Poulton Road, Fleetwood, Lancashire, FY7 — £185,000 • 3 bed • 2 bath • 1539 ft²
3 bedroom semi-detached house for sale in Warren Avenue North, Fleetwood, FY7 — £215,000 • 3 bed • 1 bath • 1037 ft²
3 bedroom semi-detached house for sale in The Esplanade, Fleetwood, FY7 — £350,000 • 3 bed • 1 bath • 1496 ft²
5 bedroom semi-detached house for sale in Darbishire Road, Fleetwood, FY7 — £425,000 • 5 bed • 1 bath • 2179 ft²
3 bedroom semi-detached house for sale in Broadway, Fleetwood, Lancashire, FY7 — £170,000 • 3 bed • 1 bath • 1173 ft²














































































































