WV11 1BU - 3 bedroom semidetached house for sale in Fairview Crescent,…

View on Property Piper

3 bedroom semi-detached house for sale in Fairview Crescent, Wolverhampton, WV11

Summary - 6 FAIRVIEW CRESCENT WOLVERHAMPTON WV11 1BU

3 bed 1 bath Semi-Detached

**Property Highlights:**
- Semi-detached family home with three spacious bedrooms
- Freshly renovated with modern features throughout
- Enclosed south-facing rear garden, ideal for outdoor activities
- Ample off-street parking for up to three vehicles, plus garage
- Located in a quiet, desirable area close to excellent schools and amenities
- Low crime rate and fast broadband connectivity

Nestled in a peaceful suburb, this charming semi-detached home offers a welcoming environment for families. The interior features an inviting hallway that leads to a bright and airy lounge, perfect for relaxation and gatherings. A well-appointed dining room opens directly to an enclosed, south-facing garden, providing a delightful space for entertaining or unwinding outdoors. The modern kitchen boasts generous surface space and a small breakfast bar, while the converted garage serves as a flexible home office.

Upstairs, you'll find a generously sized master bedroom, two additional inviting bedrooms, and a thoughtfully refurbished bathroom. With its excellent location near top-rated schools and convenient local amenities, this property balances comfort and accessibility. While the home is in great condition and move-in ready, it offers potential for personal touches. Act quickly—this exceptional family home will not be on the market for long!

Property Details

Image Descriptions

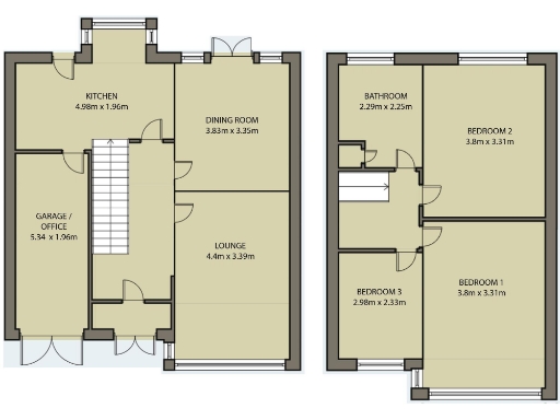
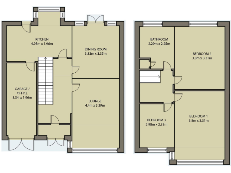
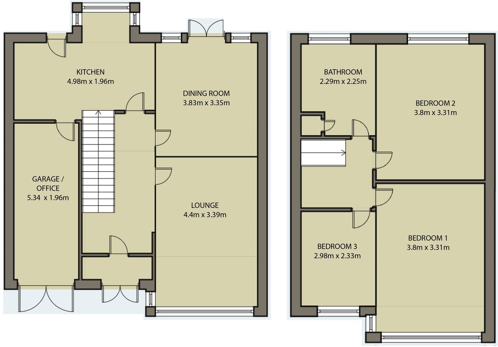
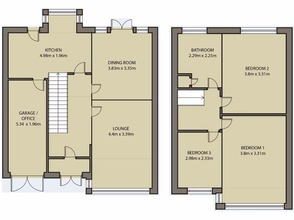
Rooms

Textual Property Features

Detected Visual Features

Nearby Schools

Nearest Bars And Restaurants

,,,,}

Nearest General Shops

,,}

Nearest Grocery shops

,,}

Nearest Supermarkets

,,}

Nearest Religious buildings

,,}

Nearest Medical buildings

,,,}

Nearest Airports

}

Nearest Leisure Facilities

,,,,}

Nearest Tourist attractions

,,}

Nearest Train stations

,,,,}

Nearest Bus stations and stops

,,,,}

Nearest Hotels

,,}

Tags

Local Market Stats

Similar Properties

Meta

High Res Images

Compatible Images

Low res Images

Thumbnails

Raw Images

High Res Floorplan Images

Compatible Floorplan Images

Low res Floorplan Images

FloorplanImages Thumbnail

Raw Floorplan Images