Chain-free two-bed with garden and period charm, close to good schools.
Chain-free two-bedroom link-detached house
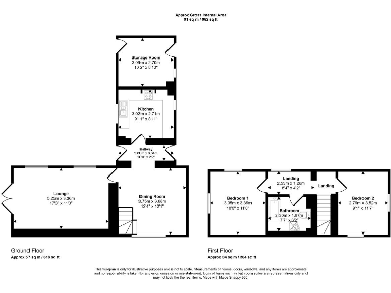
Chain-free and set in the established Goldington area of Bedford, this two-bedroom link-detached house blends period character with practical living. The property offers a spacious lounge, separate dining room and a fitted kitchen — a layout well suited to families or first-time buyers seeking room to grow. An enclosed rear garden and an external storage/outbuilding add outdoor space and useful utility.
Built between 1900–1929, the home retains original features that give it charm, but the solid-brick walls are likely uninsulated and may need upgrading to improve comfort and energy efficiency. The fitted bathroom and kitchen are ready for use, though buyers seeking a fully modern finish may want to update to personal taste.
Practical strengths include mains gas central heating, double glazing and fast broadband with excellent mobile signal. The plot is a decent size for the area, and flooding risk is low. Local schools are rated Good, and shops, bus routes and Bedford town centre are within reach, making everyday life straightforward.
This property suits buyers who value character and outside space, are comfortable carrying some improvement work (particularly insulation and optional cosmetic updates), and want a ready-to-move-into home without a chain.
2 bedroom terraced house for sale in Churchville Road, Bedford, MK42 9PT, MK42 — £240,000 • 2 bed • 1 bath
3 bedroom detached house for sale in Gainsborough Rise, Bedford, MK41 — £325,000 • 3 bed • 1 bath • 878 ft²
2 bedroom semi-detached house for sale in The Cloisters, Bedford, Bedfordshire, MK41 — £270,000 • 2 bed • 1 bath • 754 ft²
2 bedroom terraced house for sale in Roff Avenue, Bedford, MK41 — £200,000 • 2 bed • 1 bath • 798 ft²
3 bedroom end of terrace house for sale in York Street, Bedford, MK40 — £350,000 • 3 bed • 1 bath • 824 ft²
3 bedroom semi-detached house for sale in Chiltern Avenue, Bedford, MK41 — £350,000 • 3 bed • 1 bath • 1139 ft²


















































































