Elevated three-bed home with sea views, large garden and double garage — chain free..
Detached three-bedroom house with sea views from first floor
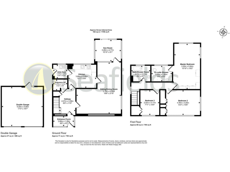
Set in an elevated position on Solent View Road, this detached 1970s house offers genuine seaside character and far-reaching Solent views from the first floor. The ground floor living space is generous — an L-shaped sitting/dining room flows to a sun room that opens onto a large, mature garden and elevated patio, ideal for alfresco dining and family use. A double garage and wide driveway provide plentiful car and boat parking.
The house has been well cared for but offers clear scope to modernise and put your own stamp on it. Three bedrooms (one extended with an en suite), a separate kitchen, utility and two bathrooms deliver practical family living; a newly installed wall-mounted Glow-worm gas boiler is a recent mechanical upgrade. EPC is pending.
Material points to note: the property is offered chain free and freehold but is described as needing renovation — cosmetic and updating works are expected. Council Tax is band F (expensive). Flood risk is low and services are mains-connected. This will suit families or buyers seeking a substantial, characterful home with scope to refurbish and enhance sea-facing rooms and generous outdoor space.
 4 bedroom detached house for sale in Caws Avenue, Seaview, PO34 5JR, PO34 — £595,000 • 4 bed • 3 bath • 1517 ft²
 4 bedroom detached house for sale in Caws Avenue, Seaview, PO34 5JR, PO34 — £595,000 • 4 bed • 3 bath • 1517 ft² 3 bedroom detached house for sale in Solent View Road, Seaview, PO34 5HX, PO34 — £525,000 • 3 bed • 2 bath • 1762 ft²
 3 bedroom detached house for sale in Solent View Road, Seaview, PO34 5HX, PO34 — £525,000 • 3 bed • 2 bath • 1762 ft² 3 bedroom detached house for sale in Seaview, PO34 5AS, PO34 — £750,000 • 3 bed • 2 bath • 807 ft²
 3 bedroom detached house for sale in Seaview, PO34 5AS, PO34 — £750,000 • 3 bed • 2 bath • 807 ft² 3 bedroom detached house for sale in Westfield Park, Ryde, PO33 3AB, PO33 — £465,000 • 3 bed • 1 bath • 1187 ft²
 3 bedroom detached house for sale in Westfield Park, Ryde, PO33 3AB, PO33 — £465,000 • 3 bed • 1 bath • 1187 ft² 4 bedroom detached house for sale in Holgate Lane, Seaview, PO34 5DH, PO34 — £575,000 • 4 bed • 3 bath • 1618 ft²
 4 bedroom detached house for sale in Holgate Lane, Seaview, PO34 5DH, PO34 — £575,000 • 4 bed • 3 bath • 1618 ft² 3 bedroom detached house for sale in The Glade, Nettlestone, PO34 5JA, PO34 — £418,000 • 3 bed • 2 bath • 1432 ft²
 3 bedroom detached house for sale in The Glade, Nettlestone, PO34 5JA, PO34 — £418,000 • 3 bed • 2 bath • 1432 ft²










































































