Sunny rear garden, garage and extended living — ideal for growing families.
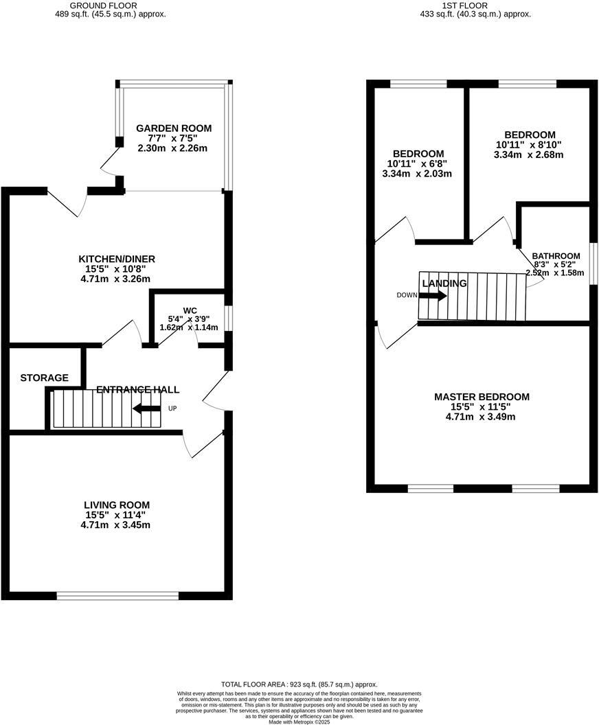
- Extended kitchen/diner with garden room and French doors
- South-facing landscaped rear garden, decent private plot
- Off-road parking for two cars plus attached garage
- Three generous bedrooms; master with built-in storage
- Single family bathroom only; no en-suite
- Freehold, approx. 923 sq ft, well-presented throughout
- Above-average local crime rate to note
- Close to Bradlaugh Fields and several Good-rated schools
Set just moments from Bradlaugh Fields in the popular Parklands area, this three-bedroom semi-detached home combines ready-to-live-in spaces with practical family layout. The extended kitchen/diner and adjoining garden room open by French doors onto a south-facing rear garden, creating a bright, sociable ground floor ideal for everyday family life and entertaining.
Upstairs there are three generous bedrooms and a contemporary family bathroom; the master bedroom includes built-in wardrobe storage. Outside, off-road parking for two vehicles and an attached garage provide useful storage or workshop options, while the decent plot and landscaped garden offer scope for outdoor use and family play.
Local amenities, good primary and secondary schools, and strong transport links are within easy reach, making the location particularly convenient for families. The property is freehold, of average overall size (approx. 923 sq ft), and offered at a competitive price point for the area.
Important practical points: the neighbourhood records above-average crime, which some buyers will want to factor into their decision. There is a single family bathroom only, which may be limiting for larger households. Early viewing is advised to appreciate the layout and garden orientation.
4 bedroom detached house for sale in Goodwood Avenue, Parklands, Northampton NN3 — £455,000 • 4 bed • 2 bath • 1410 ft²
3 bedroom semi-detached house for sale in Dickson Close, Northampton, NN4 — £260,000 • 3 bed • 1 bath • 905 ft²
3 bedroom semi-detached house for sale in Oundle Drive, Moulton, NN3 7DD, NN3 — £285,000 • 3 bed • 1 bath • 1056 ft²
3 bedroom terraced house for sale in Cartmel Place, Northampton, NN3 — £215,000 • 3 bed • 1 bath • 797 ft²
3 bedroom link detached house for sale in Ash Rise, Northampton, NN2 — £300,000 • 3 bed • 1 bath • 958 ft²
3 bedroom semi-detached house for sale in Oulton Rise, Parklands, NN3 6EW, NN3 — £270,000 • 3 bed • 1 bath • 1153 ft²


















































