BR1 2DU - 5 bedroom detached house for sale in Beresford Drive, Bickl…

View on Property Piper

5 bedroom detached house for sale in Beresford Drive, Bickley, BR1

Summary - Beresford Drive, Bickley, BR1 BR1 2DU

5 bed 2 bath Detached

**Standout Features:**
- Detached Tudor-style brick façade
- Spacious five-bedroom layout with four reception rooms
- Large well-maintained garden for outdoor enjoyment
- Versatile under-house room currently serving as a gym
- Close proximity to Bickley and Chislehurst stations
- Excellent local schools with outstanding ratings
- Quiet cul-de-sac location in an affluent area
- Great parking with an attached garage and ample driveway space

**Concise Summary:**
Discover this distinguished five-bedroom Tudor-style detached home nestled in a serene cul-de-sac in Bickley. Boasting spacious accommodation across two floors, this family residence offers four airy reception rooms, two bathrooms, and private outdoor space enhanced by a beautifully landscaped garden. An under-house room provides flexible usage options, perfect for a gym or additional storage. With top-rated schools and convenient links to both Bickley and Chislehurst stations nearby, this property harmonizes comfort with practicality. While the house presents a fantastic foundation for contemporary living, potential buyers should be aware of minor renovation prospects thanks to its generous dimensions and an air of exclusivity. Don't miss out on the opportunity to make this extraordinary family home your own!

Property Details

Brochure Descriptions

Image Descriptions

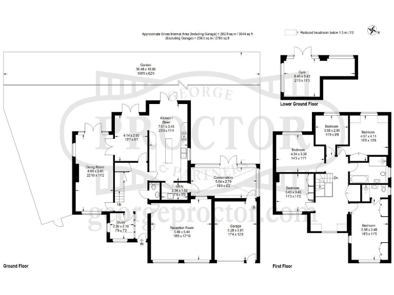
Floorplan Description

Rooms

Textual Property Features

Detected Visual Features

EPC Details

Nearby Schools

Nearest Bars And Restaurants

,,,,}

Nearest General Shops

,,}

Nearest Grocery shops

,,}

Nearest Supermarkets

,,}

Nearest Religious buildings

,,}

Nearest Medical buildings

,,,}

Nearest Airports

,,}

Nearest Leisure Facilities

,,,,}

Nearest Tourist attractions

,,}

Nearest Train stations

,,,,}

Nearest Bus stations and stops

,,,,}

Nearest Hotels

,,}

Tags

Local Market Stats

Similar Properties

Meta

High Res Images

Compatible Images

Low res Images

Thumbnails

Raw Images

High Res Floorplan Images

Compatible Floorplan Images

Low res Floorplan Images

FloorplanImages Thumbnail

Raw Floorplan Images