Bright two-bedroom home, move-in ready with excellent commuter links.
Two double bedrooms, well-presented and newly renovated
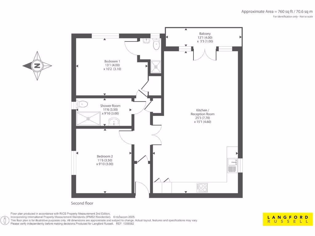
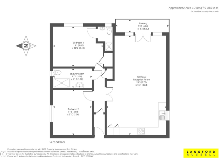
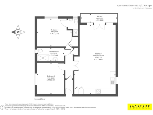
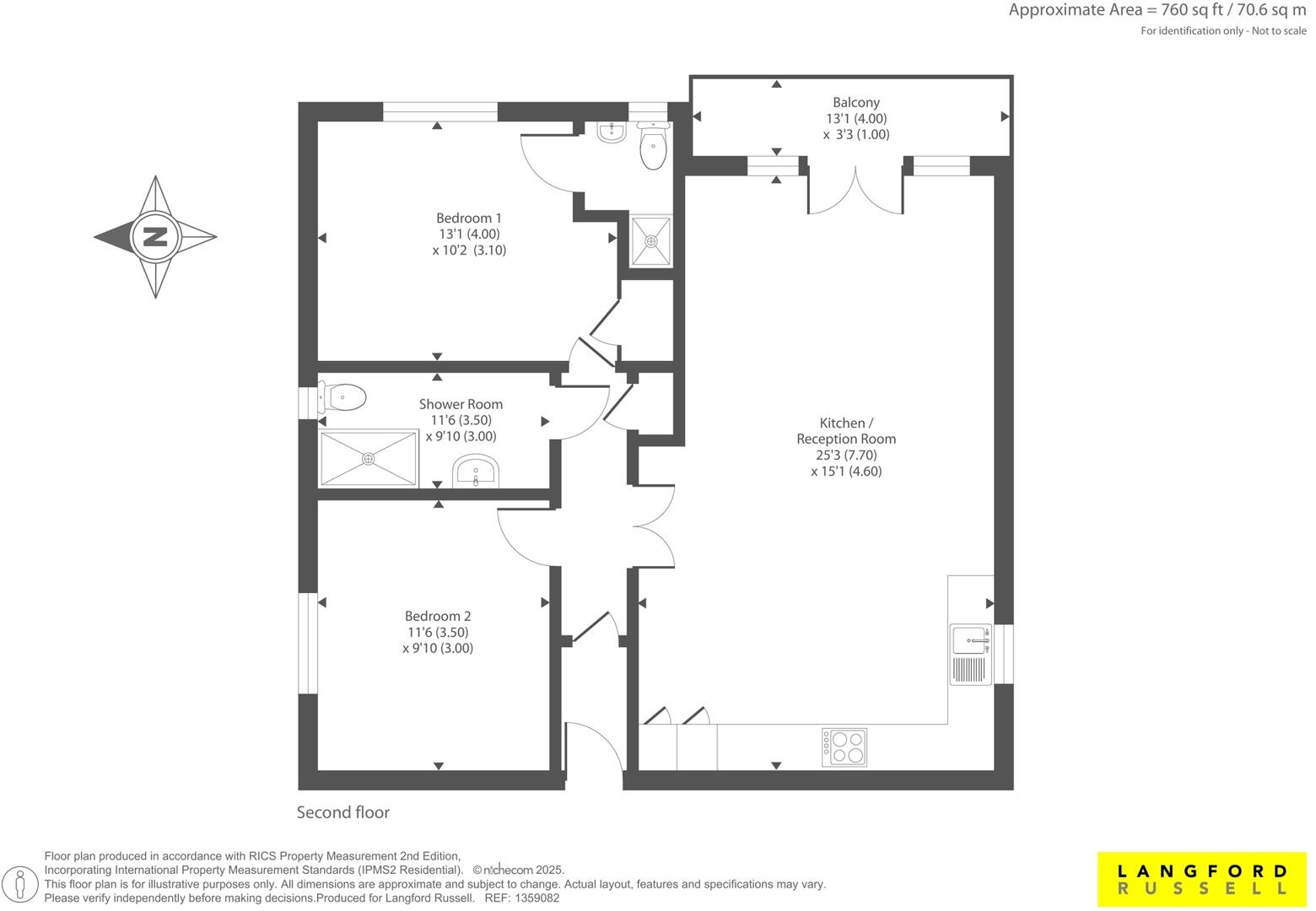
Presented in immaculate order, this newly renovated two-bedroom home sits on the first floor and is offered ready to move into. The dual-aspect reception room and east-facing private balcony flood the space with natural light, while generous storage and a contemporary kitchen make daily living straightforward.
Transport is a clear strength: the property is approximately 0.8 miles from the mainline station with direct services into central London, and Sidcup High Street’s shops, cafés and services are within easy walking distance. The 760 sq ft layout suits couples or first-time buyers seeking space and convenience.
Practical details to note: the flat is leasehold with 107 years remaining, a peppercorn ground rent and an annual service charge of about £3,400. Council Tax band D applies. The apartment is in an affluent area with good local schools, but local crime levels are reported as high, which may concern some buyers.
Overall this is a low-maintenance, well-presented buy with strong commuter appeal and clear rental potential for investors, provided the ongoing service charge and local safety considerations fit your budget and priorities.
2 bedroom apartment for sale in Hatherley Road, Sidcup, DA14 — £400,000 • 2 bed • 2 bath • 827 ft²
2 bedroom flat for sale in Merino Place, Sidcup, Kent, DA15 — £260,000 • 2 bed • 1 bath • 614 ft²
2 bedroom apartment for sale in Chislehurst Road, Sidcup, DA14 — £269,500 • 2 bed • 1 bath • 508 ft²
2 bedroom apartment for sale in Heath House, Main Road, Sidcup, Kent, DA14 — £275,000 • 2 bed • 1 bath • 657 ft²
2 bedroom apartment for sale in Chatswood Mews, Sidcup, DA14 — £360,000 • 2 bed • 2 bath • 761 ft²
2 bedroom flat for sale in 1 Ash Close, Sidcup, DA14 — £410,000 • 2 bed • 1 bath • 710 ft²


























































































