Chain-free starter with upgrade potential near schools and transport links.
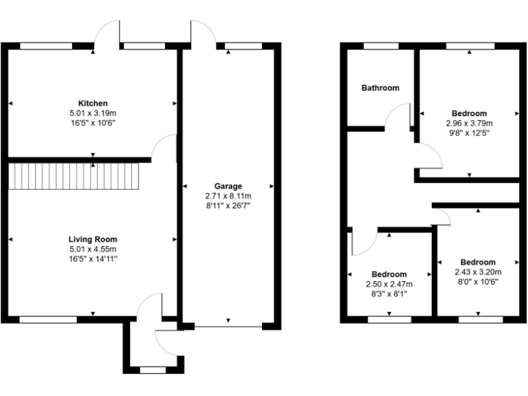
Chain-free three-bedroom semi-detached home
This three-bedroom semi-detached house offers a straightforward, affordable entry into the Crewe market. With three double bedrooms and a large living room, the layout suits first-time buyers or small families seeking practical space to customise. The property is chain-free and offers immediate possession potential.
The home requires modernising throughout but presents clear scope to add value: an open kitchen-diner with garden access, garage and driveway, and room for a rear or loft extension subject to consent. The house is built c.1970 with cavity walls likely uninsulated, so energy upgrades would improve comfort and running costs.
Practical drawbacks are stated plainly: it needs renovation, has a single bathroom, sits on a small plot, and local recorded crime is above average. Council tax is low and transport, broadband and mobile signals are strong, which supports commuting and working from home. Nearby primary and secondary schools with good Ofsted ratings add appeal for young families.
Overall this property suits buyers who want a low-entry purchase with the potential to modernise and increase value, or investors seeking a refurbishment project in an established residential area.
3 bedroom semi-detached house for sale in Sweet Briar Crescent, Crewe, CW2 — £150,000 • 3 bed • 1 bath
3 bedroom detached house for sale in Melrose Drive, Crewe, Cheshire, CW1 — £210,000 • 3 bed • 1 bath • 978 ft²
3 bedroom semi-detached house for sale in Freshfields, Wistaston, Crewe, Cheshire, CW2 — £280,000 • 3 bed • 1 bath • 1354 ft²
3 bedroom terraced house for sale in Adelaide Street, Crewe, Cheshire, CW1 — £100,000 • 3 bed • 1 bath • 1051 ft²
3 bedroom semi-detached bungalow for sale in Falmouth Road, Crewe, CW1 — £190,000 • 3 bed • 1 bath • 1057 ft²
3 bedroom semi-detached house for sale in Herbert Swindells Close, Crewe, Cheshire, CW2 — £170,000 • 3 bed • 1 bath • 709 ft²






























































