**Standout Features:**
- Charming three-bedroom semi-detached house
- Well-presented throughout with modern touches
- Spacious rear garden with patio, perfect for families
- Downstairs WC and utility room for added convenience
- Off-road driveway parking for two vehicles
- Chain-free sale
- Low crime area with excellent transport links
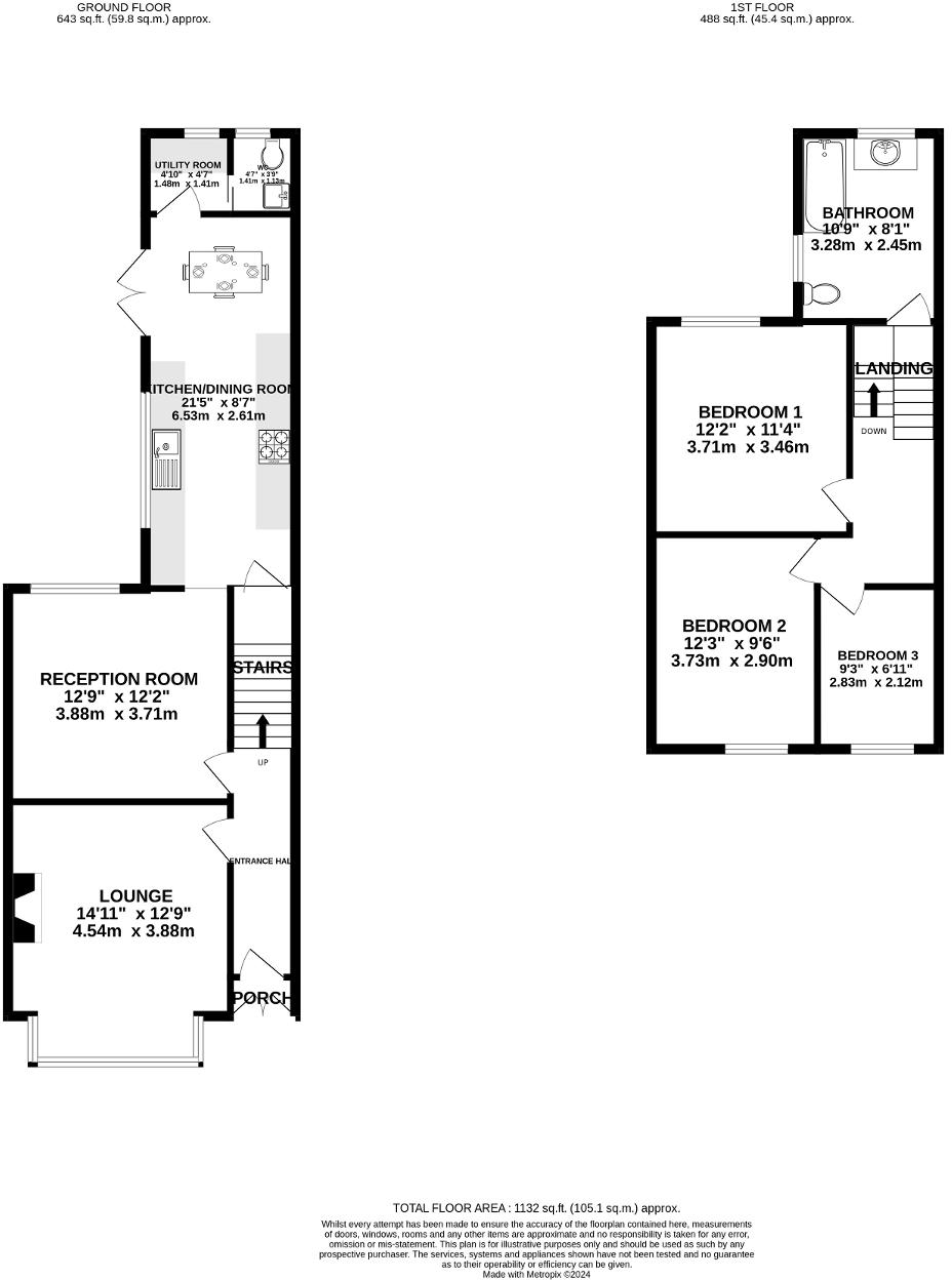
Nestled on the welcoming Sefton Street in Southport, this delightful three-bedroom semi-detached house is a gem for families and investors alike. Showcasing Edwardian charm with modern updates, the property features two inviting reception rooms, including a bright living room with a bay window and a built-in fireplace. The spacious dining area flows beautifully into a well-equipped kitchen, complete with integrated appliances and direct access to a substantial rear garden—an ideal space for outdoor entertaining or children's play.
Upstairs, discover a family-friendly layout with two generous double bedrooms, a versatile single bedroom, and a family bathroom with modern fixtures. The property also boasts additional storage options, including a boarded loft space, ensuring ample room for all your needs. With off-road parking and close proximity to good schools and local amenities, this home offers both comfort and convenience.
While the property is well-maintained, prospective buyers should note that it sits in an area classified as deprived, which could impact future value. Seize this opportunity to own a charming family home in a desirable location—arrange a viewing today!
3 bedroom semi-detached house for sale in Zetland Street, Southport, Merseyside, PR9 9DL, PR9 — £235,000 • 3 bed • 1 bath • 1009 ft²
3 bedroom semi-detached house for sale in Willow Grove, Southport, Merseyside, PR8 6BD, PR8 — £249,950 • 3 bed • 1 bath • 1706 ft²
2 bedroom semi-detached house for sale in Sefton Street, Southport, Merseyside, PR8 5DD, PR8 — £229,999 • 2 bed • 1 bath • 1041 ft²
3 bedroom semi-detached house for sale in Sidney Road, Churchtown, Southport, PR9 — £260,000 • 3 bed • 1 bath • 1137 ft²
3 bedroom semi-detached house for sale in Liverpool Road, Birkdale, Southport, Merseyside, PR8 4PD, PR8 — £255,000 • 3 bed • 1 bath • 973 ft²
4 bedroom semi-detached house for sale in Belmont Street, Birkdale, Southport, Merseyside, PR8 1LY, PR8 — £284,999 • 4 bed • 1 bath • 1320 ft²






























































































































































































