Large four-bedroom family home with outhouse and south-facing garden near excellent schools..
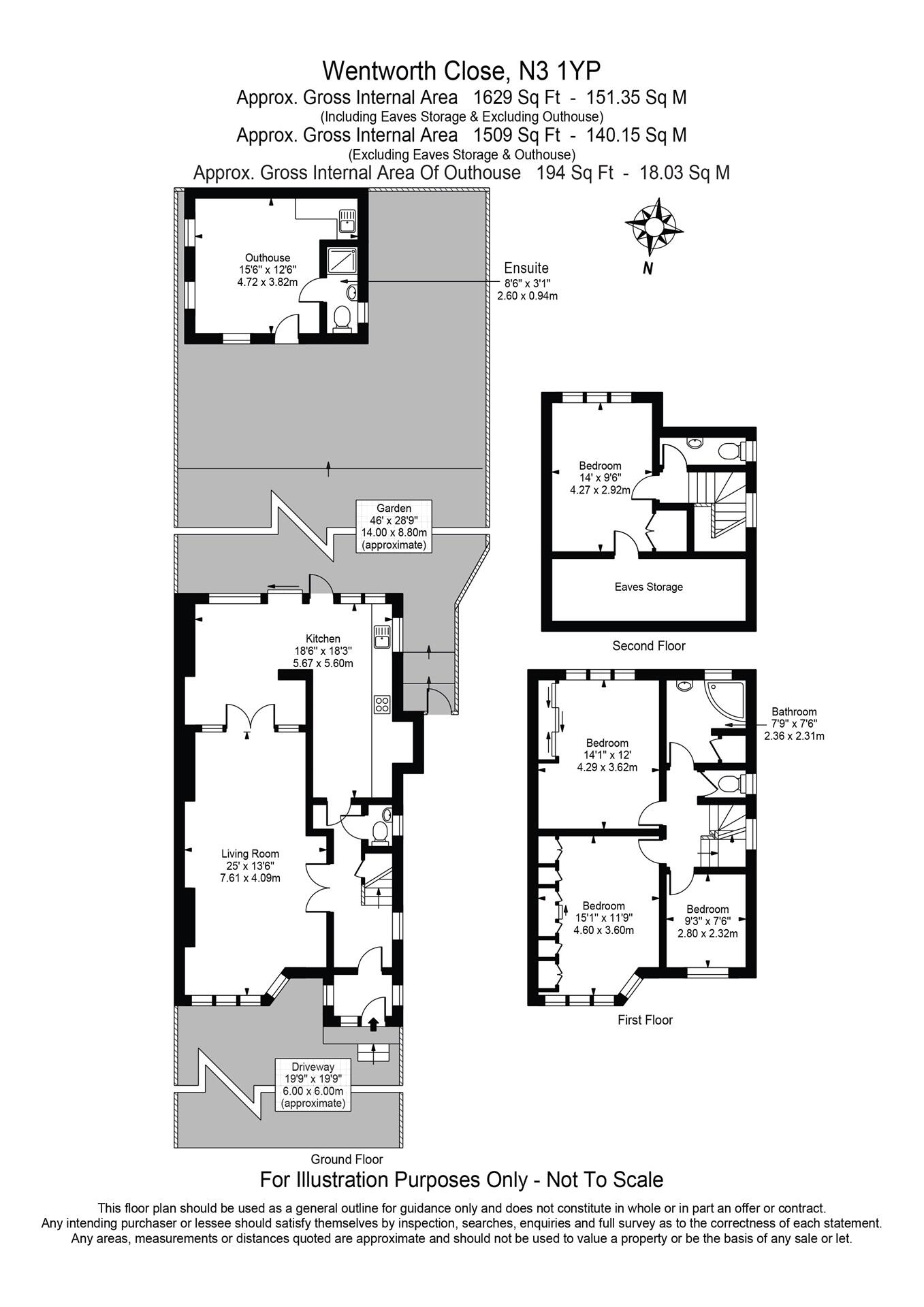
Driveway for off-street parking
Generous south-facing rear garden
Loft conversion creating principal bedroom
Self-contained outhouse with kitchen and bathroom
Approximately 1,509 sq ft across three floors
Solid brick walls; no insulation assumed
Double glazing installed before 2002
Council tax banding is expensive
A spacious four-bedroom semi-detached home on a quiet Finchley Central close, arranged over three floors with a loft conversion creating a bright principal bedroom. The property benefits from a private driveway and a generous south-facing garden, making it practical for family life and garden entertaining.
A notable asset is the self-contained outhouse with its own kitchen and bathroom at the rear of the garden — useful as a guest suite, home office, or potential rental income. The house sits in a very affluent area with excellent local schools, good transport links and low local crime, all attractive for growing families.
Built in the early 20th century from solid brick, the house is well presented but has some older elements to consider: double glazing was installed before 2002 and the original solid walls are assumed to lack insulation, which may affect heating costs. Council tax is high and prospective buyers are advised to commission their own surveys and service checks.
This home offers generous internal space (about 1,509 sq ft), outdoor amenity and flexible accommodation. It will suit buyers seeking roomy family living close to quality schools and transport, and those wanting an outhouse for independent use or lettable income. Accurate measurements and services should be independently verified before purchase.
4 bedroom semi-detached house for sale in Wentworth Close, Finchley, N3 — £925,000 • 4 bed • 2 bath • 1725 ft²
4 bedroom house for sale in Wentworth Close, West Finchley, London, N3 — £950,000 • 4 bed • 2 bath • 1760 ft²
4 bedroom semi-detached house for sale in Addington Drive, London, N12 — £975,000 • 4 bed • 1 bath • 1819 ft²
4 bedroom semi-detached house for sale in Etchingham Park Road, London, N3 — £1,300,000 • 4 bed • 1 bath • 1493 ft²
5 bedroom semi-detached house for sale in Arden Road, Finchley, N3 — £1,650,000 • 5 bed • 3 bath • 2485 ft²
4 bedroom terraced house for sale in Cardrew Avenue, London, N12 — £980,000 • 4 bed • 3 bath • 1529 ft²






























































































