Newly built one-bedroom home in Stock centre with multiple parking spaces and large plot.
- Newly built in 2024 with modern fixtures and build-standard performance
- Compact footprint c.360 sq ft; limited living space and room flexibility
- Detached, single-level layout ideal for mobility and downsizing
- Large private plot with patio and off-street parking for multiple vehicles
- Air-source heat pump with radiators and underfloor heating (electric)
- Freehold and chain-free for quick completion
- Area broadband speeds average; electricity tariff unspecified
- No flood risk; excellent mobile signal and modest council tax
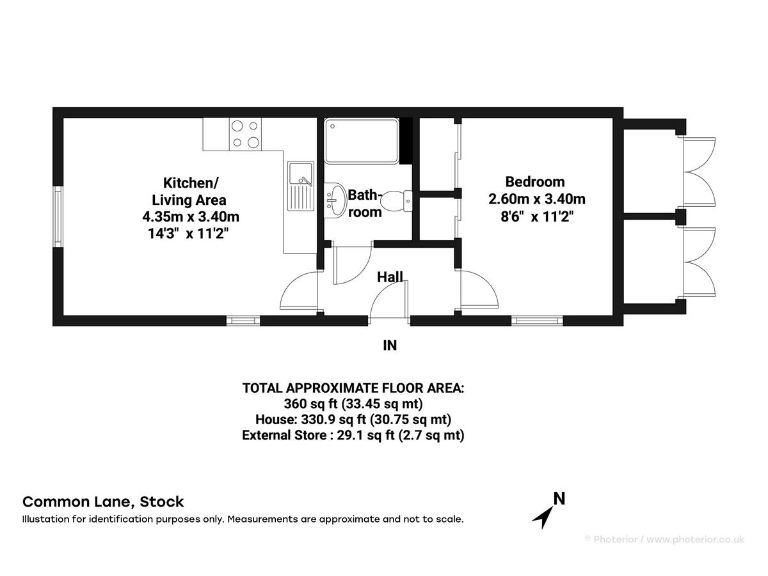
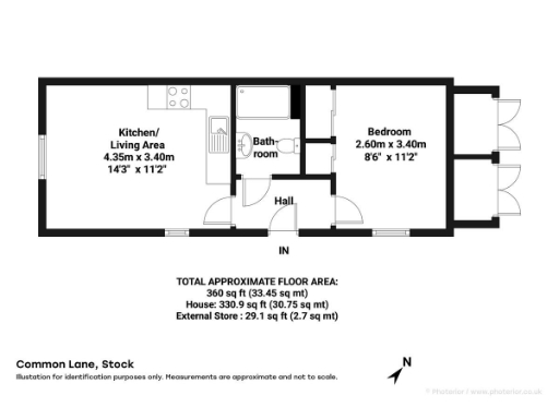
This newly built one-bedroom detached bungalow sits in the centre of Stock village and is offered freehold and chain-free. At about 360 sq ft with a large private plot and off-street parking for multiple vehicles, it’s aimed at down-sizers seeking easy single-level living or investors wanting a low-maintenance rental in a sought-after village location.
The interior is compact and efficiently planned: an open-plan kitchen/living area, a double bedroom with built-in wardrobe and modern bathroom. The property was constructed in 2024 and benefits from energy-efficient features including an air-source heat pump, underfloor heating/radiators and improved wall thermal performance. Excellent mobile signal and a modest council tax band add practical appeal.
Notable limitations are the overall small size (c.360 sq ft) and limited room count, which may restrict occupier flexibility and furnishings. Broadband speeds in the area are average, and the electricity tariff is unspecified which could affect running costs. Buyers should also note that while the build is new, standard new-build checks and warranties should be reviewed.
For down-sizers, this is a ready-to-move option that minimises upkeep while keeping village amenities on the doorstep. For investors, the property’s location, low-maintenance specification and parking provision support straightforward lettings, though rental income will reflect the one-bedroom, compact footprint.
3 bedroom bungalow for sale in Birch Lane, Stock, CM4 — £1,000,000 • 3 bed • 2 bath • 1208 ft²
1 bedroom detached bungalow for sale in Smallgains Lane, Stock, CM4 — £400,000 • 1 bed • 1 bath • 478 ft²
2 bedroom detached house for sale in Hawkswood Road, Downham, Billericay, Essex, CM11 — £299,995 • 2 bed • 2 bath • 924 ft²
3 bedroom detached bungalow for sale in Brittons Lane, Stock, Ingatestone, CM4 — £1,250,000 • 3 bed • 2 bath • 1000 ft²
2 bedroom detached house for sale in Hawkswood Road, Downham, Billericay, Essex, CM11 — £285,995 • 2 bed • 2 bath • 924 ft²
4 bedroom detached house for sale in Mill Road, Stock, CM4 — £1,125,000 • 4 bed • 3 bath • 1973 ft²


































































































