Compact city home with easy commuting links and a private garden.
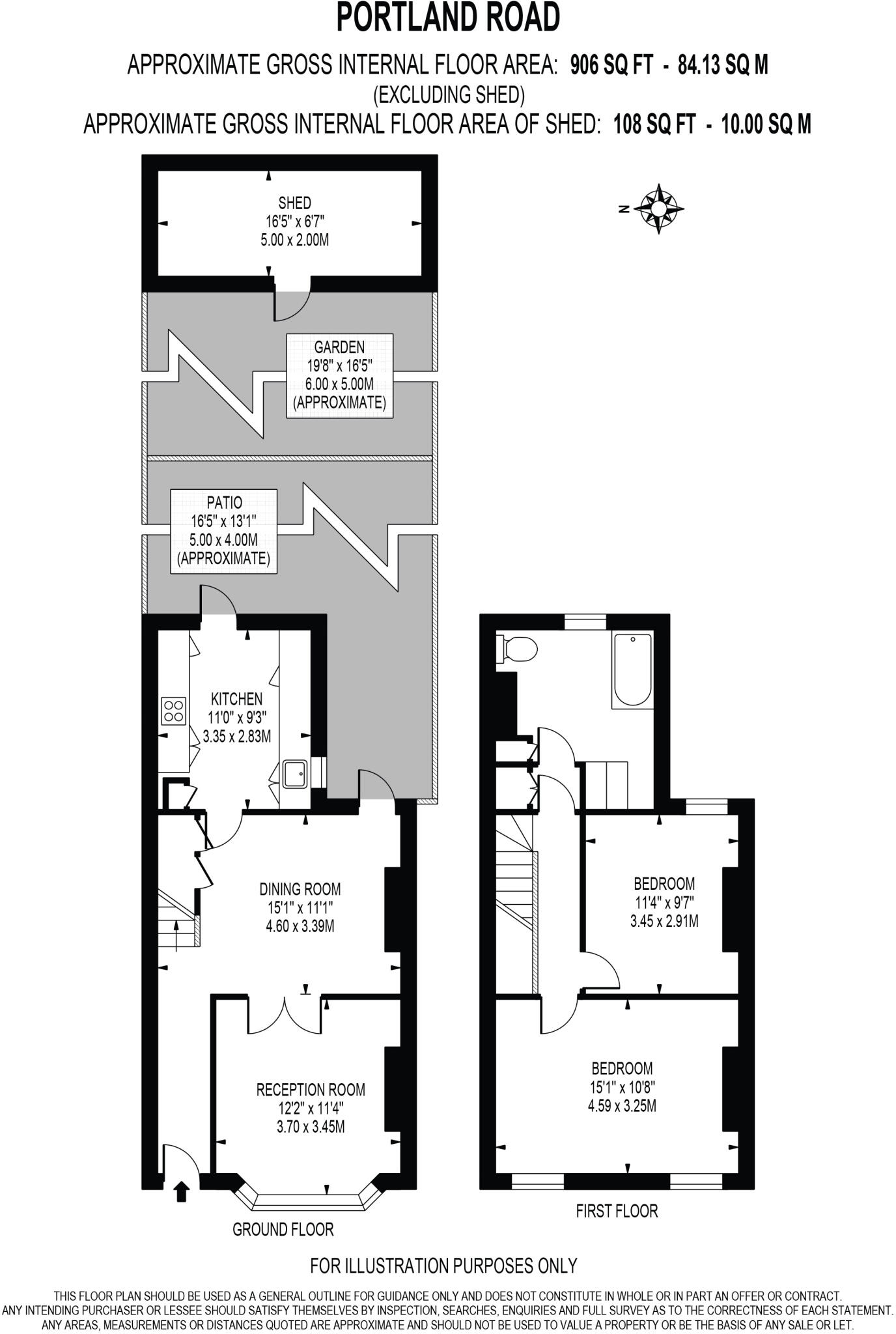
Chain free two-bedroom Victorian house, 906 sq ft
This chain-free Victorian house offers 906 sq ft across two double bedrooms and flexible living space ideal for first-time buyers. The property combines period character—bay window and brickwork—with modern touches such as a contemporary bathroom and laminate flooring.
Transport is a clear strength: Norwood Junction and nearby East Croydon provide frequent services into London Victoria, London Bridge and Overground links to Shoreditch, making commutes straightforward. Local shops, cafés and The Country Park are all within easy walking distance, supporting a convenient urban lifestyle.
Buyers should note several practical issues: the tenure is not stated, the property sits in a high-crime, very deprived area which may affect insurance and resale, and the EPC is yet to be confirmed. The plot is small and the house currently has scaffolding to the exterior, suggesting recent or ongoing work; check the scope and costs of any remaining repairs before proceeding.
Overall this is a well-sized, characterful home with strong transport links and scope to add value through targeted updating. It will suit buyers seeking an affordable entry into a well-connected area, but straightforward due diligence on tenure, security and outstanding repairs is essential.
2 bedroom terraced house for sale in Clifton Road, London, SE25 — £365,000 • 2 bed • 1 bath • 786 ft²
3 bedroom terraced house for sale in Cobden Road, London, SE25 — £500,000 • 3 bed • 1 bath • 1062 ft²
2 bedroom terraced house for sale in Elmers Road, South Norwood, SE25 — £400,000 • 2 bed • 1 bath • 730 ft²
2 bedroom semi-detached house for sale in Whitehorse Lane, London, SE25 — £365,000 • 2 bed • 1 bath • 819 ft²
2 bedroom terraced house for sale in Cresswell Road, London, SE25 — £440,000 • 2 bed • 2 bath • 667 ft²
3 bedroom end of terrace house for sale in Clifton Road, London, SE25 — £425,000 • 3 bed • 2 bath • 1206 ft²


















































