**Standout Features:**
- Spacious 4-bedroom detached home across three stories
- West-facing, landscaped garden ideal for families and entertaining
- Modern kitchen/dining area with integrated appliances
- Integral garage with workshop area and additional driveway parking
- Located within the Kennet School catchment area
- Fast broadband and excellent mobile signal
**Potential Downsides:**
- High crime rate in the local area
- Council tax classified as expensive
- Relatively small plot size
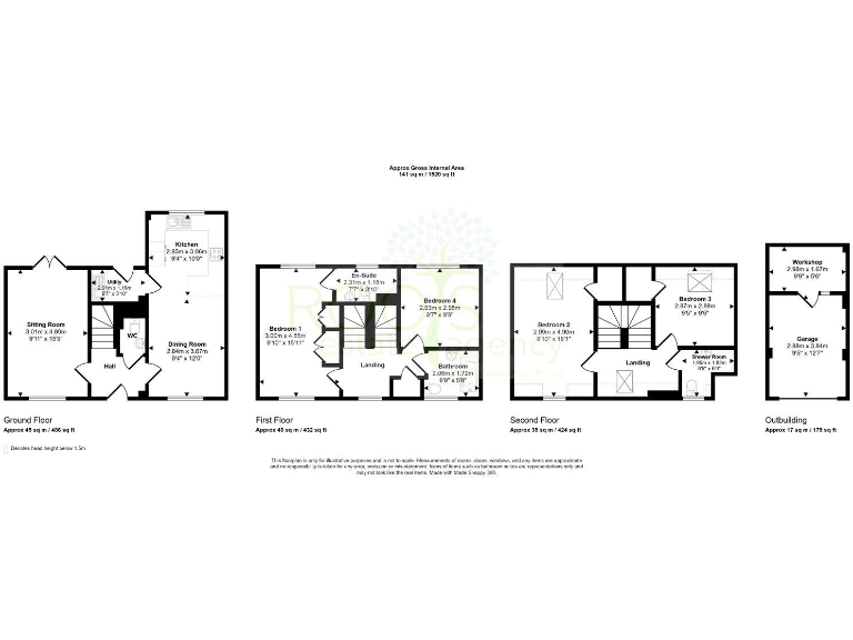
This impressive four-bedroom detached home offers an abundance of space and modern living in the sought-after neighborhood of Kennet, ideal for families or investors alike. Set over three floors, the residence features a bright, dual-aspect sitting room that opens onto a beautifully landscaped west-facing garden—a perfect backdrop for outdoor gatherings. The main floor consists of a contemporary kitchen and a flexible layout that enhances family living. Upstairs, the property boasts a master bedroom with an en-suite and fitted wardrobes, as well as two additional double bedrooms and a top-floor guest room—making it perfect for growing families or accommodating visitors.
Situated within a stone's throw of top-rated schools, local shops, and transport links, this home truly embraces convenience without compromising on space or comfort. Notably, it comes equipped with a sizable garage featuring a workshop area and ample driveway parking. While the area does face some challenges regarding crime rates and council tax expenses, the property's generous space and potential make it an exclusive opportunity that may not last long. Envision yourself and your family growing in this well-appointed home—schedule a viewing today to explore all it has to offer!
4 bedroom detached house for sale in Hussars Drive, Thatcham, RG19 — £485,000 • 4 bed • 1 bath • 1366 ft²
4 bedroom detached house for sale in Greenacre Place, Newbury, Berkshire, RG14 7GY, RG14 — £625,000 • 4 bed • 2 bath • 1064 ft²
3 bedroom end of terrace house for sale in Hartmead Road, Thatcham, Berkshire, RG19 — £375,000 • 3 bed • 2 bath • 970 ft²
4 bedroom detached house for sale in Sargood Close, Thatcham, RG19 — £535,000 • 4 bed • 2 bath • 1335 ft²
4 bedroom detached house for sale in Hillside Road, Hungerford, Berkshire, RG17 — £440,000 • 4 bed • 1 bath • 1198 ft²
4 bedroom detached house for sale in Charlock Close, Thatcham, Berkshire, RG18 — £550,000 • 4 bed • 2 bath • 1489 ft²


































































