No-chain buy with garage and easy access to Temple Cowley and Oxford centre.
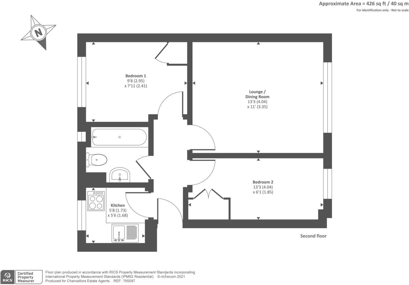
Two bedrooms in a compact 431 sq ft layout
Private garage included — useful parking or storage
No onward chain; suitable for quick purchase
Approximately 101 years remaining on the lease
About 290 yards from Temple Cowley, 2.2 miles to city centre
Area classified as students and commuters; good transport links
Small overall size; better for singles, couples, or investors
Local crime rate above average — verify security and safety
Compact, practical and well placed for Oxford, this two-bedroom flat offers an appealing entry point to the city property market. The apartment includes a private garage — a rare and useful asset for parking or storage in this area — and is being sold with no onward chain, allowing a quick purchase for a first-time buyer or investor.
The location suits students and commuters: around 290 yards from Temple Cowley and roughly 2.2 miles from Oxford city centre, with strong transport links, local shops and several nearby primary and secondary schools rated Good. The building is a mid‑century brick block with double glazing installed post-2002 and gas central heating via boiler and radiators, so basic essentials are in place.
Practical considerations are straightforward: the lease shows about 101 years remaining and Council Tax sits at Band B. The flat is small (approximately 431 sq ft) and will suit buyers seeking a compact urban home or a rental investment rather than a larger family residence. Crime in the area is above average — a point to weigh when considering the location and rental prospects.
There is an inconsistency in the supplied details regarding whether the flat is top-floor or ground-floor; prospective buyers should confirm the exact floor level during viewing or before offer. Overall, this is a no-chain, modestly sized property with clear convenience benefits and sensible scope for immediate occupation or letting.
2 bedroom flat for sale in Beauchamp Place, Oxford, OX4 — £250,000 • 2 bed • 1 bath • 597 ft²
2 bedroom flat for sale in East Oxford, Oxford, OX4 — £300,000 • 2 bed • 2 bath • 795 ft²
2 bedroom apartment for sale in St Thomas Street, Central Oxford, OX1 — £475,000 • 2 bed • 1 bath • 580 ft²
1 bedroom flat for sale in Headington, Oxford, OX3 — £230,000 • 1 bed • 1 bath • 498 ft²
2 bedroom flat for sale in Girdlestone Close, Headington, OX3 — £290,000 • 2 bed • 1 bath • 685 ft²
2 bedroom ground floor flat for sale in Oxford Road, Cowley, Oxford, OX4 — £275,000 • 2 bed • 1 bath • 549 ft²










































