**Standout Features:**
- Prime waterfront location in South Pool with creek frontage
- Large 0.4-acre plot with potential for renovation or redevelopment (STP)
- Includes two semi-detached cottages with room for modernisation
- Freehold sale; chain-free
- No history of flooding despite waterside location
**Summary:**
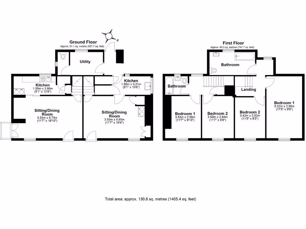
Discover a rare and remarkable opportunity to revitalize two historic semi-detached cottages nestled in South Pool, a picturesque hamlet within an Area of Outstanding Natural Beauty. Spanning over a generous 0.4 acres, this property features a large garden that enjoys stunning, uninterrupted views of the Salcombe estuary. Both cottages, currently in need of extensive renovation, offer immense potential to create a unique family home or to be restored as separate dwellings (subject to planning consent).
Located near the celebrated community pub, The Millbrook Inn, this charming property also benefits from scenic walking paths and easy access to local attractions such as Dartmouth and Salcombe. With a blend of traditional character and future flexibility, these cottages present an exceptional canvas for anyone looking to create their dream retreat. While they require considerable work, the investment potential is significant, especially in this highly regarded location where outdoor enthusiast amenities abound. Seize this rare chance for waterfront living today, as opportunities like this are few and far between!
3 bedroom semi-detached house for sale in Creek End, South Pool, Kingsbridge, Devon, TQ7 — £400,000 • 3 bed • 1 bath • 1071 ft²
4 bedroom detached house for sale in South Pool, Kingsbridge, TQ7 — £1,000,000 • 4 bed • 3 bath • 1732 ft²
5 bedroom detached house for sale in Curlew Drive, West Charleton, Kingsbridge, Devon, TQ7 — £2,500,000 • 5 bed • 5 bath • 3348 ft²
3 bedroom terraced house for sale in South Allington, Kingsbridge, TQ7 — £460,000 • 3 bed • 2 bath • 1312 ft²
6 bedroom detached house for sale in Curlew Drive, West Charleton, Kingsbridge, Devon, TQ7 — £2,500,000 • 6 bed • 5 bath • 4274 ft²
5 bedroom detached house for sale in Noss Mayo, Plymouth, PL8 — £1,800,000 • 5 bed • 3 bath • 2041 ft²










































































































































































