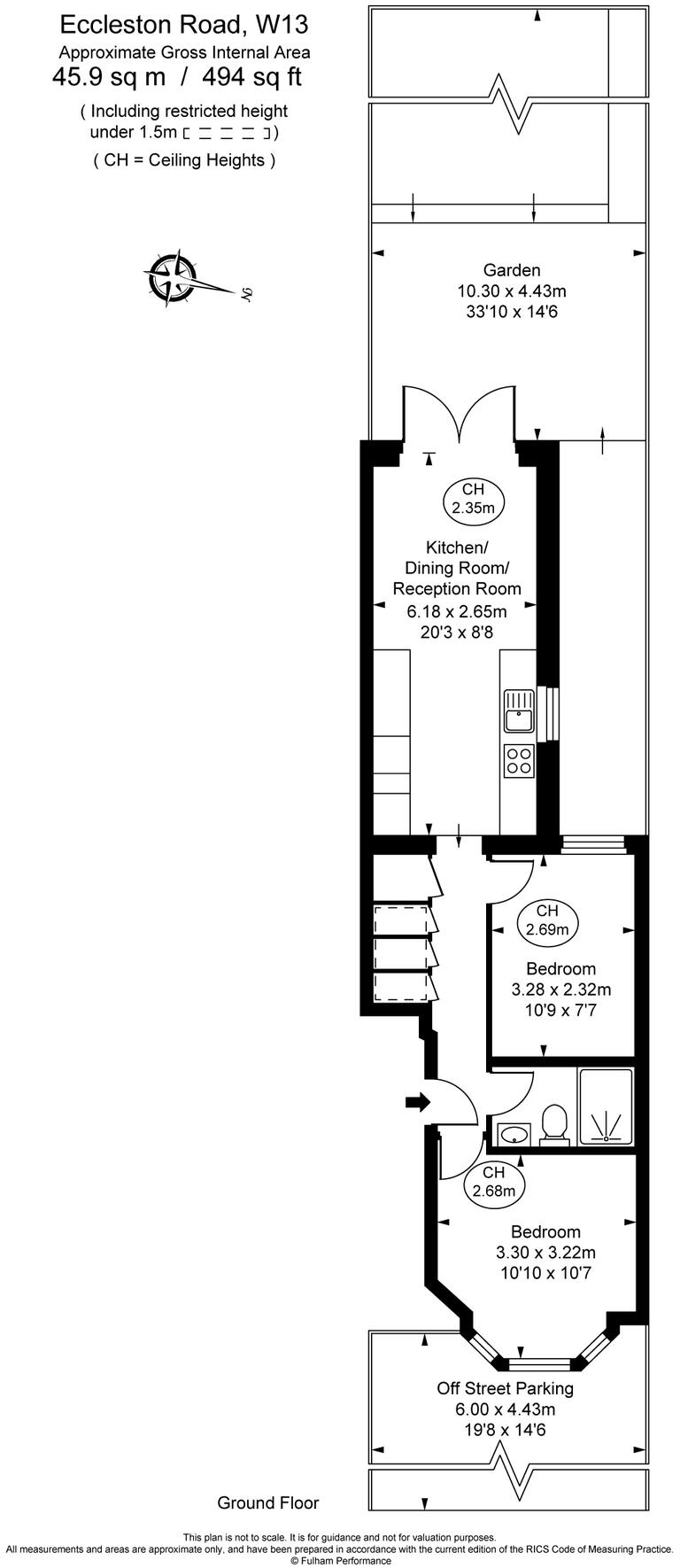
**Standout Features:**
- Share of freehold for added security
- Stunning west-facing private garden, perfect for relaxation and entertaining
- High-spec finishes throughout, including a modern kitchen and dining area
- Off-street parking, a rare find in urban settings
- Excellent transport links, particularly with the new Elizabeth Line
- Located on a lovely, tree-lined street close to parks
**Potential Downsides:**
- Average-sized living space at 494 square feet
- Solid brick walls with no insulation, which could impact energy efficiency
---
Discover urban living at its finest in this beautifully presented ground-floor apartment on Eccleston Road, Ealing. This stunning one-bedroom home is ideal for first-time buyers or young couples seeking comfort and convenience. With a delightful west-facing private garden and modern high-spec finishes, the property fosters a serene atmosphere for both relaxation and entertaining. Enjoy the benefit of off-street parking in a bustling area that boasts fantastic transport links, with the new Elizabeth Line providing swift access to central London.
Measuring 494 square feet, this stylish residence maximizes space and light. The well-appointed kitchen/dining area seamlessly connects to the outdoors, while the cozy living room and spacious bedroom complete the perfect layout for contemporary living. Although the property lacks insulation, its charm and location make it a worthy investment for those looking to establish roots in a vibrant community. Don't miss out on this opportunity to own a piece of Ealing's allure—schedule a viewing today!
1 bedroom flat for sale in Church Gardens, London, W5 — £450,000 • 1 bed • 1 bath • 413 ft²
1 bedroom apartment for sale in Adelaide Road, London, W13 — £399,000 • 1 bed • 1 bath • 501 ft²
2 bedroom apartment for sale in Connaught Road, London, W13 — £625,000 • 2 bed • 1 bath • 693 ft²
2 bedroom ground floor flat for sale in Mattock Lane, Ealing, London, W5 — £675,000 • 2 bed • 1 bath • 817 ft²
1 bedroom flat for sale in Hastings Road, Ealing, London, W13 — £350,000 • 1 bed • 1 bath • 454 ft²
2 bedroom apartment for sale in Regina Road, London, W13 — £500,000 • 2 bed • 1 bath • 633 ft²














































































