**Standout Features:**
- Located in a tranquil cul-de-sac
- Short walk to Darlington Hospital and the Town Centre
- Traditional semi-detached architecture from the 1930s
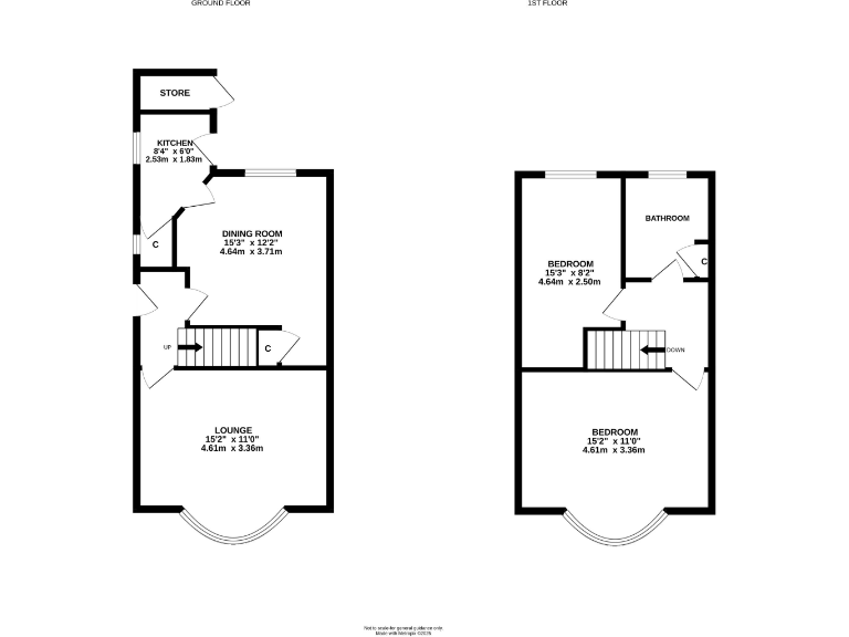
- Spacious two-bedroom layout, including a master bedroom with a bay window
- Two reception rooms featuring a lounge with a bay window and fireplace
- Paved front and rear gardens
- Freehold tenure and low council tax band (B)
**Potential Concerns:**
- Requires modernization and updating throughout
- On-street parking only, with a resident's permit
Discover the charm and potential of this 1930s semi-detached home, perfectly situated in a peaceful cul-de-sac just a stone's throw from Darlington Hospital and the bustling Town Centre. Ideal for first-time buyers or investors, this property boasts two spacious bedrooms, with the master featuring an attractive bay window, perfect for enjoying morning light. The generous lounge, complete with a traditional fireplace and bay window, provides a cozy retreat, complemented by a separate dining area and kitchen.
This home awaits your personal touch, offering a blank canvas for those looking to create their dream space through renovation. While some modernization is needed, the solid brick structure presents a great opportunity to enhance its character and comfort. The paved gardens offer low-maintenance outdoor space, ideal for enjoying the fresh air. With a freehold title and low-cost council tax, this property holds significant appeal for those seeking both long-term value and a welcoming community atmosphere. Don’t miss your chance to transform this classic family home into something truly special!
2 bedroom semi-detached house for sale in Witbank Road, Darlington, DL3 — £150,000 • 2 bed • 1 bath • 788 ft²
2 bedroom semi-detached house for sale in Kensington Gardens, Darlington, DL1 — £129,950 • 2 bed • 1 bath • 915 ft²
3 bedroom semi-detached house for sale in Witbank Road, Darlington, DL3 — £150,000 • 3 bed • 1 bath • 738 ft²
3 bedroom semi-detached house for sale in Bates Avenue, Darlington, DL3 — £150,000 • 3 bed • 1 bath • 890 ft²
1 bedroom terraced house for sale in Symington Walk, Darlington, DL1 — £55,000 • 1 bed • 1 bath • 402 ft²
2 bedroom semi-detached house for sale in Sandriggs, Darlington, DL3 — £140,000 • 2 bed • 1 bath • 699 ft²














































