Steps from the train station with private garden and two parking spaces.
Cul-de-sac location, quiet and family focused
Moments from the mainline train station for easy commuting
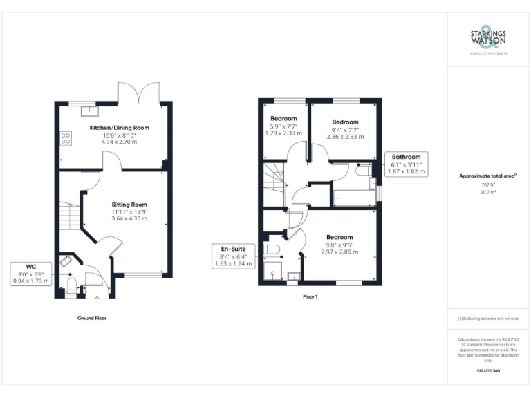
Separate kitchen/dining room with garden doors to rear
Three bedrooms with en-suite shower to main bedroom
Ground-floor WC and understairs storage for convenience
Private enclosed rear garden, low-maintenance outdoor space
Two allocated off-street parking spaces for two vehicles
Compact overall size (~707 sq ft); limited living space
This modern three-bedroom end-of-terrace sits at the quiet end of a cul-de-sac, designed for practical family living and easy commuting. The house is only a few years old, presented ready to move into, and benefits from gas central heating, integrated kitchen appliances and an EPC rating of B.
The ground floor layout provides a welcoming sitting room to the front and a separate kitchen/dining room to the rear with double doors onto the private enclosed garden — a useful space for children and low-maintenance outside time. There is also a convenient ground-floor WC and understairs storage, keeping daily routines organised.
Upstairs offers three ample bedrooms, with the main bedroom served by an en-suite shower room and the family bathroom off the landing. Practical features include a wall-mounted gas boiler in the kitchen, loft access and an airing cupboard for towels and linen.
Parking is straightforward with two allocated off-street spaces directly to the front. The property is freehold, has no flood risk, and sits within easy reach of the mainline train station and local schools, making it well suited to families who commute. Note there is an annual communal service charge of around £167.30 for maintenance of the development and the house is a compact home at about 707 sq ft, which may suit those seeking manageable space rather than large rooms.
3 bedroom semi-detached house for sale in The Old Coaching Place, Diss, IP22 — £240,000 • 3 bed • 2 bath • 684 ft²
3 bedroom town house for sale in Harrier Way, Diss, IP22 — £240,000 • 3 bed • 2 bath • 901 ft²
3 bedroom semi-detached house for sale in The Old Coaching Place, Diss, IP22 — £250,000 • 3 bed • 2 bath • 870 ft²
3 bedroom town house for sale in Rose Terrace, Diss, IP22 — £230,000 • 3 bed • 2 bath • 966 ft²
2 bedroom semi-detached house for sale in Aldrich Way, Roydon, Diss, IP22 — £220,000 • 2 bed • 1 bath • 426 ft²
3 bedroom detached house for sale in Pheasant Drive, Diss, IP22 — £365,000 • 3 bed • 2 bath • 1057 ft²






































































