Bright four-bedroom home with garage and balcony overlooking the water.
Bright open-plan living with harbour-facing Juliette balcony
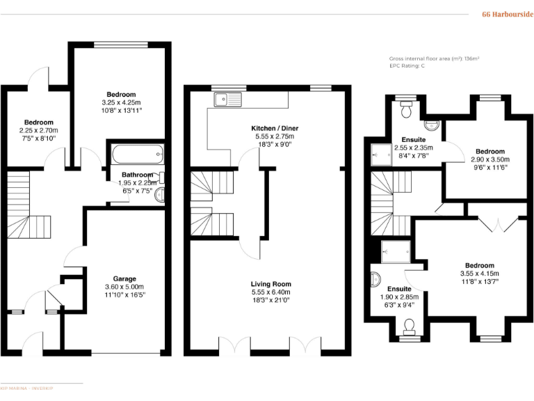
Set on three levels with bright harbour-facing glazing, this four-bedroom mid-terraced home suits families or buyers seeking low-maintenance marina living. The first-floor open-plan kitchen, dining and living zone benefits from French doors to a Juliette balcony and a feature fireplace that frames the water outlook. Room sizes are medium and the property totals about 1,198 sq ft, with a neutral, walk-in presentation throughout.
The ground floor provides two double bedrooms and a family bathroom; one room currently used as a home office opens directly to the fully enclosed rear garden, offering practical family or remote-work flexibility. The top floor houses two further bedrooms, each with its own en-suite, giving privacy for parents or guests.
Practical comforts include an integral garage plus driveway parking, double glazing and gas central heating. Mobile signal is excellent for calls and 4G data; broadband speeds are reported as slow, which could affect heavy home-working or streaming without upgrades.
Buyers should note the rear and front gardens are modest and low-maintenance rather than substantial outdoor spaces. Local area statistics indicate higher-than-average deprivation in parts of the wider neighbourhood, which may influence local services and long-term resale dynamics. There is no identified flood risk and the property is freehold.
3 bedroom semi-detached house for sale in 52 Harbourside, Kip Marina, Inverkip, PA16 0BF, PA16 — £289,995 • 3 bed • 2 bath • 1119 ft²
4 bedroom detached house for sale in 1 Hebrides Grove, Inverkip, Greenock, PA16 0BQ, PA16 — £525,000 • 4 bed • 3 bath • 2314 ft²
1 bedroom flat for sale in Flat 16/20 Harbourside, Inverkip, PA16 0BF, PA16 — £159,995 • 1 bed • 1 bath • 614 ft²
4 bedroom detached house for sale in Harbourside, Inverkip, Inverkip, Inverclyde, PA16 — £580,000 • 4 bed • 2 bath • 1426 ft²
3 bedroom flat for sale in Harbourside, Inverkip, PA16 — £300,000 • 3 bed • 3 bath
2 bedroom flat for sale in Harbour Square, 1 Harbour Square, PA16 — £200,000 • 2 bed • 2 bath






















































































































