Historic, renovated country house with detached 4‑bed barn, extensive gardens and income potential.
Grade II listed country house c.1585 with striking period features and beams
Green Oak kitchen extension by Woodworks and bespoke solid‑wood cabinetry
Recently converted detached four‑bedroom barn — ideal annexe or rental income
Very large landscaped gardens with Green Oak gazebo and terrace entertaining space
EV charger, barn air conditioning; main house on oil‑fired heating (Grant boiler)
Private drainage (Titan sewage plant) serving both properties — no mains sewage
Listed status may restrict alterations and complicate future works or repairs
Very slow broadband; council tax band G (expensive)
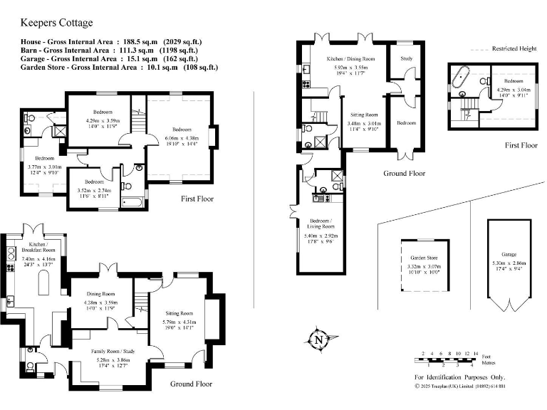
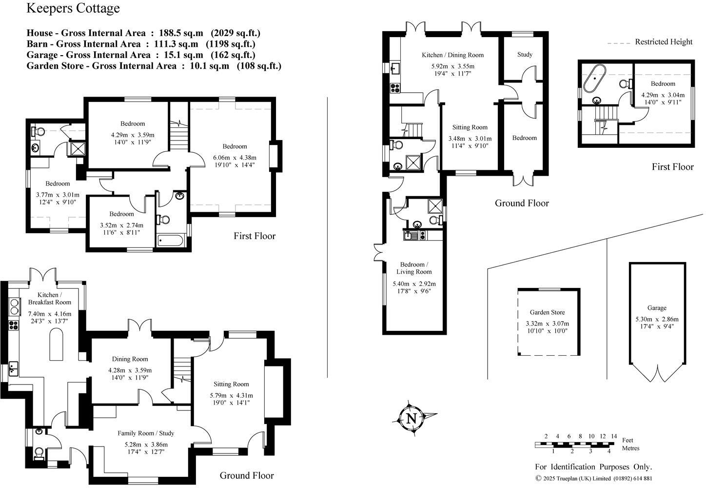
Keepers Cottage is a rare Grade II listed country home, parts dating to c.1585, renovated to combine period character with modern living. The house sits in a very large, beautifully landscaped plot within the High Weald AONB and enjoys uninterrupted rural views, terraces and a bespoke Green Oak kitchen by Woodworks. Vaulted ceilings, exposed beams and an inglenook fireplace add authentic charm while contemporary fixtures and a sympathetic extension provide comfortable, flexible family space.
A recently converted detached four‑bedroom barn offers versatile use as an annexe, holiday let or multi‑generational accommodation. The barn benefits from air conditioning and an EV charging point, while the main house has an oil‑fired Grant boiler and thoughtfully designed reception rooms that flow onto terraces and garden. The plot includes a timber garage, block‑paved and gravel parking and a Green Oak gazebo that makes the gardens an entertaining focal point.
There are practical points to note: the property’s Grade II listed status will require special permissions and may complicate alterations or future works. Drainage is private, served by a Titan sewage treatment plant for both buildings; broadband speeds are very slow and council tax is in the higher band. A small area of front garden sits on a separate title and there is a leased area with a peppercorn rent; lane upkeep is informal and historically about £400 per annum.
This offers a compelling package for buyers seeking a substantial family home or a rural lifestyle investment, pairing period character and high-quality recent renovation with income or annexe potential. Viewings are recommended to appreciate both the scale of the accommodation and the quality of the gardens and extension.
 4 bedroom detached house for sale in Somerden Green, Chiddingstone, TN8 — £1,450,000 • 4 bed • 2 bath • 2029 ft²
 4 bedroom detached house for sale in Somerden Green, Chiddingstone, TN8 — £1,450,000 • 4 bed • 2 bath • 2029 ft² 5 bedroom detached house for sale in Penshurst, Kent, TN11 — £3,500,000 • 5 bed • 3 bath • 7076 ft²
 5 bedroom detached house for sale in Penshurst, Kent, TN11 — £3,500,000 • 5 bed • 3 bath • 7076 ft² 4 bedroom detached house for sale in Upper Barnhill, Hunton, ME15 — £725,000 • 4 bed • 2 bath • 1527 ft²
 4 bedroom detached house for sale in Upper Barnhill, Hunton, ME15 — £725,000 • 4 bed • 2 bath • 1527 ft² 4 bedroom detached house for sale in Somerden Green, Chiddingstone, TN8 — £700,000 • 4 bed • 3 bath • 1198 ft²
 4 bedroom detached house for sale in Somerden Green, Chiddingstone, TN8 — £700,000 • 4 bed • 3 bath • 1198 ft² 3 bedroom semi-detached house for sale in Chiddingstone Causeway, Tonbridge, TN11 — £600,000 • 3 bed • 1 bath • 1233 ft²
 3 bedroom semi-detached house for sale in Chiddingstone Causeway, Tonbridge, TN11 — £600,000 • 3 bed • 1 bath • 1233 ft² 3 bedroom semi-detached house for sale in Truggers Lane, Chiddingstone Hoath, TN8 — £750,000 • 3 bed • 2 bath • 1651 ft²
 3 bedroom semi-detached house for sale in Truggers Lane, Chiddingstone Hoath, TN8 — £750,000 • 3 bed • 2 bath • 1651 ft²






































































































































