Well-sized garden, garage and flexible living for family life.
Three double bedrooms including main with en-suite
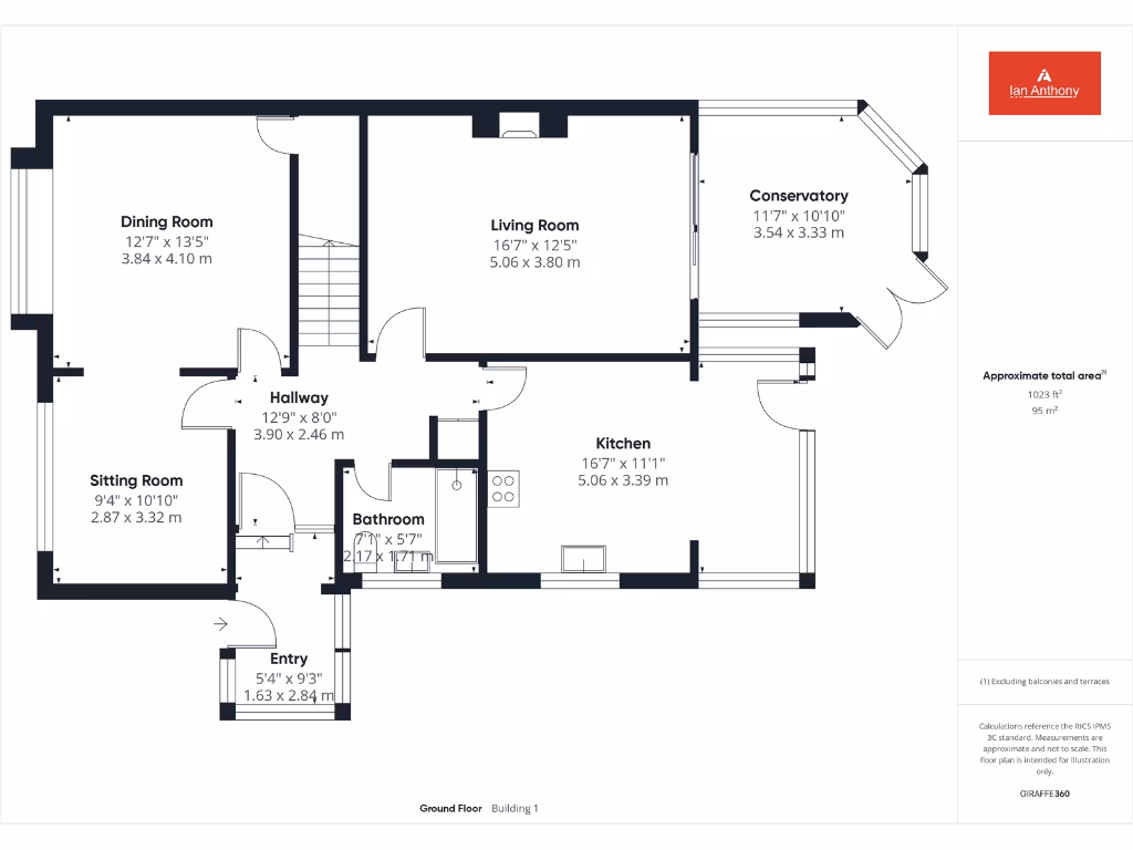
This well-proportioned semi-detached dormer bungalow offers flexible living across ground and first-floor accommodation, ideal for growing families or those looking to downsize without sacrificing space. The principal lounge centres on a stone fireplace with wood burner and opens via sliding doors into a bright conservatory overlooking a large, private rear garden — a clear highlight for outdoor entertaining and family time. The kitchen is fitted with integrated appliances and ample workspace, while a separate dining room and second sitting room provide useful options for a home office, playroom or formal dining.
Upstairs provides three generous double bedrooms, the principal with built-in wardrobes and a private en-suite shower room. Practical features include double glazing throughout, gas central heating to radiators, a detached garage and wide driveway offering plentiful parking. The house sits on a substantial plot in a quiet residential street, close to good primary schools and local amenities. Broadband is reported as ultrafast and there is low local crime, making the location especially convenient and secure.
Buyers should note the property is a mid-20th-century build and, while presented for immediate occupation, it offers clear scope for modest updating or extension subject to planning. Services and appliances have not been tested, and any purchaser should obtain independent verification. Council Tax Band D and freehold tenure apply.
3 bedroom semi-detached bungalow for sale in Southport Road, Ormskirk, L39 1LZ, L39 — £220,000 • 3 bed • 1 bath • 842 ft²
3 bedroom semi-detached house for sale in Redwood Drive, Ormskirk L39 3NS, L39 — £265,000 • 3 bed • 2 bath • 1046 ft²
2 bedroom semi-detached bungalow for sale in Hurlston Drive, Ormskirk, L39 1LD, L39 — £330,000 • 2 bed • 2 bath • 1076 ft²
3 bedroom semi-detached bungalow for sale in Brighouse Close, Ormskirk, Lancashire, L39 — £265,000 • 3 bed • 1 bath • 969 ft²
4 bedroom detached bungalow for sale in Hillcrest Drive, Scarisbrick, Ormskirk, L40 — £325,000 • 4 bed • 2 bath • 1131 ft²
4 bedroom semi-detached bungalow for sale in Redwood Drive, Ormskirk, L39 — £330,000 • 4 bed • 1 bath • 1268 ft²














































































































