Bright open-plan apartment with parking, concierge and Westminster views ideal for investors or professionals.
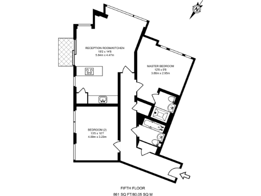
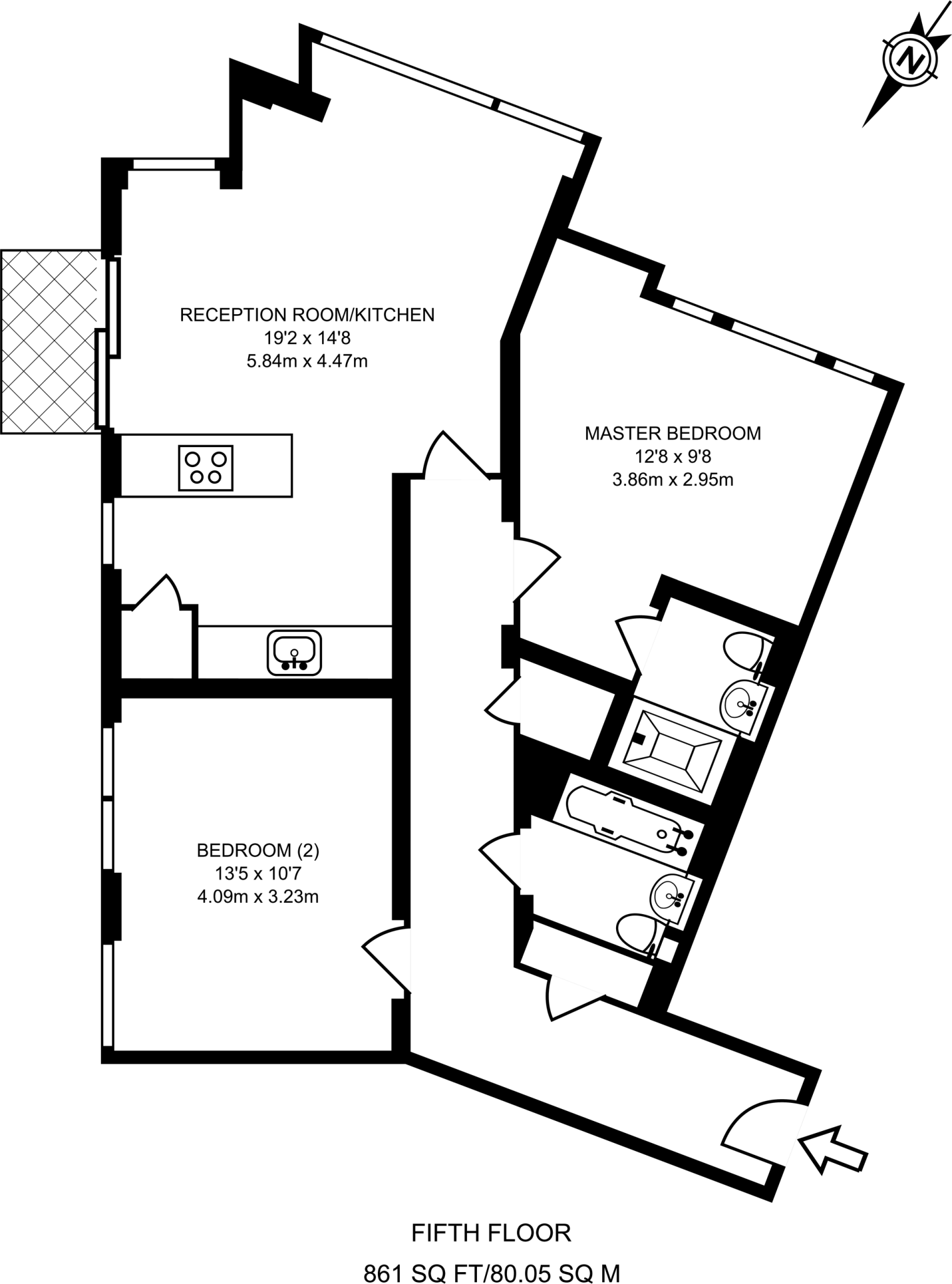
Two double bedrooms, principal with en‑suite bathroom
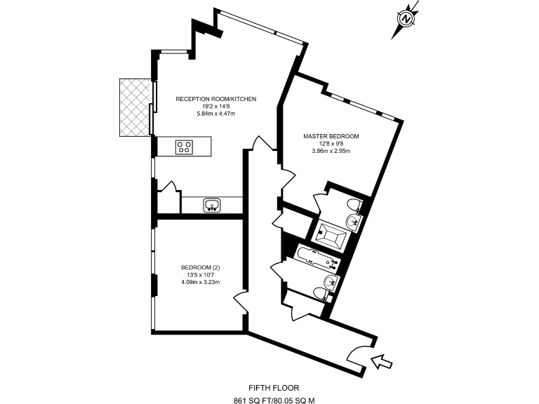
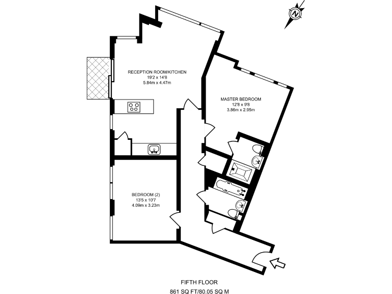
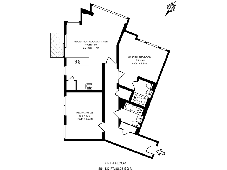
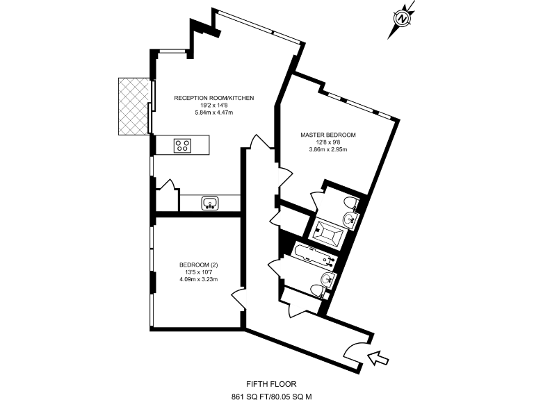
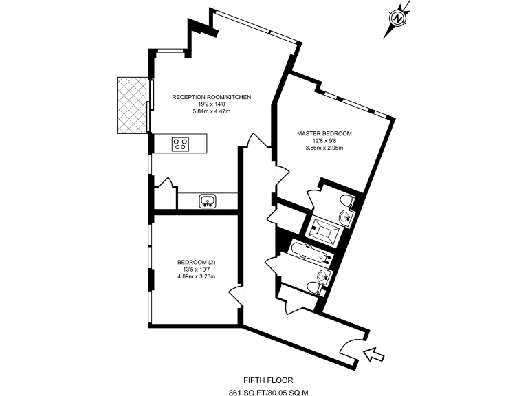
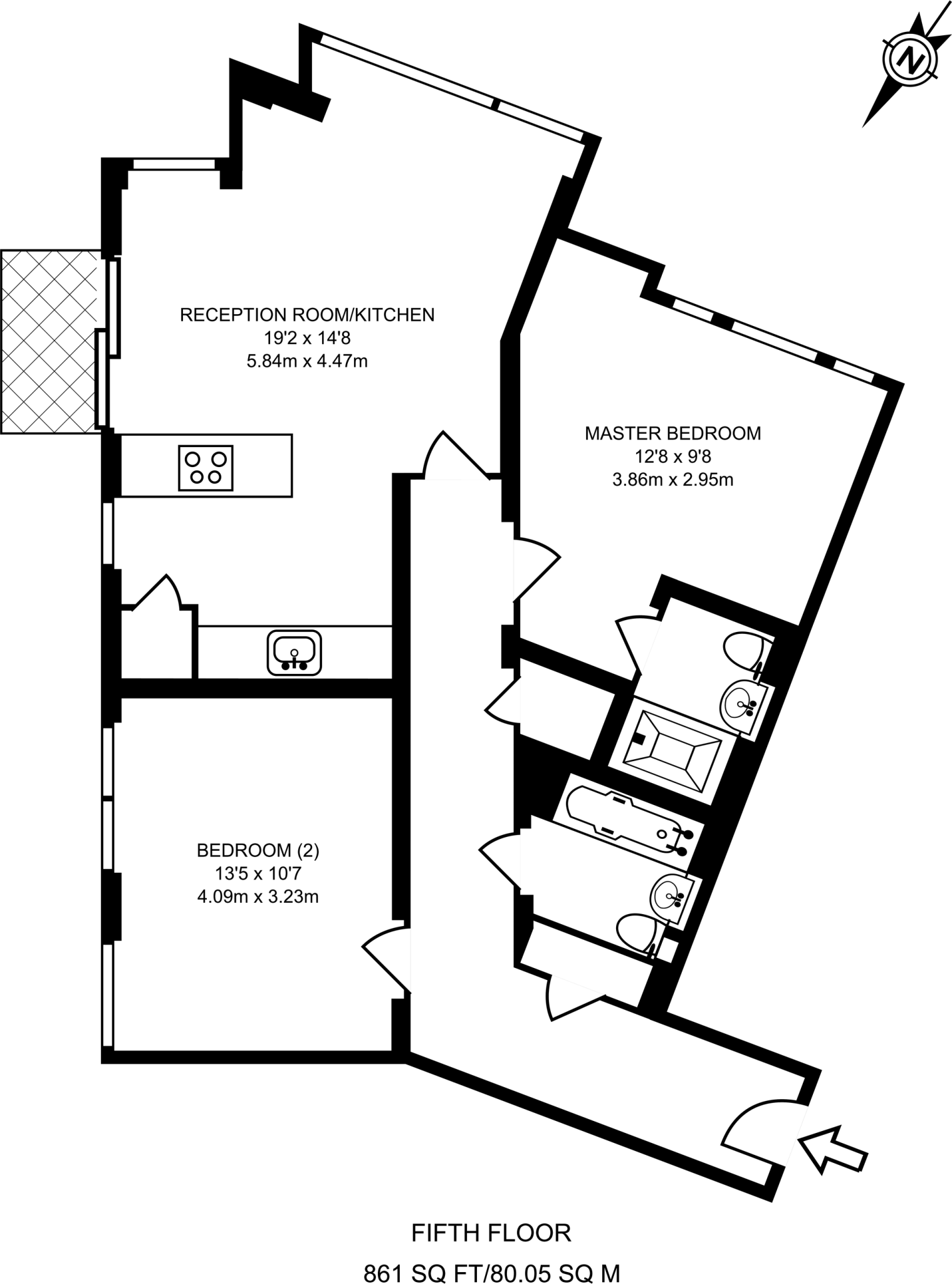
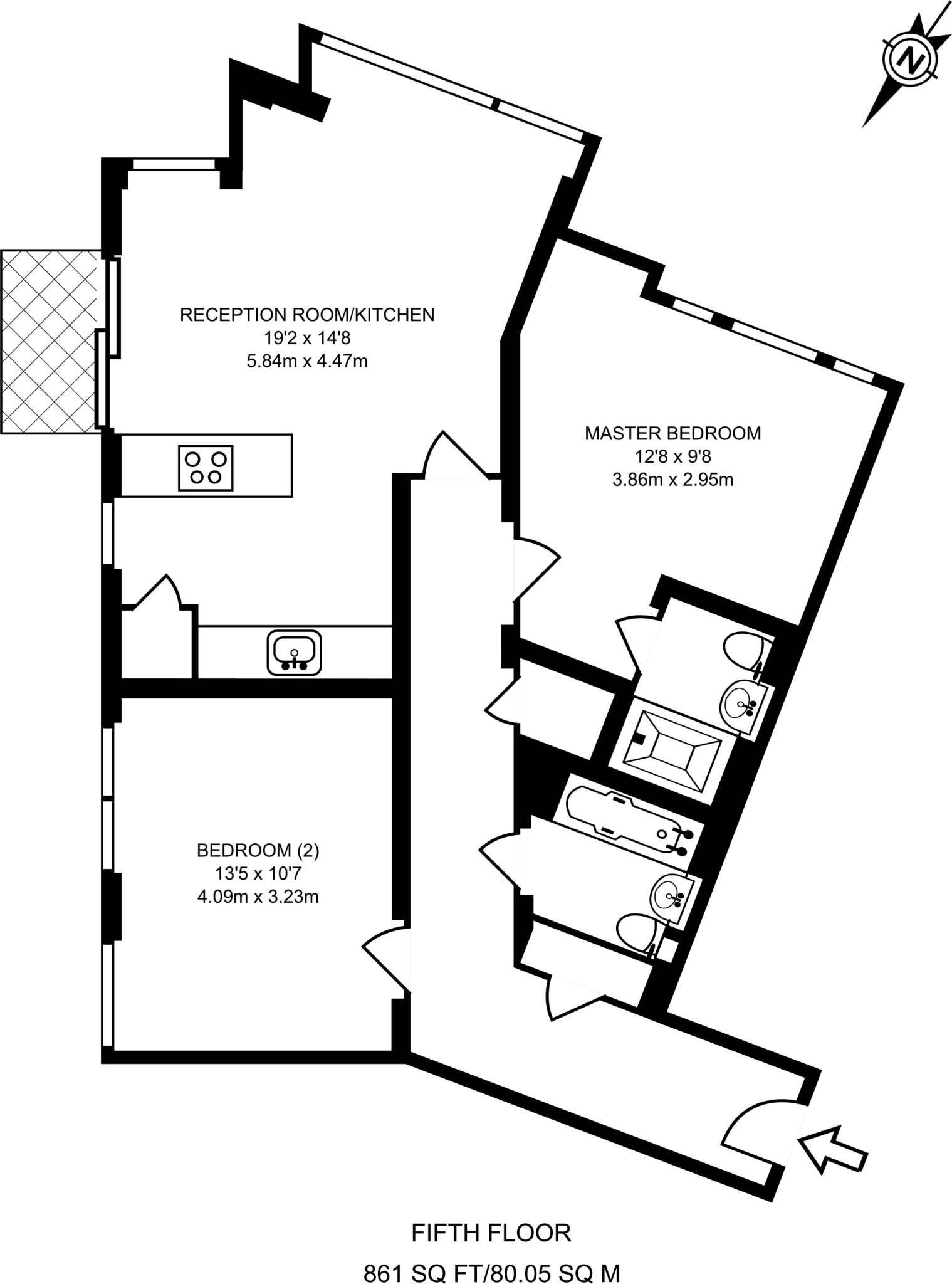
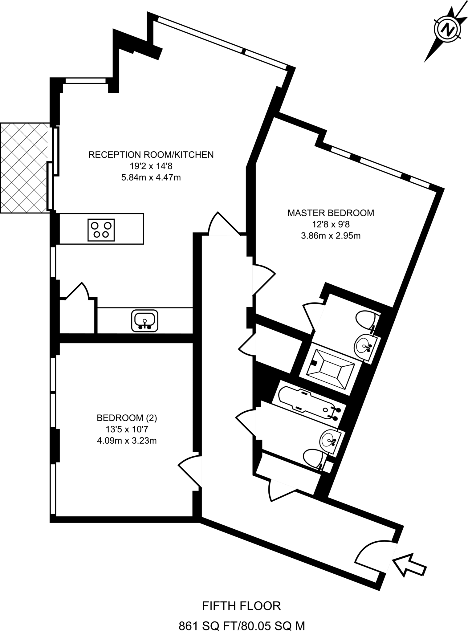
Set on the fifth floor of a secure development with concierge and lift access, this two-bedroom apartment offers bright, contemporary living and clear Westminster views. The reception room flows into an open-plan kitchen and onto a private balcony, creating appealing, flexible space for renting or owner-occupation. Underfloor heating and floor-to-ceiling windows enhance comfort and light throughout the 861 sq ft layout.
Practical benefits include an allocated underground parking space, an en‑suite principal bedroom, and long leasehold tenure (134 years remaining). Communal hot water and heating simplify maintenance and management, attractive for investors seeking predictable running arrangements. Fast broadband and excellent mobile signal suit home-working tenants or tech-focused professionals.
Buyers should note material running costs: an above-average annual service charge of £5,500 and the property’s location in a very high crime area, which may affect insurance and tenancy appeal. The flat sits in an affluent, inner-city neighbourhood close to Victoria Street amenities and strong local schools, supporting steady rental demand and future resale prospects.
2 bedroom maisonette for sale in Marsham Street, Westminster, London, SW1P — £750,000 • 2 bed • 2 bath • 707 ft²
2 bedroom flat for sale in Rochester Row, London, SW1P — £775,000 • 2 bed • 2 bath • 735 ft²
2 bedroom flat for sale in Vauxhall Bridge Road, London, SW1V — £725,000 • 2 bed • 2 bath • 970 ft²
2 bedroom flat for sale in Vauxhall Bridge Road, London, SW1V — £650,000 • 2 bed • 2 bath • 742 ft²
2 bedroom flat for sale in Emanuel House, Westminster, London, SW1P — £700,000 • 2 bed • 1 bath • 762 ft²
2 bedroom flat for sale in Dolben Court, Montaigne Close, Westminster, London, SW1P — £1,050,000 • 2 bed • 2 bath • 915 ft²










































































































































































































































































































































































































































































