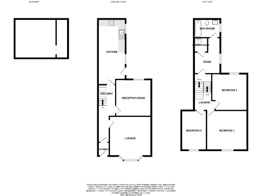
**Highlights:**
- Chain-free terraced house in Preston
- Ideal for first-time buyers and investors
- Three spacious bedrooms and two reception rooms
- Large kitchen/diner with cellar access for conversion potential
- Character features throughout, including high ceilings and period details
- Larger than average rear yard, perfect for outdoor entertaining
- Excellent transport links and local amenities within walking distance
- Council tax band A, very low maintenance cost
This charming mid-terraced home on Ripon Street is a fantastic opportunity for first-time buyers or savvy investors alike. With 1,292 square feet of space, the property boasts a welcoming hallway, two generously sized reception rooms, and a modern kitchen/diner that opens to a substantial rear yard—ideal for summer gatherings or potential garden improvements.
Upstairs, three spacious bedrooms with delightful period features and a conveniently attached shower room complement the family bathroom. The home’s character shines through, providing a cozy environment that invites personalization.
While the property is in good condition, potential buyers should note that it may benefit from some renovation to truly make it shine, especially in its interior decorative elements. Set in a cosmopolitan student neighborhood near reputable schools, strong transport links, and essential amenities, this property is poised for swift interest. Don’t miss your chance to secure this delightful home—viewings are encouraged as it’s rare for properties of this size and appeal to remain on the market for long!
2 bedroom terraced house for sale in Ripon Street, Preston, PR1 — £130,000 • 2 bed • 1 bath • 608 ft²
3 bedroom terraced house for sale in Lowndes Street, Preston, Lancashire, PR1 — £118,000 • 3 bed • 1 bath • 833 ft²
3 bedroom end of terrace house for sale in Skeffington Road, Preston, PR1 — £160,000 • 3 bed • 1 bath • 1120 ft²
3 bedroom terraced house for sale in Norris Street, Preston, PR2 — £159,995 • 3 bed • 1 bath
3 bedroom terraced house for sale in Kenmure Place, Preston, Lancashire, PR1 — £123,000 • 3 bed • 1 bath • 924 ft²
3 bedroom terraced house for sale in Maitland Street, Preston, PR1 — £130,000 • 3 bed • 1 bath






































































































