Compact first-floor flat ideal for cash buyers or buy-to-let in a convenient Didcot location.
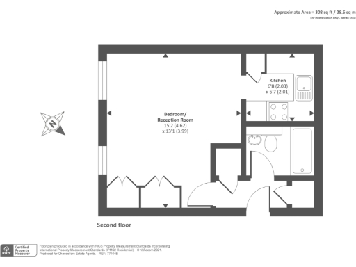
Recently renovated first-floor studio, approx. 308 sq ft
A first-floor studio finished to a high standard and offered with no onward chain. The apartment (approx. 308 sq ft) has a modern fitted kitchen, contemporary bathroom and an open living/bedroom space, recently renovated with double glazing and electric storage heaters. On-site parking and fast broadband make it practical for a single occupant or a lettable city-base.
The lease currently shows 62 years remaining. Sellers state a 999-year extension is being processed, but buyers must verify completion. Mortgage lenders commonly refuse lending on properties with short leases; cash buyers or investors prepared to fund a lease extension should note this risk. Ground rent is £81.54 pa and service charge £617.69 pa (both relatively low), and council tax is very cheap.
This property suits a cash buyer or buy-to-let investor seeking a low-maintenance, newly renovated studio in Didcot. The flat is compact, so it won’t suit those needing separate rooms or family accommodation. Local services include regular buses, good schools nearby, low crime and quick links to town amenities — useful for rental demand or a simple lock-up-and-leave home.
Studio flat for sale in Linacre Close, Didcot, OX11 — £131,000 • 1 bed • 1 bath
2 bedroom apartment for sale in Kibble Close, Didcot, OX11 — £230,000 • 2 bed • 1 bath • 485 ft²
1 bedroom apartment for sale in Linacre Close, Didcot, OX11 — £180,000 • 1 bed • 1 bath • 486 ft²
Studio flat for sale in Clarendon Close, Abingdon, OX14 — £155,000 • 1 bed • 1 bath • 366 ft²
1 bedroom apartment for sale in Middle Furlong, Didcot, OX11 — £190,000 • 1 bed • 1 bath • 376 ft²
1 bedroom apartment for sale in Park Close, Didcot, Oxfordshire, OX11 — £190,000 • 1 bed • 1 bath • 571 ft²


































