Pre-application support indicates potential for 8–11 new residential units.
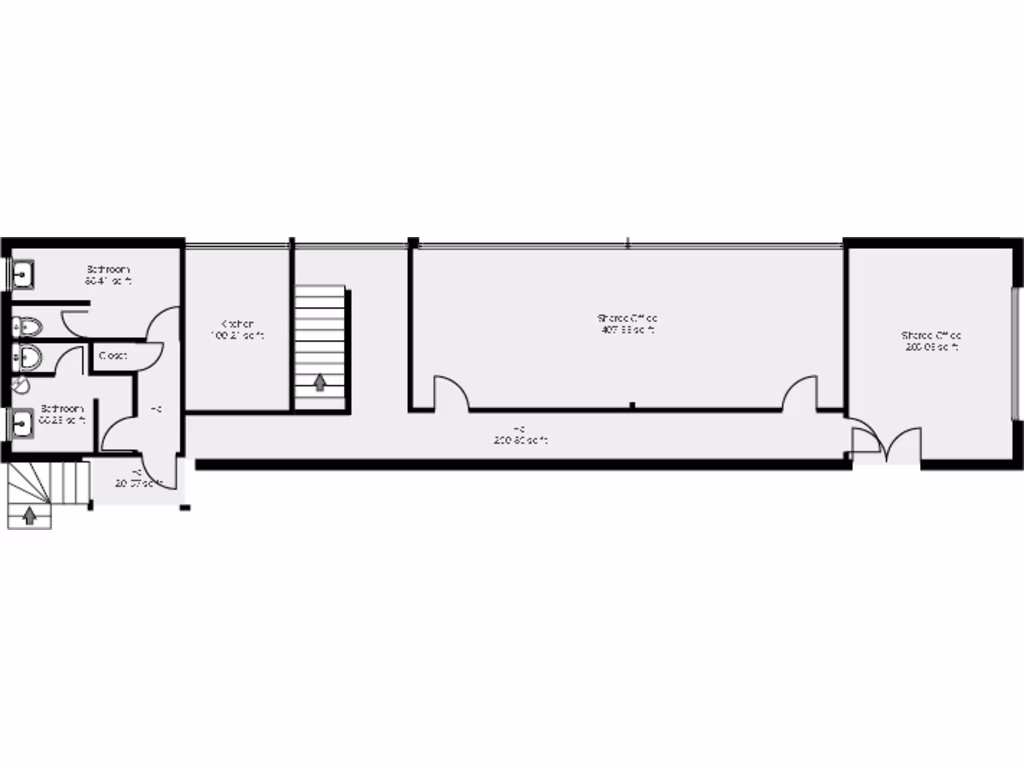
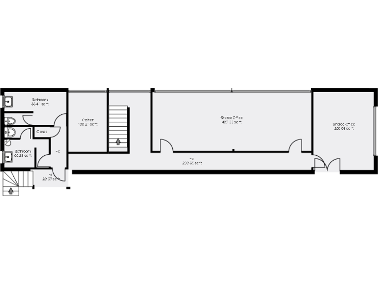
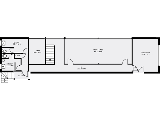
Approximately 9,000 sq ft industrial building on a decent plot
This freehold industrial building offers a rare, centrally located redevelopment opportunity just outside Rushden town centre. Extending to around 9,000 sq ft on a decent plot, the site already has pre-application feedback indicating demolition and residential redevelopment could be acceptable in principle. Indicative drawings show potential for 8–11 homes (townhouses and apartments), giving clear development direction for a speculative developer or investor.
The existing structure includes parking on two sides and an additional parcel currently used for storage units, which could be incorporated into a redevelopment scheme. The building benefits from modern features noted in drawings — good natural light, private balconies and eco-friendly solar panels — which could reduce future build costs and appeal to buyers or renters seeking contemporary homes with low running costs.
Buyers should note planning is not yet granted and any scheme will be subject to full planning approval. The site sits in an area with higher-than-average crime, which may influence design, security costs and marketability; these factors should be accounted for in budgets. Conversion or clearance will also require capital for demolition, remediation and new build works, and the extra parcel will need resolving where storage units currently sit.
For investors and developers seeking a town-centre regeneration project, this plot presents clear upside: central location, demonstrable local authority pre-consultation, fast broadband and excellent mobile signal. The combination of size, location and pre-application advice gives a strong starting point for a feasible residential scheme, provided the purchaser allows for planning risk and local-area considerations.
Factory for sale in Beech Road, Rushden, Northamptonshire, NN10 — £695,000 • 1 bed • 1 bath • 9000 ft²
Land for sale in Alexandra Road, Rushden, NN10 — £60,000 • 1 bed • 1 bath • 6534 ft²
4 bedroom detached house for sale in Moor Road, Rushden, Northamptonshire, NN10 — £475,000 • 4 bed • 2 bath • 2083 ft²
Warehouse for sale in Heathfield Way, Kings Heath Industrial Estate, Northampton, NN5 7QY, NN5 — £2,500,000 • 1 bed • 1 bath
3 bedroom triplex for sale in High Street, Rushden, NN10 — £220,000 • 3 bed • 2 bath • 1966 ft²
High street retail property for sale in High Street, Rushden, Northamptonshire, NN10 — £765,000 • 1 bed • 1 bath • 937 ft²


















































































