**Standout Features:**
- Well-presented ground floor apartment
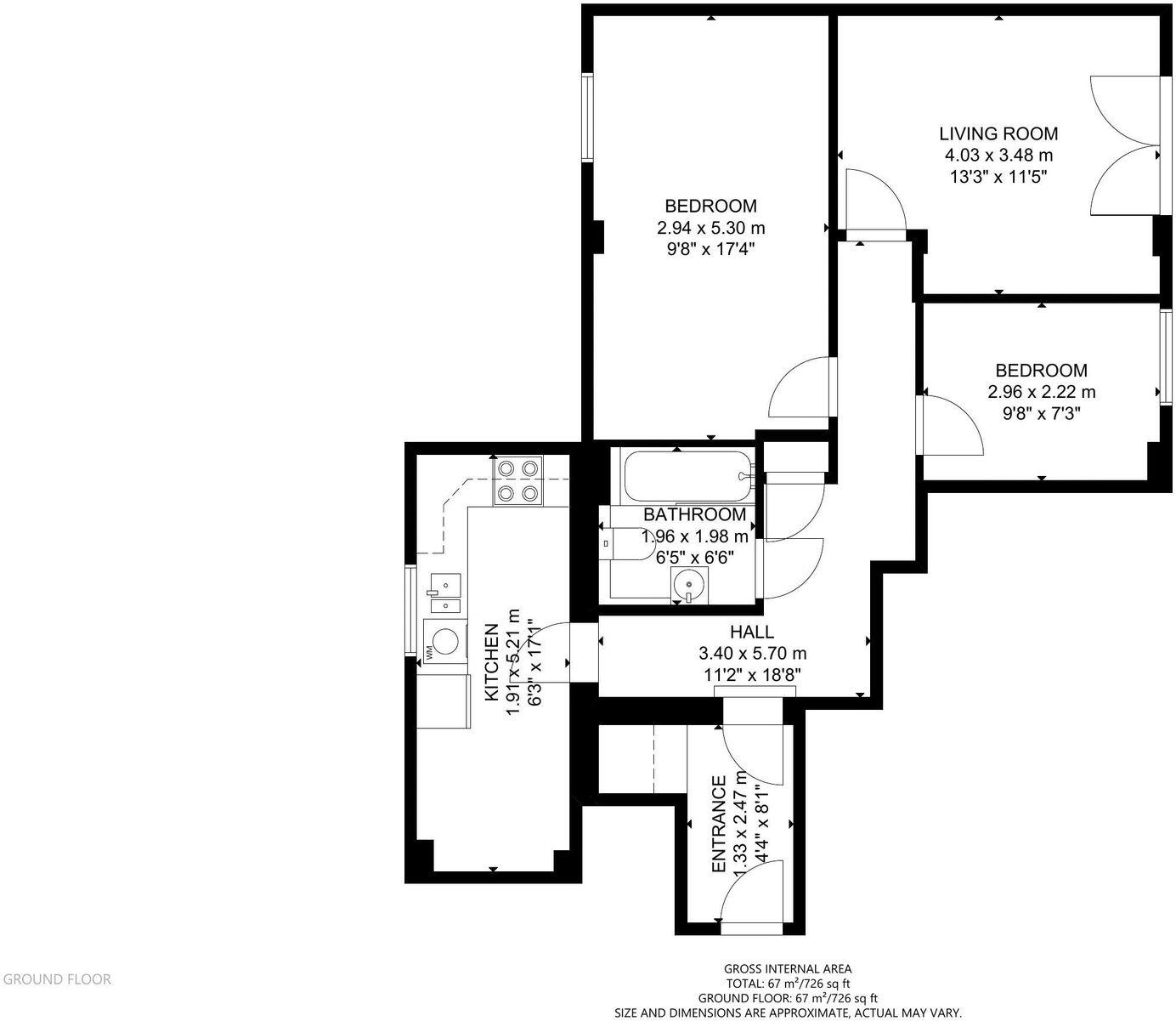
- 2 double bedrooms and newly fitted family bathroom
- Bright living room and modern kitchen/diner
- Allocated parking space
- Close proximity to the seafront and local shops
- Access to communal gardens
- Excellent mobile signal and fast broadband
**Concerns:**
- Average-sized property may not suit larger families
- High crime rate in the area
- Electric storage heaters may not offer efficient heating
- Cavity walls assumed to lack insulation
Nestled just a short walk from the beautiful seafront and local amenities, this charming ground floor apartment is ideal for first-time buyers or investors seeking rental potential. Boasting two spacious double bedrooms, a bright living room that invites leisure time, and a contemporary kitchen/diner perfect for entertaining, this property blends comfort with functionality. Enjoy the convenience of an allocated parking space and picturesque communal gardens—ideal for relaxing moments outside.
Despite its appealing layout and modern renovations, it's important to note the average space may feel snug for larger families, and the area’s crime rate could raise caution for those prioritizing security. The apartment is heated by electric storage heaters, which might require considerations for efficiency. With easy access to Bognor Regis town center and mainline transport links to London, this property offers potential buyers a unique blend of lifestyle and convenience. Act quickly, as homes like this in sought-after coastal locales don’t last long!
1 bedroom apartment for sale in Richmond Avenue, Canberra Court Richmond Avenue, PO21 — £160,000 • 1 bed • 1 bath • 440 ft²
2 bedroom flat for sale in Stocker Road, Bognor Regis, PO21 — £160,000 • 2 bed • 1 bath • 506 ft²
2 bedroom apartment for sale in Ockley Road, Bognor Regis, PO21 — £200,000 • 2 bed • 1 bath • 622 ft²
2 bedroom apartment for sale in Stocker Road, Bognor Regis, PO21 — £175,000 • 2 bed • 1 bath • 493 ft²
2 bedroom apartment for sale in High Street, Regis Court High Street, PO21 — £190,000 • 2 bed • 1 bath • 607 ft²
2 bedroom flat for sale in Richmond Avenue, Bognor Regis, West Sussex, PO21 — £195,000 • 2 bed • 1 bath • 684 ft²






































































