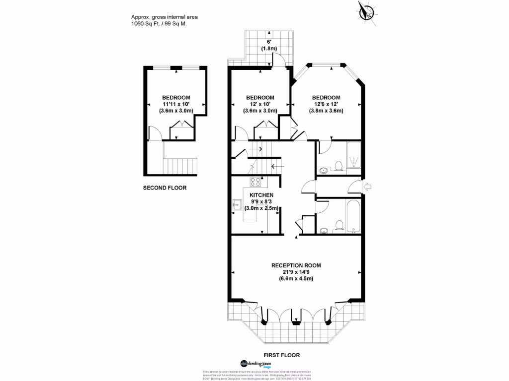
Spacious three‑bedroom apartment with balconies and communal garden access.
Three double bedrooms and two bathrooms, one en suite
South‑facing balcony plus second private balcony overlooking communal garden
Approx. 1,060 sq ft (99 sq m) of lateral living space
Lift access and underfloor heating from mains gas boiler
Double glazing installed post‑2002; period features retained
Leasehold: 118 years remaining; peppercorn ground rent
Service charge about £2,214 pa; Council Tax Band G (quite expensive)
Local recorded crime level: very high — consider security/insurance
Set within a handsome late-Victorian red‑brick terrace in Knightsbridge, this split-level three-bedroom apartment occupies the principal floor and offers generous reception space, contemporary finishes and two private balconies overlooking communal garden greenery. The layout suits a family home or a central London pied‑à‑terre, with good natural light from full‑height bay windows and a south‑facing aspect to one balcony.
Practical comforts include an integrated modern kitchen, underfloor heating from a mains‑gas boiler, double glazing installed post‑2002 and lift access. The property is sold leasehold (118 years remaining) with a modest annual service charge and a peppercorn ground rent, making it straightforward for incoming buyers to manage service arrangements.
Location is a principal asset: equidistant from South Kensington and Knightsbridge stations, surrounded by world‑class retail, dining and cultural amenities. These transport and lifestyle links support strong long‑term demand for rental or owner occupation in this part of SW3.
Buyers should note material costs and constraints: the property is leasehold (118 years remaining), has an annual service charge of approximately £2,214 and falls in a high council tax band (Band G). The local recorded crime level is very high; purchasers should consider personal security and insurance implications. Overall, this is a well‑presented period apartment in a prime Knightsbridge location, ideal for those seeking central London living with outdoor outlooks and good transport links.
2 bedroom apartment for sale in Egerton Gardens, London, SW3 — £900,000 • 2 bed • 1 bath • 551 ft²
1 bedroom flat for sale in Hans Place London SW1X — £1,300,000 • 1 bed • 1 bath • 711 ft²
2 bedroom apartment for sale in Basil Street, Knightsbridge, SW3 — £1,650,000 • 2 bed • 2 bath • 1031 ft²
1 bedroom flat for sale in Beaufort Gardens Knightsbridge SW3 — £680,000 • 1 bed • 1 bath • 373 ft²
2 bedroom flat for sale in Brompton Square, Knightsbridge, London, SW3 — £3,495,000 • 2 bed • 2 bath • 1559 ft²
3 bedroom flat for sale in Empire House, North Terrace, SW7 — £3,850,000 • 3 bed • 3 bath • 1722 ft²






















































