Bright city apartment with parking and long lease, ideal for first-time buyers.
Two double bedrooms with en-suite to principal
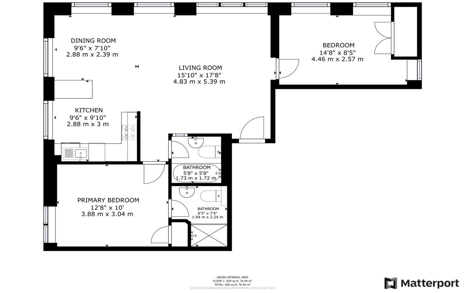
Set in the historic Lace Market, this two-bedroom apartment offers bright, spacious city living with long lease security. Large sash windows and high ceilings flood the open-plan kitchen/living area with light and provide pleasant views over St Mary’s Church. The property includes an en-suite, family bathroom and one allocated underground parking space accessed by lift for convenience.
The apartment is chain-free and comes with c. 828 sq ft of accommodation and an exceptionally long lease (c. 974 years), making it straightforward to buy. The contemporary kitchen has integrated appliances and solid wood flooring; the layout suits a first-time purchaser or someone seeking a city-centre rental opportunity.
Buyers should note an annual service charge of £2,640 and Council Tax Band D. The wider Lace Market area is a multicultural, student-heavy neighbourhood with a busy evening economy; this brings good rental demand but can mean higher local activity and noise. Crime levels are average and the immediate area is classed as relatively deprived, which may affect future capital-growth expectations.
Overall, the apartment is a practical, well-presented city property with strong location benefits and long-lease security. It will suit buyers prioritising central convenience, light-filled rooms and straightforward access to transport, shops and restaurants, but those seeking a quiet suburban setting may prefer elsewhere.
2 bedroom apartment for sale in 21 Barker Gate, The Lace Market, Nottingham, NG1 — £215,000 • 2 bed • 2 bath • 793 ft²
2 bedroom apartment for sale in The Point, Plumptre Street, Lace Market, NG1 — £165,000 • 2 bed • 2 bath • 970 ft²
2 bedroom flat for sale in Plumptre Street, Nottingham, Nottinghamshire, NG1 — £160,000 • 2 bed • 2 bath • 838 ft²
2 bedroom apartment for sale in 1A Hollowstone, Nottingham, Nottinghamshire, NG1 1JH, NG1 — £190,000 • 2 bed • 2 bath • 800 ft²
2 bedroom apartment for sale in One Fletcher Gate, Nottingham City Centre, NG1 — £180,000 • 2 bed • 2 bath • 846 ft²
2 bedroom apartment for sale in 1A Hollowstone, Nottingham, NG1 — £240,000 • 2 bed • 2 bath • 763 ft²










































































