Last remaining new three-bedroom bungalow — low-maintenance, energy-efficient single‑storey living.
Last remaining plot on new development
Three double bedrooms with ensuite and family bathroom
Underfloor air-source heating; EPC B
Private driveway and front and rear gardens
Move-in target late Spring 2026 (completion lead time)
Located between Glasgow and Edinburgh; regular train service
Area has high deprivation and challenged local classification
Council tax band above average
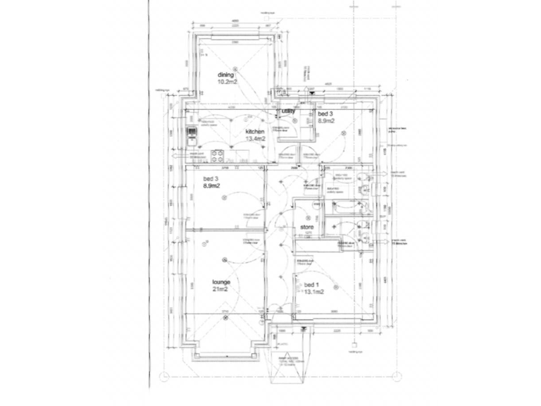
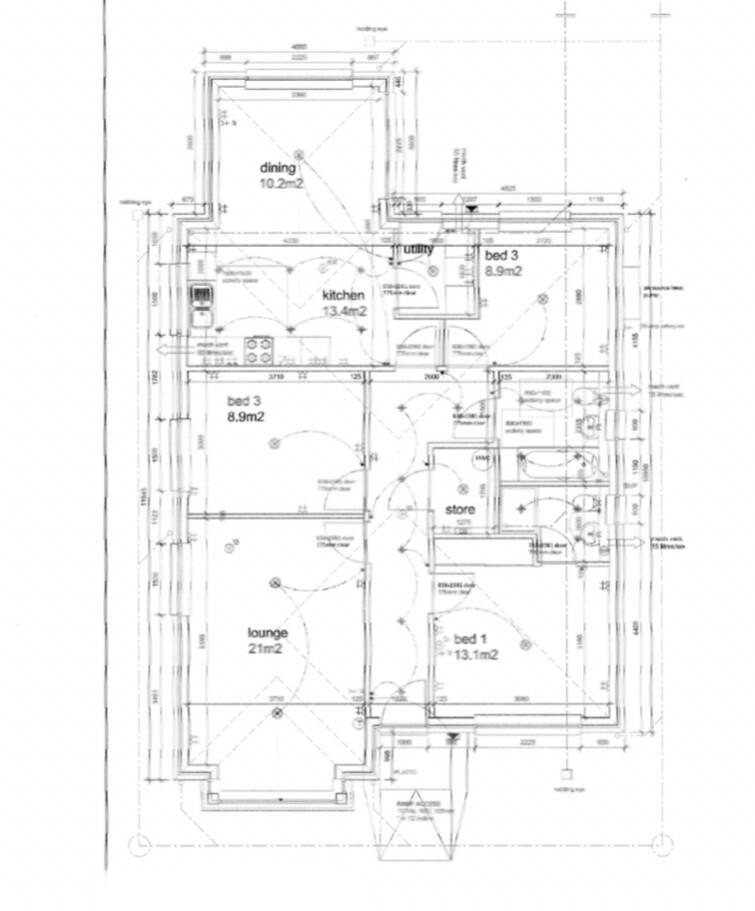
This is the last remaining three-bedroom detached bungalow on a new development in Shotts, offered as a modern, single-storey home with low-maintenance exterior and private driveway. The layout provides comfortable living spaces, a kitchen/dining area with French doors, ensuite and family bathroom, and front and rear gardens — suited to buyers prioritising easy single-level living.
Built with renewable heating in mind, the property benefits from underfloor air-source heating and an EPC B rating, which can reduce running costs compared with older homes. The internal footprint is around 105 m2 (circa 1,130 sq ft) with standard ceiling heights and medium-sized rooms, offering practical space for a family or downsizer wanting a contemporary finish.
Buyers should weigh local context: the wider area records high deprivation and is classified by local datasets as challenged, and council tax is above average. The development’s expected completion is late Spring 2026, so there is a lead time before occupation. Commuter links are strong — Shotts lies roughly halfway between Glasgow and Edinburgh with a regular train service and quick M8 access.
Overall, this bungalow suits buyers seeking a new, low-maintenance single-level home with modern heating and reasonable internal space, who are comfortable with the local social and economic profile and a mid-2026 move-in timetable.
3 bedroom end of terrace house for sale in Waddell Terrace, Shotts, ML7 — £219,000 • 3 bed • 3 bath • 905 ft²
3 bedroom semi-detached house for sale in Plot 3 Benhar Road Shotts ML7 5EP, ML7 — £200,000 • 3 bed • 3 bath • 627 ft²
3 bedroom detached house for sale in Herbison Crescent, Shotts, ML7 — £249,995 • 3 bed • 2 bath • 1320 ft²
3 bedroom end of terrace house for sale in Baird Drive, Shotts, ML7 — £215,000 • 3 bed • 2 bath • 900 ft²
3 bedroom detached bungalow for sale in Unity Park, Shotts, Lanarkshire, ML7 4AN, ML7 — £199,995 • 3 bed • 1 bath • 1065 ft²
3 bedroom bungalow for sale in Kirk Road, Shotts, ML7 — £240,000 • 3 bed • 2 bath • 1162 ft²














































































