Compact, renovated family home near schools and transport links.
Three bedrooms with fitted wardrobes in main rooms
Newly renovated kitchen and bathroom, move-in ready
Bay-front lounge retaining 1930s character
Double glazing and gas central heating throughout
Front driveway for off-street parking
Low-maintenance rear garden with patio and shed
Scope to extend to rear under permitted development
Small overall size; compact rooms may limit space
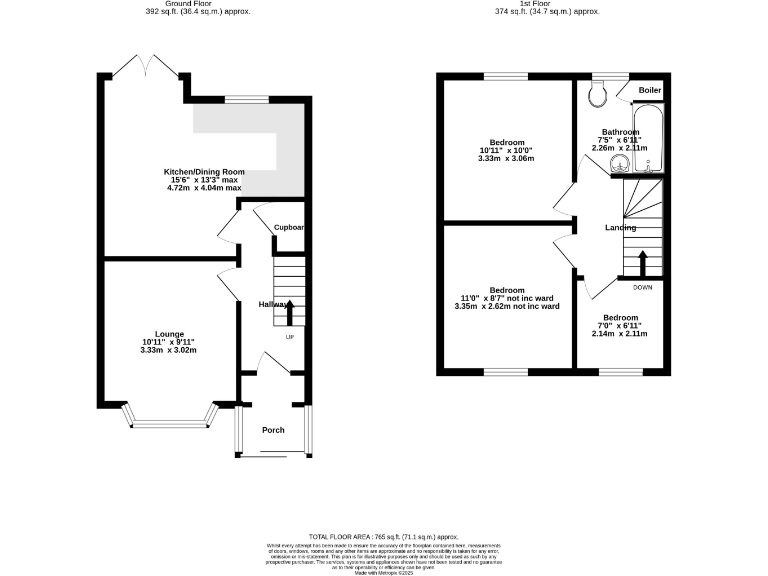
This recently renovated three-bedroom mid-terrace on Dudley Road West offers a practical, move-in-ready home for a growing family. The property combines period character — a bay-fronted lounge and 1930s red brick facade — with modern upgrades including a new kitchen, bathroom and double glazing. Everyday life is made easier by gas central heating, off-street parking and a low-maintenance rear garden.
Accommodation is compact but well organised across approximately 765 sq ft: lounge with bay window, kitchen/diner, three bedrooms and a family bathroom. Two main bedrooms have fitted wardrobes and there is useful under-stairs storage plus loft access. There is also scope to extend to the rear under permitted development for more living space (no application currently filed).
Location is practical for commuters and families alike. The house sits near frequent bus routes and major road links (easy access toward Dudley, Wolverhampton and Birmingham), and several well-rated primary and secondary schools are within walking distance. Broadband and mobile signals are strong for home working.
Buyers should note a few material facts: the property is small in overall size and some rooms are compact, which will suit buyers seeking efficient rather than expansive living. The area has higher-than-average crime statistics and sits within a deprived local authority area; purchasers should factor in these neighbourhood considerations. Freehold tenure and recently completed works reduce immediate maintenance needs, but future buyers may still want to budget for typical older-property upkeep and for any planned extensions.
3 bedroom semi-detached house for sale in Raby Close, Tividale, Oldbury, West Midlands, B69 — £220,000 • 3 bed • 1 bath • 713 ft²
3 bedroom end of terrace house for sale in Shinwell Crescent, Oldbury, B69 — £250,000 • 3 bed • 1 bath • 647 ft²
3 bedroom terraced house for sale in Bilhay Lane, West Bromwich, B70 — £220,000 • 3 bed • 1 bath • 776 ft²
3 bedroom terraced house for sale in Bailey Street, WEST BROMWICH, B70 9UF, B70 — £240,000 • 3 bed • 1 bath
3 bedroom terraced house for sale in Dawes Avenue, WEST BROMWICH, B70 — £260,000 • 3 bed • 1 bath • 787 ft²
3 bedroom semi-detached house for sale in Elm Terrace, Tividale, Oldbury, West Midlands, B69 — £270,000 • 3 bed • 1 bath • 914 ft²






























































