Large garden, modern kitchen and excellent transport links for family living.
Three double bedrooms plus separate study, flexible family space
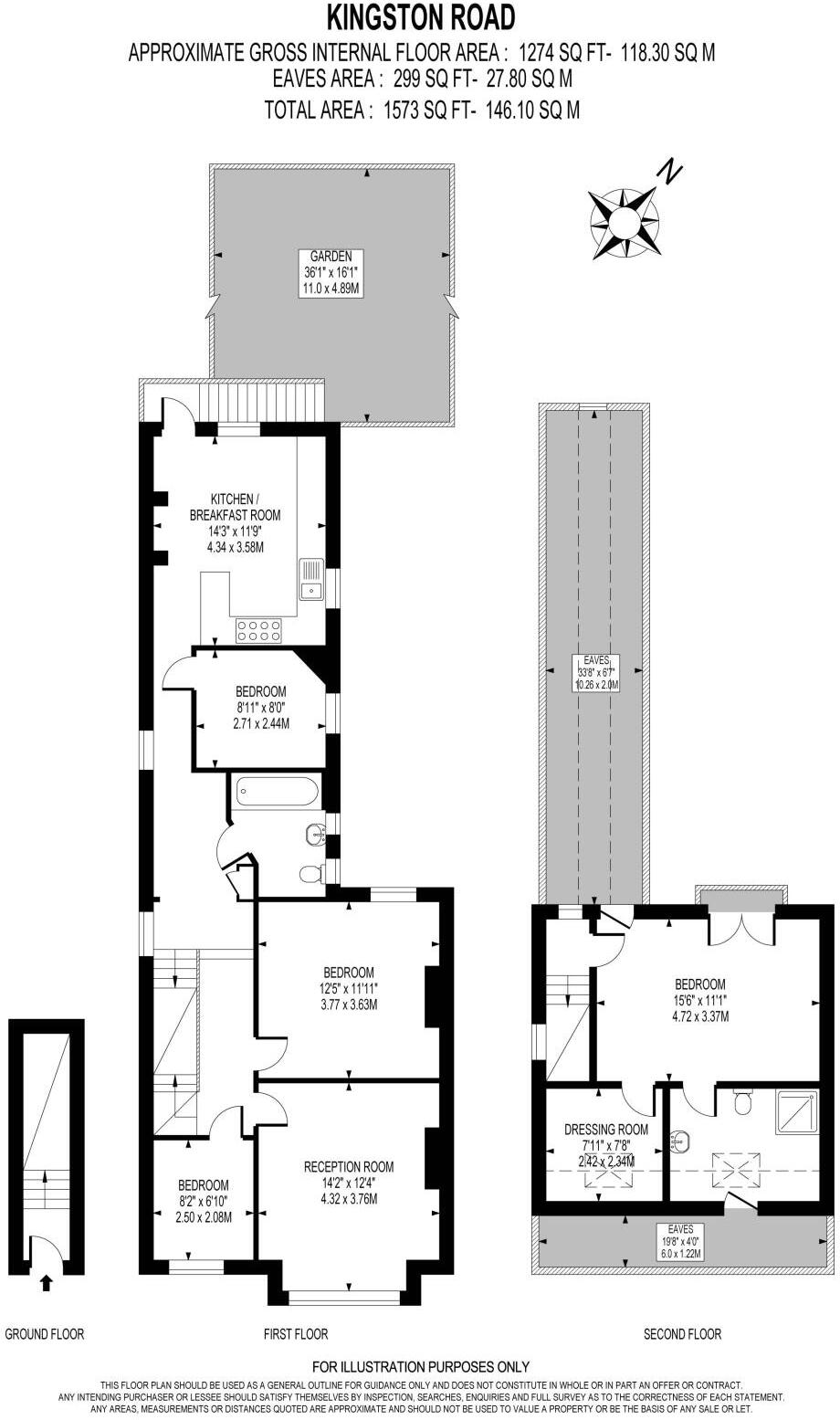
A spacious period split-level maisonette occupying 1,274 sq ft in a sought-after Raynes Park location. The layout includes three double bedrooms, a separate study and a large modern kitchen — ideal for families who need flexible space and a home office. The property benefits from a private garden, two bath/shower rooms and generous living room proportions typical of Victorian character homes.
Practical details support everyday living: mains gas central heating, double glazing (install date unknown), no flood risk and excellent mobile signal with fast broadband. It sits within the Wimbledon Chase Primary School catchment and is close to Wimbledon Chase station and local amenities, making commutes and family life straightforward. Offered chain-free for a quicker purchase.
This is a leasehold home with c.99 years remaining, a low ground rent (£10 p.a.) and a below-average service charge (£34.24 pcm / £410.88 yearly). Prospective buyers should note the building’s solid brick construction likely lacks modern cavity insulation and some sympathetic updating may be required, particularly around thermal improvements and any chosen cosmetic modernisation.
Overall, this is a roomy, characterful family home in a very affluent neighbourhood with schooling and transport advantages. It suits buyers seeking period features combined with modern kitchen and bathrooms, and investors or families prepared to budget for modest retrofit or energy-efficiency upgrades.
3 bedroom maisonette for sale in Kingston Road, London, SW20 — £675,000 • 3 bed • 3 bath • 1305 ft²
3 bedroom maisonette for sale in Kingston Road, Raynes Park, SW20 — £550,000 • 3 bed • 2 bath • 1065 ft²
3 bedroom terraced house for sale in Bronson Road, Wimbledon Chase, SW20 — £900,000 • 3 bed • 2 bath • 1184 ft²
2 bedroom flat for sale in Kingston Road, Raynes Park, London, SW20 — £450,000 • 2 bed • 1 bath • 647 ft²
2 bedroom maisonette for sale in Cambridge Road, London, SW20 — £600,000 • 2 bed • 1 bath • 790 ft²
2 bedroom maisonette for sale in Kingston Road, Wimbledon Chase, London, SW20 8JR, SW20 — £395,000 • 2 bed • 1 bath • 625 ft²


















































































