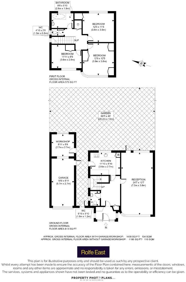
- Detached 1930s family house on a wider-than-average plot
- Large, mature rear garden with patio and landscaping
- Detached garage and private driveway; scope to extend (STPP)
- Bright reception room and modern kitchen with garden access
- Double glazed windows and gas central heating throughout
- Council tax band G — quite expensive for buyers to budget
- High local crime rate; area classed as deprived
- EPC rating currently TBC
Set on a wider-than-average plot in Ealing, this well-presented three-bedroom detached house suits families seeking private outdoor space and off-street parking. The house retains 1930s period character externally and offers a bright reception room, a modern kitchen with direct garden access, and a large mature rear garden with stone patio—ideal for children and entertaining.
Practical features include double-glazed windows, gas central heating and a detached garage with its own drive. The garage placement and generous plot present genuine potential to extend or reconfigure (subject to consents), making this an attractive purchase for families wanting long-term growth.
Buyers should note key local factors: the property lies in a high-crime, relatively deprived area of a major conurbation, and council tax is described as quite expensive. EPC rating is currently TBC. These are important considerations for budgeting and insurance.
Overall, the home is move-in ready and offers immediate family comfort with scope to adapt or enlarge in future. Its proximity to the train station, local shops and several highly rated schools increases everyday convenience and long-term appeal for families.



















































