Affordable ground-floor one-bedroom flat with garden and two parking spaces — cash buyers, leasehold..
Ground-floor one bedroom apartment, compact footprint
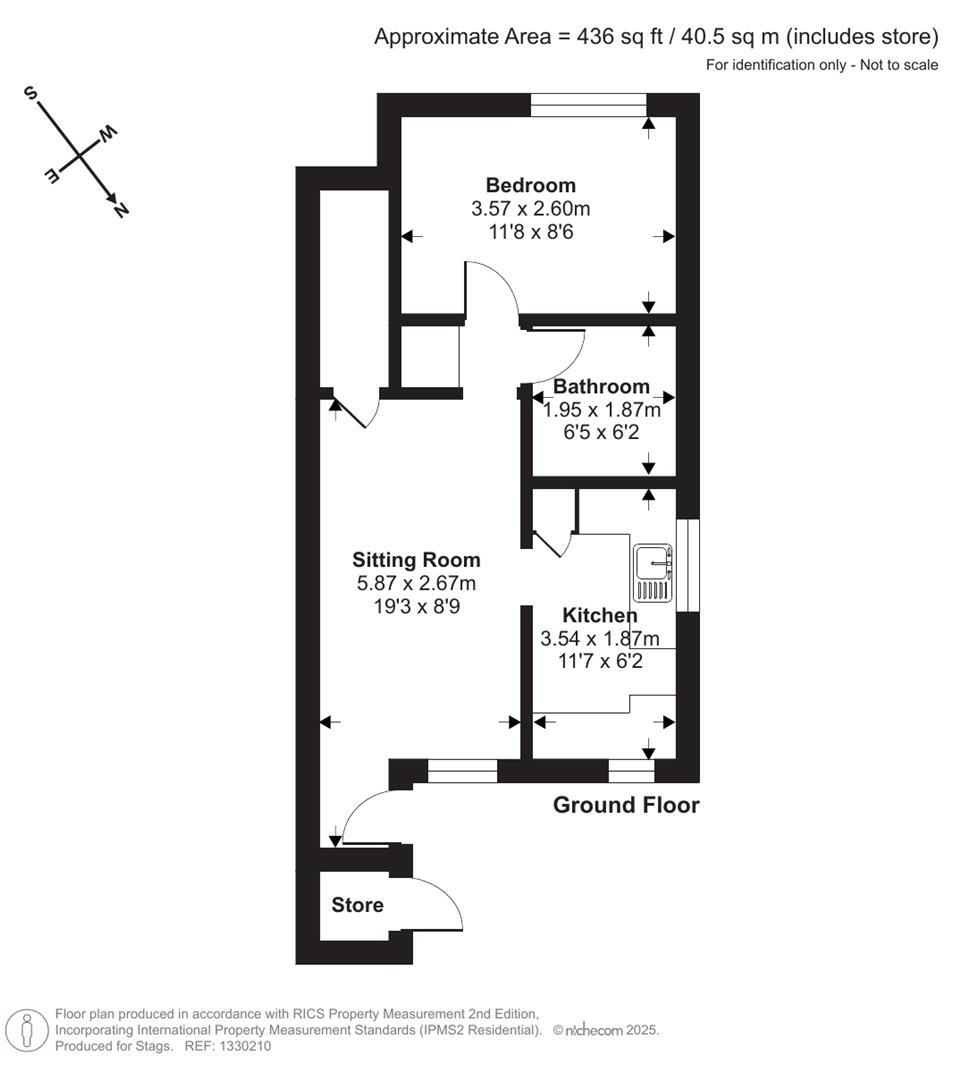
This compact ground-floor one-bedroom apartment offers an affordable entry into Wellington within easy reach of the town centre and M5. The layout is straightforward: sitting room, kitchen, bedroom and bathroom, with a small front garden, allocated parking for two cars and a store. The property benefits from a very long lease (955 years), UPVC double glazing, superfast broadband and low council tax (Band A).
The flat is best suited to a single buyer, couple or a buy-to-let investor seeking a low-cost purchase. Heating is by electric wall heaters and the EPC is D, so running costs and comfort are modest compared with gas-heated homes. Interior photos show clean, contemporary but basic finishes and low ceilings; some modernisation would improve comfort and rental appeal.
Important practical points: the sale is for cash buyers only and the property is leasehold. The internal area is small (approximately 377–436 sq ft depending on measurement) so space is limited. There are two allocated parking spaces and a small front garden, which add practical value in a town location.
Overall this is an economical, low-maintenance option for someone seeking an affordable home or an entry-level investment in Wellington. It offers immediate occupation with no onward chain, but expect to budget for updating the kitchen, bathroom or heating if higher standards of comfort are required.
1 bedroom flat for sale in Thomas Fox Road, Wellington, TA21 — £139,950 • 1 bed • 1 bath • 376 ft²
1 bedroom flat for sale in Buckwell, Wellington, TA21 — £155,000 • 1 bed • 1 bath • 344 ft²
1 bedroom apartment for sale in Canal Close, Wellington, TA21 — £124,000 • 1 bed • 1 bath • 527 ft²
1 bedroom ground floor flat for sale in 5 White Hart Lane, Wellington, TA21 — £140,000 • 1 bed • 1 bath • 409 ft²
2 bedroom apartment for sale in Canal Close, Tonedale, Wellington, TA21 — £145,000 • 2 bed • 1 bath • 599 ft²
2 bedroom flat for sale in Flat 1, The Old Cleve Stables, Mantle Street, Wellington, TA21 — £235,000 • 2 bed • 2 bath • 969 ft²






































