Convenient Cowes family home with flexible rooms, parking and quick connections..
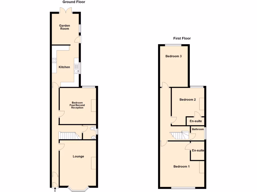
Chain free four-bedroom semi-detached period house
Two first-floor bedrooms with en-suite bathrooms
Ground-floor bedroom offers flexible living arrangements
Working log burner and bay-fronted reception room
Modern kitchen with marble worktops and garden room
Off-street parking for two cars; small low-maintenance garden
Cavity walls as built have no insulation — upgrade recommended
Double glazing install date unknown; some updates likely needed
Set a short walk from Cowes facilities, this 1930s semi-detached house blends period character with practical family living. The ground floor includes a flexible bedroom, bay-fronted reception with working log burner, and a modern kitchen opening to a bright garden room — useful for everyday dining or entertaining. Two first-floor bedrooms each have en‑suites and the principal room offers built-in wardrobes and a distant sea glimpse.
The property is chain free and sits on a small, low-maintenance plot with off-street parking for two cars. Practical comforts include mains gas central heating, double glazing (install date unknown), fast broadband and excellent mobile signal — useful for home working or streaming. Flood risk is nil and local area indicators show an affluent, low-crime neighbourhood with good transport links and nearby schools.
Buyers should note this is a period build with cavity walls that, as built, lack insulation — upgrading wall insulation would improve comfort and running costs. The house is average-sized overall and the plot is small, so outdoor space is limited. Some windows and finishes may be original or dated; a buyer seeking turnkey modernisation should plan for cosmetic and energy-efficiency improvements.
Overall this is a practical family home or holiday base in a popular Cowes location. It will particularly suit buyers who value character features and convenient town/coastal living but are happy to invest modestly to improve energy performance and modern finishes.
4 bedroom semi-detached house for sale in Bellevue Road, Cowes, Isle of Wight, PO31 — £375,000 • 4 bed • 2 bath • 1744 ft²
3 bedroom semi-detached house for sale in Coronation Road, Cowes, Isle of Wight, PO31 — £270,000 • 3 bed • 2 bath • 1187 ft²
4 bedroom semi-detached house for sale in GREAT LOCATION FOR AMENITIES - Park Road, Cowes, PO31 — £415,000 • 4 bed • 2 bath • 1283 ft²
3 bedroom semi-detached house for sale in Coronation Road, Cowes, PO31 — £350,000 • 3 bed • 2 bath • 10400 ft²
3 bedroom semi-detached house for sale in Laurel Estate, Cowes, PO31 — £350,000 • 3 bed • 2 bath • 1061 ft²
3 bedroom semi-detached house for sale in Princes Street, Cowes, PO31 — £300,000 • 3 bed • 1 bath • 1064 ft²






































































































