Four bedrooms, driveway and study close to schools and transport links.
South-facing rear garden with patio and pergola
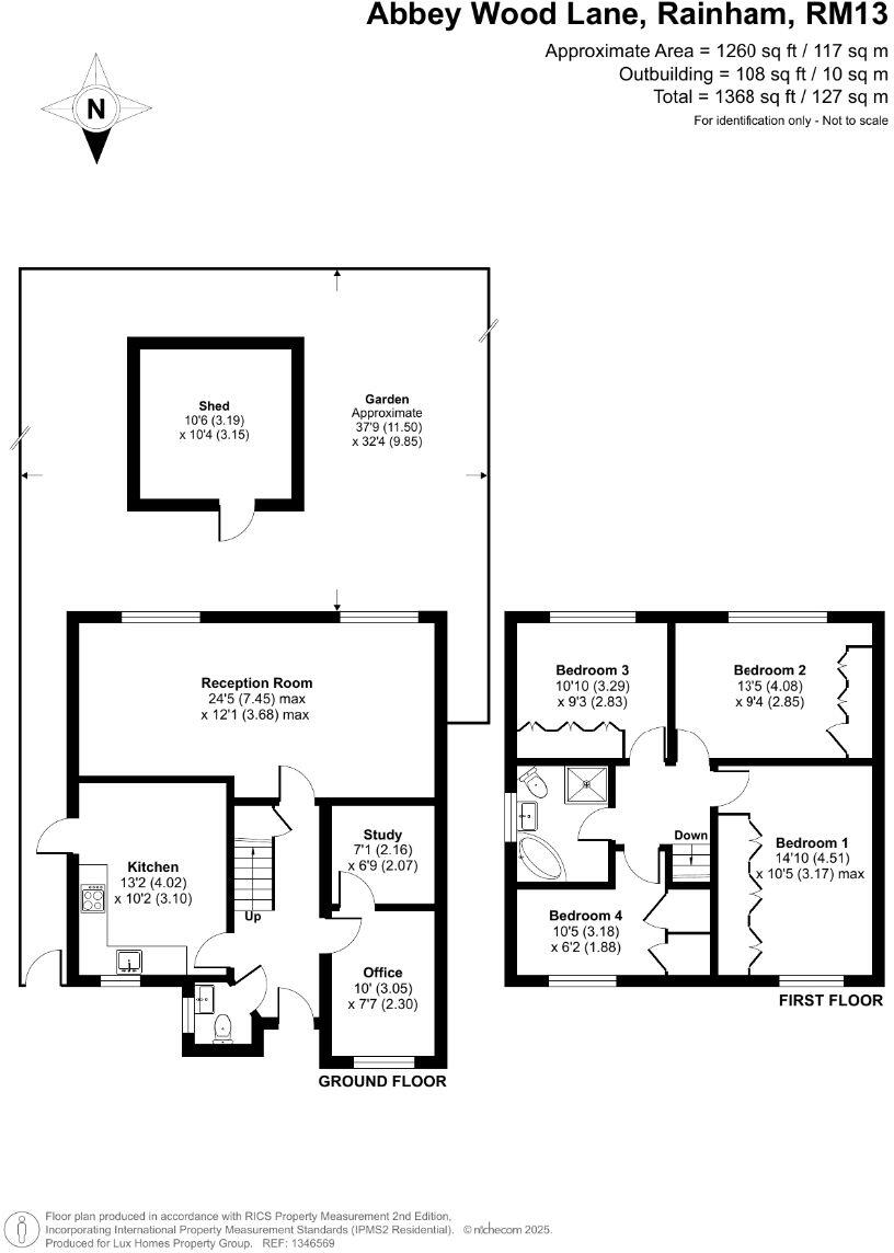
This well-presented four-bedroom detached house on Abbey Wood Lane is arranged for comfortable family life. A bright open-plan living/dining area with large glazed doors connects directly to a south-facing garden and patio, creating a strong indoor–outdoor flow for children and entertaining. The kitchen, ground-floor study and downstairs WC add practical daily convenience.
Upstairs provides four good-sized bedrooms with built-in wardrobes to several rooms and a family four-piece bathroom. The property sits on a decent plot with a private driveway and a generous outbuilding/shed for storage. Broadband and mobile reception are excellent, and nearby parks, nature reserves and multiple good primary and secondary schools suit family routines.
Location supports commuting by bus and rail, with Rainham C2C and District Line connections reachable, and local shops and amenities close by. The house is freehold and presented in neutral, move-in condition, so it will suit buyers who want a ready-to-live-in family home with scope to personalise.
Buyers should note a high local flood risk for the area; prospective purchasers should verify flood history and insurance implications before committing. Overall size is average for a four-bedroom detached; upkeep looks reasonable but check specifics during inspection.
 4 bedroom detached house for sale in Lynkay, Lambs Lane North, Rainham, RM13 — £750,000 • 4 bed • 3 bath • 1812 ft²
 4 bedroom detached house for sale in Lynkay, Lambs Lane North, Rainham, RM13 — £750,000 • 4 bed • 3 bath • 1812 ft² 4 bedroom detached house for sale in Stanley Road North, Rainham, RM13 — £450,000 • 4 bed • 1 bath • 1108 ft²
 4 bedroom detached house for sale in Stanley Road North, Rainham, RM13 — £450,000 • 4 bed • 1 bath • 1108 ft² 4 bedroom detached house for sale in Lambs Lane South, Rainham, RM13 — £550,000 • 4 bed • 3 bath • 1673 ft²
 4 bedroom detached house for sale in Lambs Lane South, Rainham, RM13 — £550,000 • 4 bed • 3 bath • 1673 ft² 4 bedroom semi-detached house for sale in Abbey Wood Lane, Rainham, RM13 — £575,000 • 4 bed • 2 bath • 1425 ft²
 4 bedroom semi-detached house for sale in Abbey Wood Lane, Rainham, RM13 — £575,000 • 4 bed • 2 bath • 1425 ft² 4 bedroom house for sale in Princes Park, RAINHAM, RM13 — £475,000 • 4 bed • 3 bath • 1182 ft²
 4 bedroom house for sale in Princes Park, RAINHAM, RM13 — £475,000 • 4 bed • 3 bath • 1182 ft² 4 bedroom detached house for sale in Lake Avenue, Rainham, RM13 — £850,000 • 4 bed • 3 bath • 2106 ft²
 4 bedroom detached house for sale in Lake Avenue, Rainham, RM13 — £850,000 • 4 bed • 3 bath • 2106 ft²






























































































