**Standout Features:**
- 3-bedroom detached bungalow, well-maintained with extension potential
- Recently added solid roof conservatory with lovely garden views
- Generous plot with extensive outbuildings, ideal for versatile use
- Energy-efficient with solar panels, gas central heating, and double glazing
- Chain-free sale offers hassle-free ownership transition
- Excellent community in the highly sought-after village of South Kilvington
- Low crime area with good road access and fast broadband
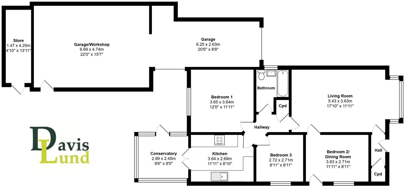
Discover the charm of this spacious 3-bedroom detached bungalow nestled in the tranquil village of South Kilvington. With a generous 1,315 square feet on a good-sized plot, this mid-20th century home boasts a flexible layout, including a cozy living room with a bay window and a fireplace as a striking feature. Enjoy the convenience of a modern kitchen outfitted with high-quality appliances, leading into a solid roof conservatory that bathes the space in natural light and provides picturesque views of the beautifully maintained garden.
While the property has been well cared for, there’s ample opportunity to refresh and personalize certain areas to make it truly your own. Outside, the enclosed rear garden features a covered seating area, perfect for enjoying serene moments outdoors, along with ample space for enjoyment and activities, complemented by extensive garage and workshop facilities. Located just a mile from Thirsk and enjoying superb local amenities, including schools with outstanding ratings, this inviting home promises both comfort and community. Don't miss out on the opportunity to claim this charming property with no chain—schedule your viewing today and envision your future here!
3 bedroom detached bungalow for sale in South Kilvington, YO7 — £325,000 • 3 bed • 1 bath • 864 ft²
3 bedroom terraced house for sale in South Kilvington, Thirsk, YO7 — £280,000 • 3 bed • 1 bath • 724 ft²
3 bedroom semi-detached bungalow for sale in Manor Drive, Kirby Hill, YO51 — £280,000 • 3 bed • 1 bath • 1143 ft²
3 bedroom detached bungalow for sale in Byland Avenue, Thirsk, YO7 — £345,000 • 3 bed • 1 bath • 1015 ft²
3 bedroom detached bungalow for sale in St. Oswalds Close, Sowerby, Thirsk, YO7 — £330,000 • 3 bed • 1 bath • 981 ft²
2 bedroom semi-detached bungalow for sale in Fairfield, Thirsk, YO7 — £235,000 • 2 bed • 1 bath • 751 ft²


































































































