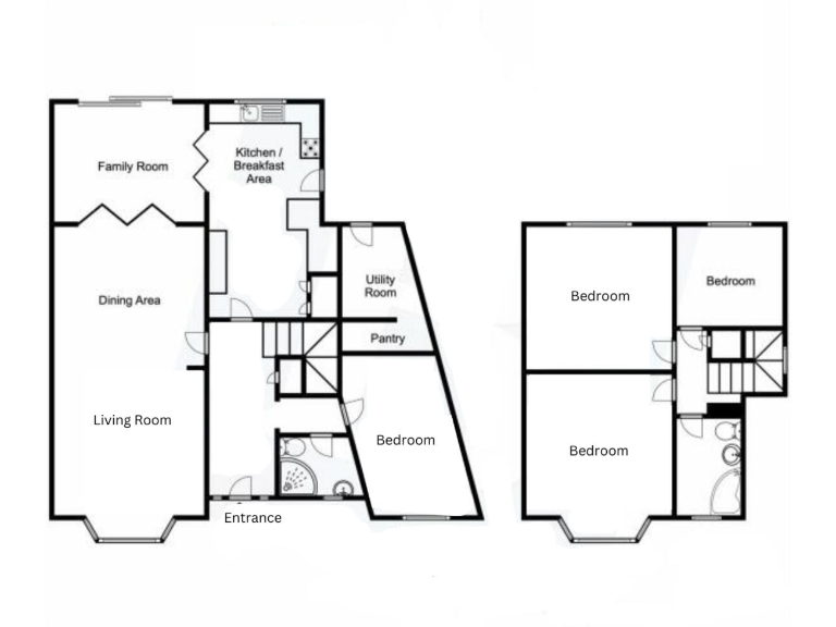
**Standout Features:**
- Four bedrooms, two bathrooms
- Semi-detached with off-street parking and a garden
- Extended living space with a lounge/dining room and a kitchen/breakfast room
- Located within school catchment areas with good and outstanding ratings
- Decent plot size in a popular family-oriented neighborhood
- Freehold tenure for long-term investment
**Concerns:**
- Above average crime rate in the area
- Potential insulation needs as solid brick construction lacks insulation
- Maintenance may be required due to the property’s age (1930-1949)
Discover comfort and potential in this spacious four-bedroom semi-detached home located in the desirable RM7 postcode area. Ideal for families or first-time buyers, this property features a generous lounge/dining area, a contemporary kitchen/breakfast room, and ample off-street parking. Enjoy the benefit of a garden perfect for outdoor activities and family gatherings.
Set within a thriving urban cultural mix, this home is situated within the catchment for highly rated schools and close to local amenities, ensuring convenience for commuting parents and quality education for children. With a moderate council tax and solid rental potential, this property offers an excellent opportunity to invest in your family’s future.
While the area does have a higher-than-average crime rate, its community spirit, coupled with fast broadband and excellent mobile signal, makes it an appealing choice. Note that the house may benefit from insulation enhancements to optimize energy efficiency, adding further value. Don't miss the chance to turn this house into your family home—properties like this don’t stay on the market for long!
4 bedroom semi-detached house for sale in Rodney Way, Romford, RM7 — £525,000 • 4 bed • 1 bath • 1155 ft²
4 bedroom semi-detached house for sale in Grassmere Road, Hornchurch, RM11 — £550,000 • 4 bed • 1 bath • 1299 ft²
4 bedroom semi-detached house for sale in Rainsford Way, Hornchurch, RM12 — £550,000 • 4 bed • 2 bath • 1089 ft²
3 bedroom semi-detached house for sale in London Road, Romford, RM7 — £550,000 • 3 bed • 2 bath • 1307 ft²
4 bedroom end of terrace house for sale in Lodge Avenue, Dagenham, RM8 — £525,000 • 4 bed • 2 bath • 1192 ft²
3 bedroom terraced house for sale in Rush Green Road, Romford, RM7 — £425,000 • 3 bed • 1 bath






































































