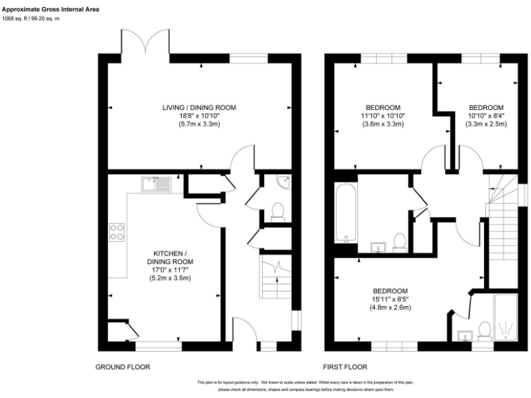
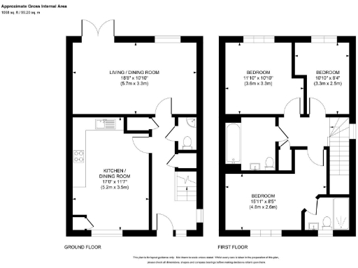
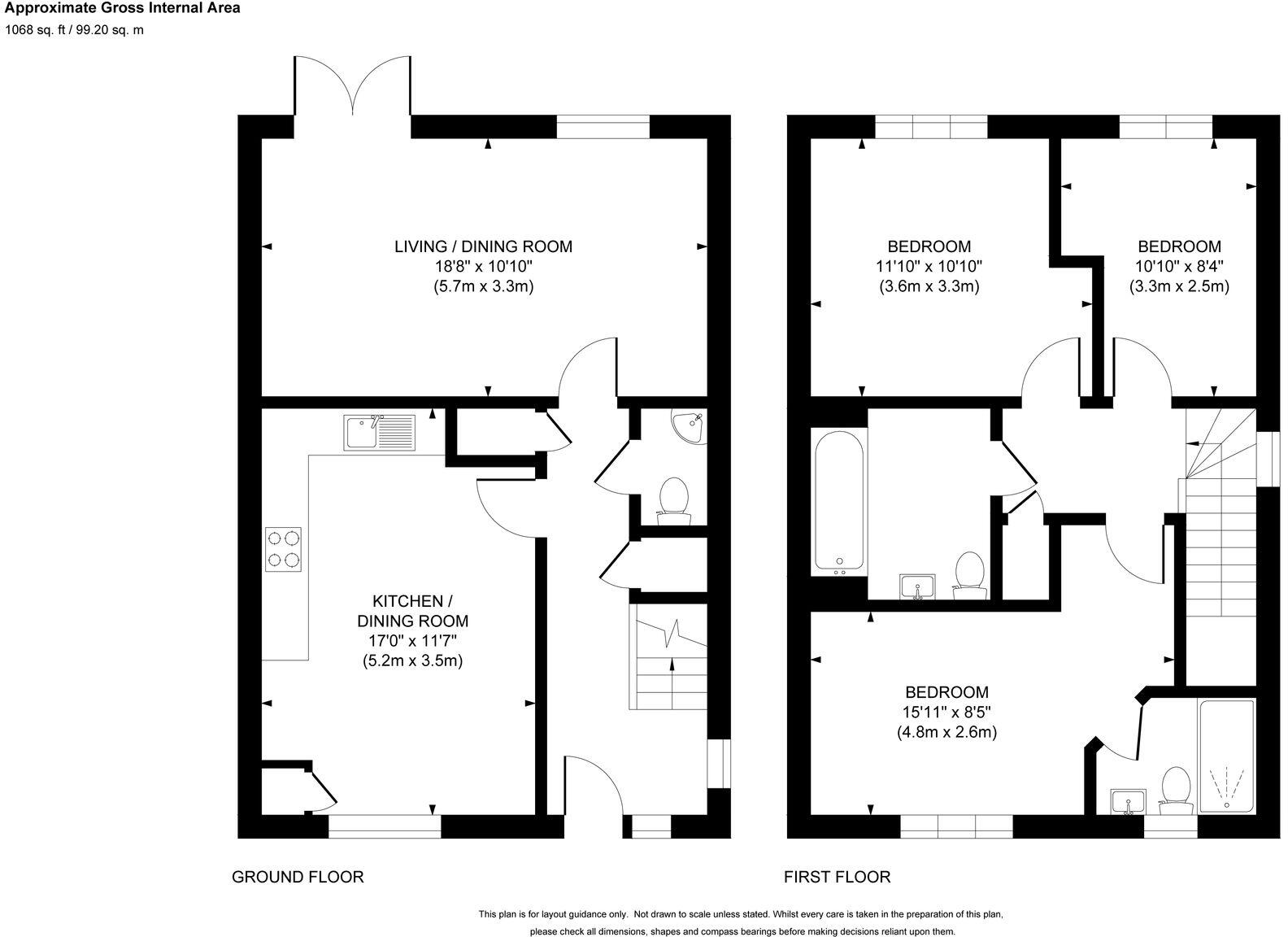
**Standout Features:**
- 3 double bedrooms, including master with en-suite
- Fully insulated garden studio/home office with ethernet
- Large kitchen/family room perfect for gatherings
- South-facing 33' x 24' rear garden
- Garden shed with power
- Two allocated parking spaces
- Low crime area in affluent neighborhood
- Service charge for estate maintenance (£276 annually)
**Potential Downsides:**
- Average-sized property with small plot
- Above-average council tax
In a popular development just moments from the countryside, this modern semi-detached home offers a blend of comfort and functionality, perfect for families or professionals. Enjoy the spacious, sunlit kitchen/family room ideal for both cooking and entertaining, while the large living room opens directly to a generous south-facing garden, extending your living space outdoors. The fully insulated garden studio adds versatility for a home office, arts space, or extra storage, catering to today’s remote work needs.
With three double bedrooms, including a master suite with en-suite facilities, this property is designed with family life in mind. The surrounding area boasts excellent schools — ideal for growing families — and a very low crime rate, ensuring safety and peace of mind. Although the property comes with a small plot size and above-average council tax, its potential for future renovation and extensions offers room for personalization. Priced between £450,000 - £460,000, this opportunity won’t last long; come see how this charming home could be the next perfect chapter for you and your family.
3 bedroom semi-detached house for sale in Stewart Close, Haywards Heath, RH16 — £425,000 • 3 bed • 2 bath • 817 ft²
3 bedroom semi-detached house for sale in Old House Lane, Haywards Heath, RH16 — £600,000 • 3 bed • 2 bath • 1709 ft²
3 bedroom semi-detached house for sale in Wivelsfield Road, Haywards Heath, RH16 — £450,000 • 3 bed • 1 bath • 921 ft²
3 bedroom semi-detached house for sale in Ridgeway, Haywards Heath, West Sussex, RH17 — £450,000 • 3 bed • 2 bath • 841 ft²
3 bedroom semi-detached house for sale in Leith View, North Holmwood, RH5 — £425,000 • 3 bed • 1 bath • 702 ft²
3 bedroom terraced house for sale in Blanford Avenue, Haywards Heath, RH16 — £415,000 • 3 bed • 2 bath • 1044 ft²






















































































