Refurbishment-ready village house with gardens, garage and country views.
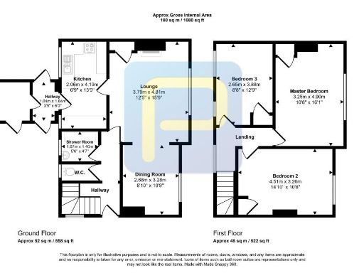
- Three bedrooms with flexible living rooms and average room sizes
- Front and rear gardens plus separate garage and outhouses
- Countryside views in a rural village location
- Freehold tenure, approximately 1,080 sq ft internal space
- Needs renovation throughout; refurbishment required
- Heating by LPG boiler (not a community supply)
- No mobile signal on site; broadband speeds average
- Local area shows above-average crime and some deprivation
A three-bedroom end-of-terrace in Netherton with genuine countryside views and front and rear gardens. The house is freehold and sits on a decent plot with a separate garage and outhouses, offering practical outdoor space and storage for rural living.
Internally the layout includes a reception room, kitchen, dining room, downstairs bathroom plus separate WC, and three upstairs bedrooms across approximately 1,080 sq ft. The property dates from the early 1990s and retains a traditional stone-faced look; double glazing is present though install date is unknown. Heating runs from an LPG boiler and radiators.
This is a clear refurbishment opportunity: the house needs renovation and will suit buyers prepared to invest time and budget to update finishes and services. Practical considerations include no mobile signal on site, average broadband speeds, and a local area with above-average crime statistics and some deprivation. For buyers seeking rural space, views and a project in a village setting, this offers strong potential at the listed price and low council tax band.
1 bedroom detached bungalow for sale in Netherton Barns, Netherton, Northumberland, NE65 7EZ, NE65 — £165,000 • 1 bed • 1 bath • 1225 ft²
3 bedroom bungalow for sale in Netherton Southside, Netherton, Northumberland, NE65 7EZ, NE65 — £280,000 • 3 bed • 1 bath • 1369 ft²
3 bedroom end of terrace house for sale in The Meadows, Thropton, Morpeth, Northumberland, NE65 — £200,000 • 3 bed • 1 bath • 983 ft²
3 bedroom end of terrace house for sale in Dunsvale, Thropton, Morpeth, Northumberland, NE65 — £230,000 • 3 bed • 1 bath • 1260 ft²
4 bedroom bungalow for sale in Netherton, Morpeth, NE65 — £395,000 • 4 bed • 2 bath • 946 ft²
2 bedroom terraced house for sale in 4 Callaly High Houses, Whittingham, Alnwick, Northumberland, NE66 — £150,000 • 2 bed • 1 bath • 1070 ft²






























































































































