Low-maintenance single-floor living with garden and off-street parking in Chelmsford.
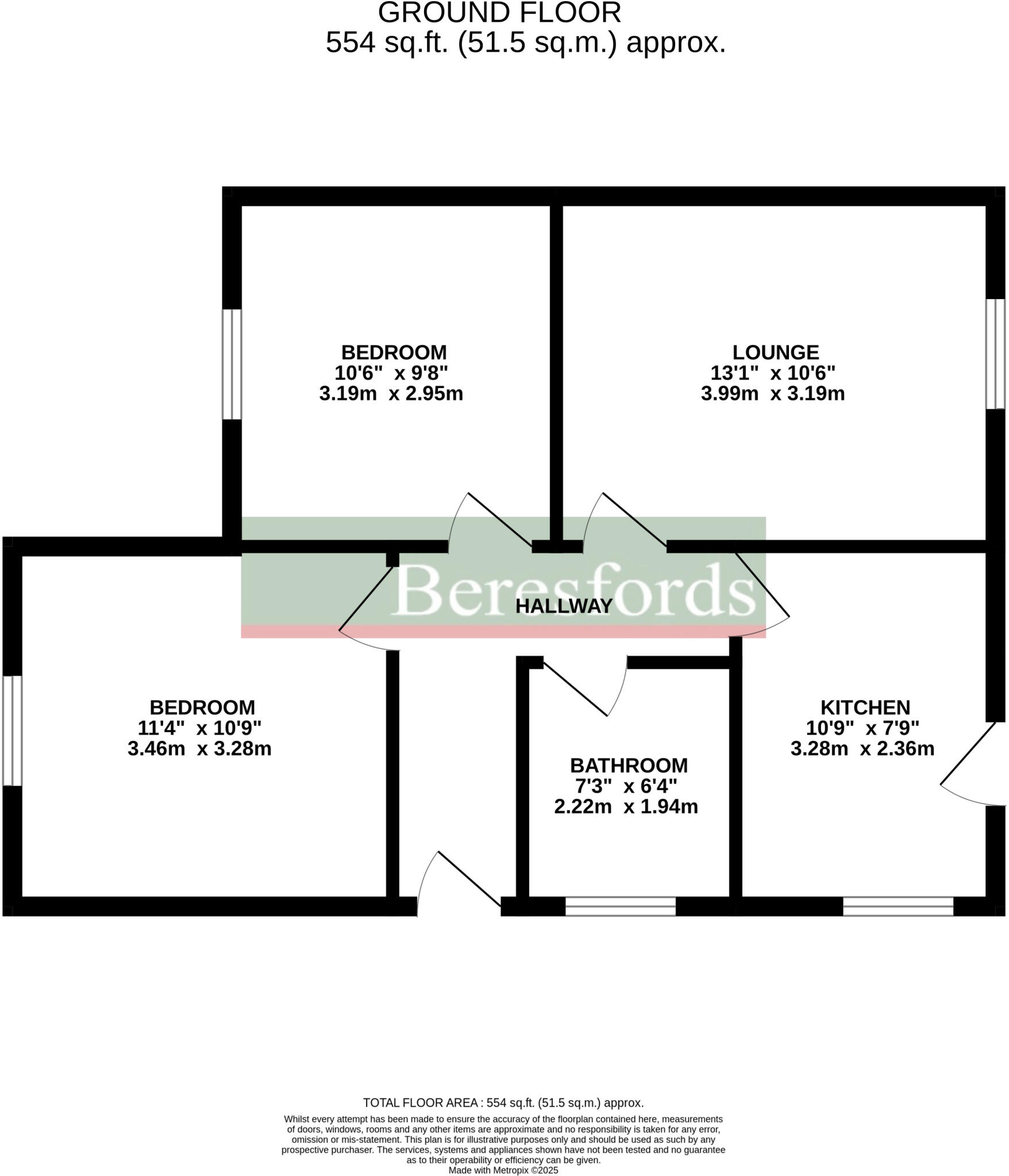
Two-bedroom single-storey bungalow, 554 sq ft
A single-storey, semi-detached bungalow offering easy, single-level living in a well-established Chelmsford street. The bay-front reception brings natural light into the main living space, and the private, well-kept rear garden provides a low-maintenance outside area for relaxation or small-scale gardening. Off-street parking and freehold tenure add everyday convenience and ownership clarity.
At 554 sq ft the layout is compact and suits someone downsizing, a couple, or single occupant seeking a manageable home close to local shops, bus routes and good schools. The property is solidly built (mid-20th century brickwork) and benefits from double glazing and gas central heating, making it move-in ready for many buyers.
Practical drawbacks are clear: the home is small and contains one bathroom, so it won’t suit larger families. The area scores as deprived with above-average crime — buyers should consider location suitability and personal safety measures. The cavity walls are likely uninsulated (assumed), so buyers wanting better energy performance may need to add wall insulation. Overall, this is a pragmatic, low-maintenance bungalow with potential for modest improvements rather than a large renovation project.
2 bedroom bungalow for sale in Broomhall Close, Chelmsford, CM1 — £375,000 • 2 bed • 1 bath • 643 ft²
2 bedroom bungalow for sale in Jackson Place, Chelmsford, CM2 — £350,000 • 2 bed • 1 bath • 627 ft²
2 bedroom semi-detached bungalow for sale in Jubilee Avenue, Broomfield, Chelmsford, CM1 — £425,000 • 2 bed • 1 bath • 754 ft²
2 bedroom semi-detached bungalow for sale in Nalla Gardens, Chelmsford, CM1 — £400,000 • 2 bed • 1 bath • 807 ft²
2 bedroom semi-detached bungalow for sale in Littell Tweed, Chelmsford, CM2 6SH, CM2 — £325,000 • 2 bed • 1 bath • 773 ft²
2 bedroom bungalow for sale in Broomhall Road, Chelmsford, CM1 — £535,000 • 2 bed • 1 bath • 1683 ft²


















































