New-build two-bedroom bungalow with garage and garden — ideal for easy single-storey living.
Freehold two-bedroom bungalow with garage and private garden
Approximately 633 sq ft — compact, single-storey living
High-spec new build, near-complete (Phase 2)
Final specification subject to developer confirmation
Slow broadband speeds locally; average mobile signal
Area shows signs of economic deprivation — potential resale impact
Very low local crime; village amenities and quiet surroundings
No flood risk; decent plot size
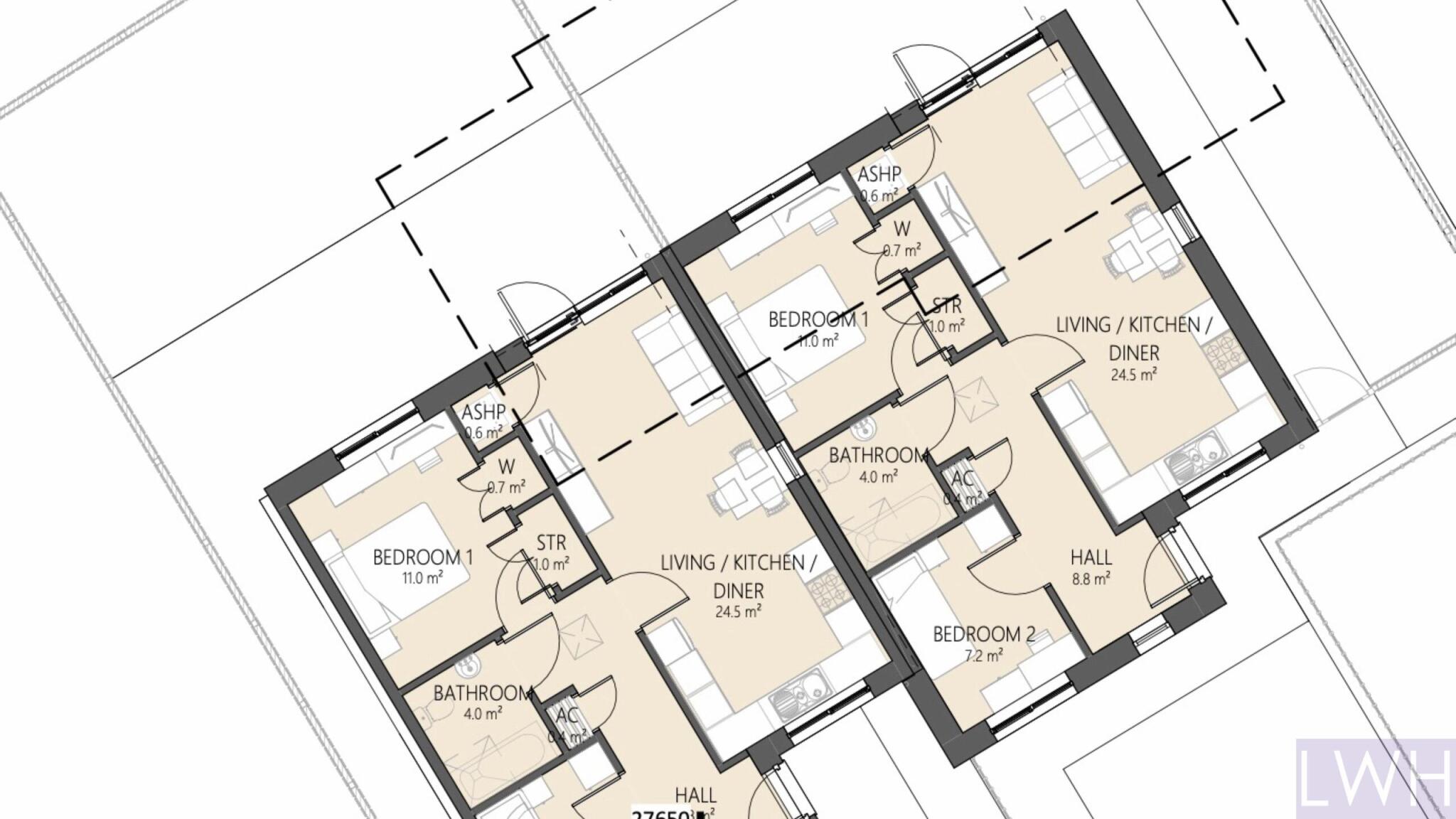
A brand-new, two-bedroom bungalow on a decent plot in the village of Edern offers low-maintenance single-storey living finished to a high standard by a local developer. The layout includes a spacious kitchen-diner, family bathroom and two bedrooms, plus a garage and private garden with patio doors for easy indoor–outdoor flow.
This property suits someone looking to downsize or retire to a quiet rural setting: very low local crime, village amenities close by, and an average-sized home (approximately 633 sq ft) designed for comfortable, single-level living. The development is nearly complete (Phase 2) and promises contemporary finishes and energy-efficient construction.
Buyers should note material facts: the development is still under construction and final specifications may change; details are to be confirmed by the developer. Broadband speeds are slow in the area and the wider locality shows signs of economic deprivation, which may affect resale or rental demand. Mobile signal is average.
Overall this is a practical, modern bungalow for someone prioritising ease of access, a garage and private garden in a peaceful village setting. It represents straightforward new-build convenience with some trade-offs in connectivity and wider-area economic indicators.
2 bedroom bungalow for sale in New Build Bungalow 1, Lon Rhos, Edern, LL53 — £255,000 • 2 bed • 1 bath • 1126 ft²
2 bedroom bungalow for sale in Lon Rhos, Edern, Pwllheli, LL53 — £255,000 • 2 bed • 1 bath
4 bedroom detached house for sale in Lon Rhos, Edern, Pwllheli, LL53 — £365,000 • 4 bed • 2 bath
3 bedroom bungalow for sale in Tan Yr Eglwys, Abererch, Pwllheli, Gwynedd, LL53 — £310,000 • 3 bed • 1 bath • 1114 ft²
4 bedroom detached house for sale in New Build P3 - Borthwen, Lon Rhos, Edern, LL53 — £365,000 • 4 bed • 2 bath • 2088 ft²
3 bedroom end of terrace house for sale in Lon Groesffordd, Edern, Pwllheli, LL53 — £239,000 • 3 bed • 1 bath • 1017 ft²






































